Bénéficiez des services de nos partenaires locaux soigneusement sélectionnés
pour vous accompagner dans votre parcours d'achat immobilier

Appartement 59 m² à Begles

— Begles 33130 —
260 000 €
59 m²
5 pièces

Nos partenaires locaux
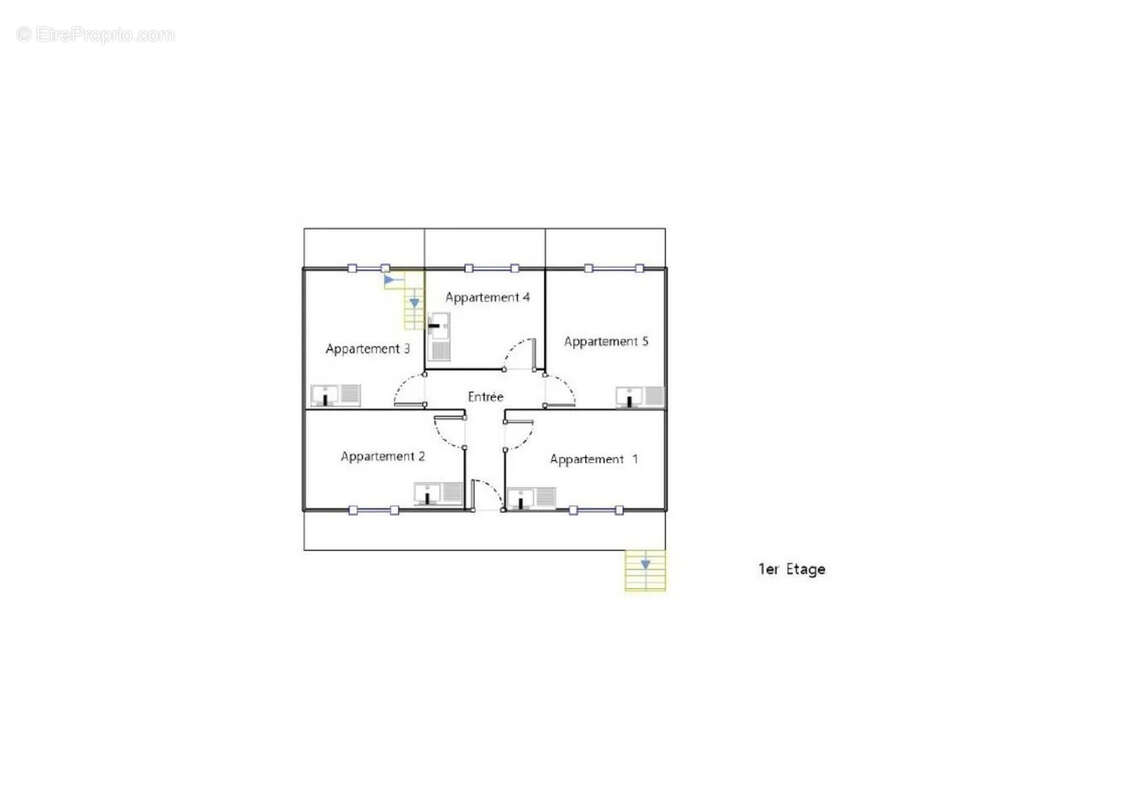
INVESTISSEMENT LOCATIFRENTABILITE BRUTE 10%CASH FLOW mensuel possible + de 700€Logement de rapport situé à Bègles, dans un quartier calme et recherché, à proximité immédiate du tramway, avec facilité de stationnement et un environnement particulièrement attractif pour les locataires.La localisation est idéale grâce à la présence des écoles de kinésithérapie, d'infirmières, de l'école 3iS et de la Cité Numérique, ce qui garantit une demande locative constante et aucune vacance.Le bien se compose de cinq studettes dont 3 sont actuellement loués et 2 sont libres, offrant une mise en exploitation immédiate.Les logements libres permettent une stratégie d'optimisation intéressante, notamment en location meublée ou en location courte durée, afin d'augmenter significativement la rentabilité globale.Le logement 3 est occupé: le loyer mensuel hors charges s'élève à 399,63 euros avec une provision pour charges de 30 euros.Le logement 4 est loué depuis le 1er août 2025. Le loyer mensuel hors charges est de 430 euros avec une provision pour charges de 30 euros.Le logement 5 est loué depuis le 1er avril 2016 pour un loyer mensuel hors charges de 379,99 euros avec une provision pour charges de 25 euros.L'immeuble dépend actuellement d'un syndic coopératif, ce qui permet une gestion souple et des charges maîtrisées.Chaque appartement possède son sous compteur d'eau et Electricité.Le revenu locatif annuel minimum s'élève à 26 035€.Sur cette base, la rentabilité brute ressort à environ 10 %, avec un potentiel d'amélioration immédiat grâce aux 2 logements libres.Ce bien constitue une opportunité rare pour un investisseur recherchant un actif sécurisé, rentable et évolutif, dans un secteur à forte tension locative et à excellent potentiel de valorisation.Contactez nous pour une visite!Montant estimé des dépenses annuelles d'énergie pour un usage standard : non communiqué.Les informations sur les risques auxquels ce bien est exposé sont disponibles sur le site Géorisques : www.georisques.gouv.frCENTURY 21 Etude Saint-Seurin[Coordonnées masquées] - [email protected] Place des Martyrs de la Résistance33000 BORDEAUXImmobilier Ancien et NeufImmeubles - Maisons - Appartements - Échoppes - LoftEstimation-Achat-Vente-Gestion-Location-Patrimoine-Investissement
Voir plus

Référence: 15543
Barème des honoraires
DPE
A
B
C
D
E
F
G
GES
A
B
C
D
E
F
G
Appartement à BEGLES
Appartement à BEGLES
Appartement à BEGLES
Appartement à BEGLES
Appartement à BEGLES
Appartement à BEGLES
Appartement à BEGLES
Géorisques

Les informations sur les risques auxquels ce bien est exposé sont disponibles sur le site Géorisques : www.georisques.gouv.fr

Ce site est protégé par hCaptcha Politique de confidentialité et Conditions d’utilisation s’appliquent.

En poursuivant votre navigation sans modifier vos paramètres, vous acceptez l'utilisation de cookies susceptibles de réaliser des statistiques de visite. Cliquez ici pour plus d'informations