Bénéficiez des services de nos partenaires locaux soigneusement sélectionnés
pour vous accompagner dans votre parcours d'achat immobilier

Maison individuelle récente 105 m2

— Saint-Marcellin 38160 —
275 000 €
104 m² / 396 m²
5 pièces
parkingjardin

Nos partenaires locaux
DISPONIBILITE AVRIL 2026 !
Frais de notaire réduit à 2.5%.

Maisons livrées avec façades et clôtures, sans cuisine ni peintures (possibilité de faire faire les peintures en sus).
Rue Carnot dans un petit lotissement de seulement 6 maisons, venez sélectionner votre maison neuve en cours de construction située à proximité des commodités, de la gare et de l'autoroute.
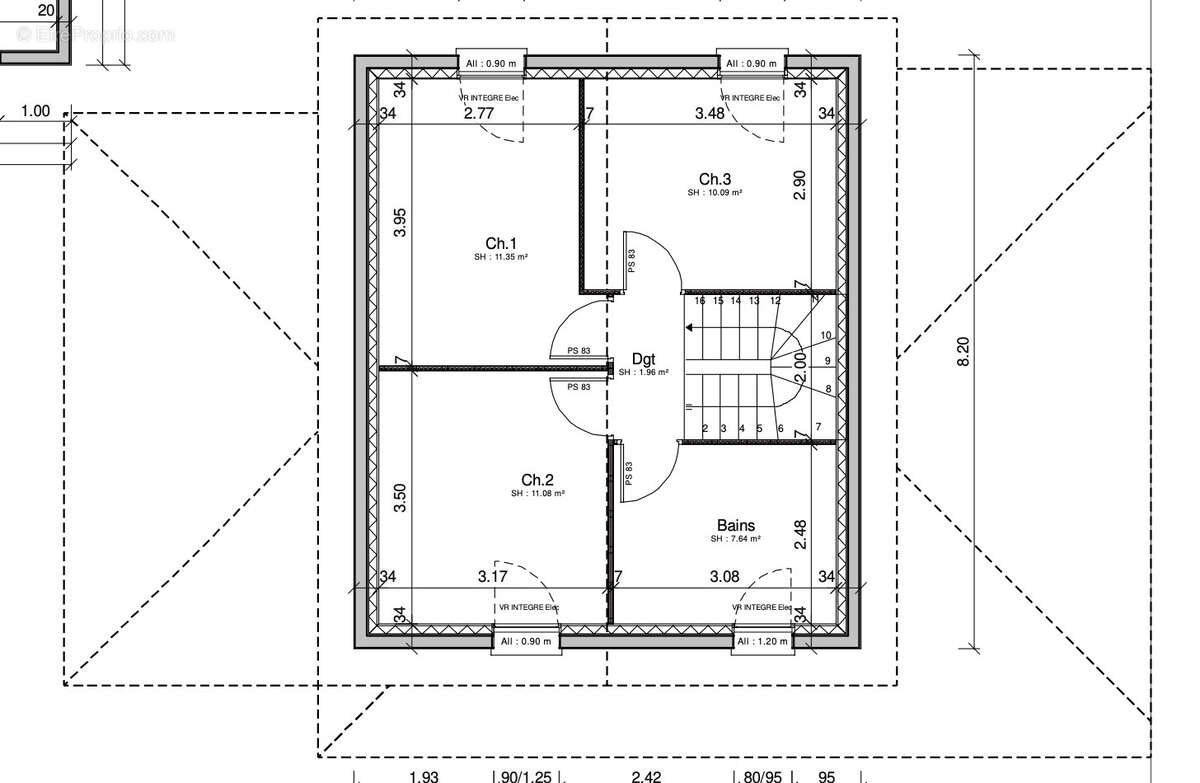
Cette maison moderne sur deux niveaux d'environ 105 m2 habitables offre un cadre de vie confortable et fonctionnelle.
Elle se compose de la façon suivante: un rez-de-chaussée comprenant une entrée, une cuisine ouverte sur grand séjour lumineux, des toilettes indépendants ainsi qu'une suite parentale avec salle d'eau (douche italienne).
A l'étage, un palier dessert 3 chambres et une salle de bains avec toilettes.
Chauffage au sol par pompe à chaleur sur toutes les pièces.
Un garage attenant de plus de 30m2 avec espace buanderie et porte de garage isolée sectionnelle électrique.
Plusieurs parcelles de terrain closes sont disponibles : de 344 m2 à 396 m2 avec place de stationnement.
Personnalisez-la à votre goût: reste à finaliser les joints, les peintures et la cuisine.
Carrelage 45 x 90 cm gris dans toutes les pièces ainsi que l'escalier.
Faïence 20 x 60 cm grise + décor
Volets roulants électriques anthracites.
Passes de toit en pvc blanc.
Porte de garage motorisée.

Bien non soumis au DPE
Voir plus

Référence: 5312
Bien en copropriété. Nombre de lots : 6.
Honoraires à la charge du vendeur.
Barème des honoraires
Maison à SAINT-MARCELLIN
Maison à SAINT-MARCELLIN
Maison à SAINT-MARCELLIN
Maison à SAINT-MARCELLIN
Maison à SAINT-MARCELLIN
Maison à SAINT-MARCELLIN
Maison à SAINT-MARCELLIN
Maison à SAINT-MARCELLIN
Maison à SAINT-MARCELLIN
Maison à SAINT-MARCELLIN
Maison à SAINT-MARCELLIN
Maison à SAINT-MARCELLIN
Maison à SAINT-MARCELLIN
Maison à SAINT-MARCELLIN
Maison à SAINT-MARCELLIN
Maison à SAINT-MARCELLIN
Maison à SAINT-MARCELLIN
Maison à SAINT-MARCELLIN
Maison à SAINT-MARCELLIN
Géorisques

Les informations sur les risques auxquels ce bien est exposé sont disponibles sur le site Géorisques : www.georisques.gouv.fr

Ce site est protégé par hCaptcha Politique de confidentialité et Conditions d’utilisation s’appliquent.

En poursuivant votre navigation sans modifier vos paramètres, vous acceptez l'utilisation de cookies susceptibles de réaliser des statistiques de visite. Cliquez ici pour plus d'informations