Bénéficiez des services de nos partenaires locaux soigneusement sélectionnés
pour vous accompagner dans votre parcours d'achat immobilier

Paris 13 - butte aux cailles

— Paris-13e 75013 —
675 000 €
74 m²
3 pièces
parkingbalcon/terrasseascenseur

Nos partenaires locaux
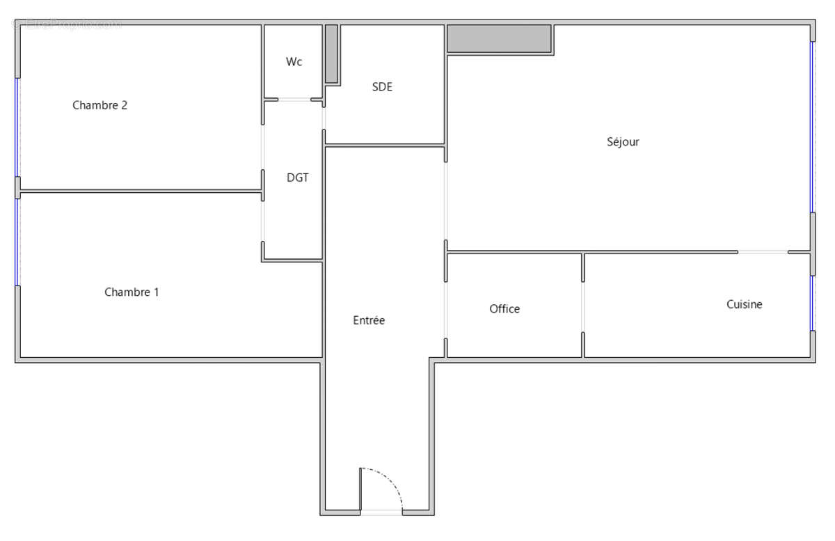
Votre agence FREDELION vous présente au coeur du quartier de la Butte-aux-Cailles, proche des transports (L5, 6, 7 et 14) et de toutes les commodités, ce beau trois pièces avec vue dégagée. Au cinquième étage sur six par ascenseur, ce bien est composé d'un grand séjour ouvrant sur un balcon, une cuisine avec un office, deux chambres au calme sur jardin, une salle d'eau rénovée récemment et un WC séparé. Vous serez charmé par la vue dégagée sur la Butte-aux-Cailles et l'église Sainte-Anne ainsi que par la luminosité de ce bel appartement traversant. Le plan est très facilement modulable : cuisine US, agrandissement de la pièce de vie, troisième chambre... Ce bien est donc plein de potentiel. La copropriété vient de bénéficier de travaux de ravalement, elle est très bien entretenue. Une cave et une place de parking complètent ce bien. Vous aurez également accès à un local vélo. (5.26 % honoraires TTC à la charge de l'acquéreur.) Copropriété de 80 lots - dont 29 lots habitation. Charges annuelles : 4901 euros. Emmanuelle DRAY (EI) Agent Commercial - Numéro RSAC : 925 164 527 - CRETEIL.
Voir plus

Référence: 308
Bien en copropriété. Nombre de lots : 80. Charges de copropriété : 4901 €.
Honoraires d'agence de 5.26% à la charge de l'acquéreur
Barème des honoraires
DPE
A
B
C
D
E
F
G
GES
A
B
C
D
E
F
G
Appartement à PARIS-13E
Appartement à PARIS-13E
Appartement à PARIS-13E
Appartement à PARIS-13E
Appartement à PARIS-13E
Appartement à PARIS-13E
Appartement à PARIS-13E
Appartement à PARIS-13E
Appartement à PARIS-13E
Appartement à PARIS-13E
Appartement à PARIS-13E
Appartement à PARIS-13E
Appartement à PARIS-13E
Appartement à PARIS-13E
Géorisques

Les informations sur les risques auxquels ce bien est exposé sont disponibles sur le site Géorisques : www.georisques.gouv.fr

Ce site est protégé par hCaptcha Politique de confidentialité et Conditions d’utilisation s’appliquent.

En poursuivant votre navigation sans modifier vos paramètres, vous acceptez l'utilisation de cookies susceptibles de réaliser des statistiques de visite. Cliquez ici pour plus d'informations