Bénéficiez des services de nos partenaires locaux soigneusement sélectionnés
pour vous accompagner dans votre parcours d'achat immobilier

Maison individuelle avec jardin et aperçu mer – Magagnosc

— Grasse 06520 —
389 000 €
61 m² / 400 m²
3 pièces
balcon/terrassejardin

Nos partenaires locaux
Exclusivité Keller Williams

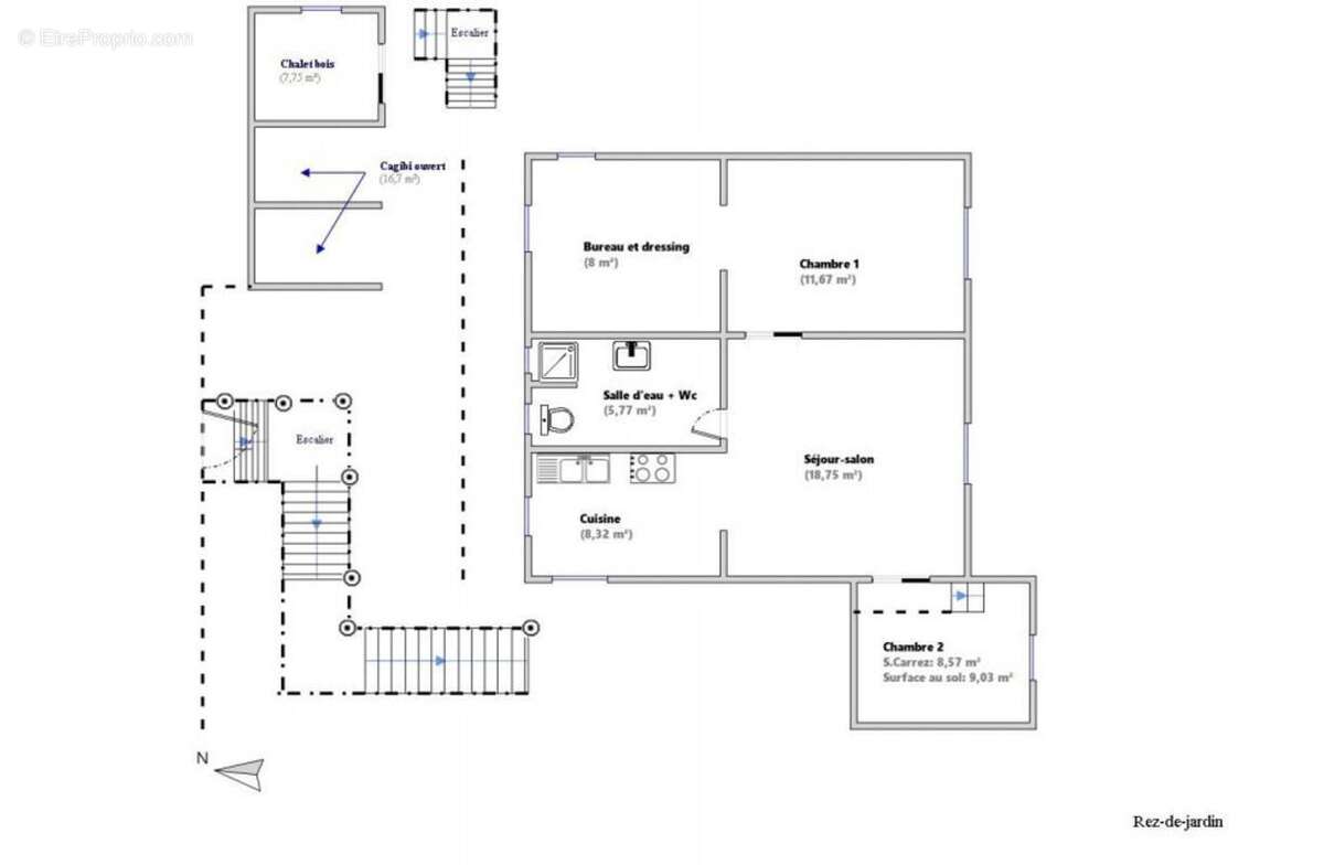
Dans le secteur recherché de Magagnosc, en position dominante avec agréable aperçu mer, découvrez cette maison individuelle d'environ 61 m² habitables.

Elle propose une pièce de vie lumineuse exposée plein sud avec cuisine ouverte, une chambre parentale d'environ 16 m² intégrant un espace bureau et des rangements, une seconde chambre d'environ 8 m² ainsi qu'une salle d'eau avec toilettes.

Maison entretenue offrant des prestations confortables : climatisation réversible, chauffe-eau économique, double vitrage et installation d'une ventilation mécanique par insufflation (VMI) assurant un renouvellement d'air permanent et une atmosphère saine.

Implantée sur un terrain d'environ 400 m², elle bénéficie d'un jardin arboré, d'une terrasse et d'un environnement dégagé.

À l'arrière, une dépendance indépendante d'environ 8 m², isolée et climatisée, complète l'ensemble, ainsi qu'un espace annexe d'environ 16 m² pouvant servir de rangement ou d'atelier.

Place de stationnement privative.
Petite copropriété sans charges.

Annonce proposée par KW Immobilier – Pour plus d'informations sur les risques géographiques, consultez le site Géorisques. Les informations sur les risques auxquels ce bien est exposé sont disponibles sur le site Géorisques : www.georisques.gouv.fr
. Prenez contact avec notre agence immobilière KW HLC pour une première visite de cette maison à vendre.
Voir plus

Référence: 11693
Bien en copropriété. Nombre de lots : 2.
Honoraires à la charge du vendeur.
DPE
A
B
C
D
E
F
G
GES
A
B
C
D
E
F
G
Maison à GRASSE
Maison à GRASSE
Maison à GRASSE
Maison à GRASSE
Maison à GRASSE
Maison à GRASSE
Maison à GRASSE
Maison à GRASSE
Maison à GRASSE
Maison à GRASSE
Maison à GRASSE
Maison à GRASSE
Maison à GRASSE
Maison à GRASSE
Maison à GRASSE
Maison à GRASSE
Maison à GRASSE
Maison à GRASSE
Maison à GRASSE
Maison à GRASSE
Géorisques

Les informations sur les risques auxquels ce bien est exposé sont disponibles sur le site Géorisques : www.georisques.gouv.fr

Ce site est protégé par hCaptcha Politique de confidentialité et Conditions d’utilisation s’appliquent.

En poursuivant votre navigation sans modifier vos paramètres, vous acceptez l'utilisation de cookies susceptibles de réaliser des statistiques de visite. Cliquez ici pour plus d'informations