Bénéficiez des services de nos partenaires locaux soigneusement sélectionnés
pour vous accompagner dans votre parcours d'achat immobilier

Appartement 70 m² à Trouville-Sur-Mer

— Trouville-Sur-Mer 14360 —
318 000 €
70 m²
4 pièces

Nos partenaires locaux
Si vous cherchez la discrétion, le calme tout en étant au coeur de centre-ville, l'authenticité des bâtisses d'autrefois qui abritaient les familles de Marins et des commerçants, alors je vous invite à découvrir votre prochain nid Trouvillais !
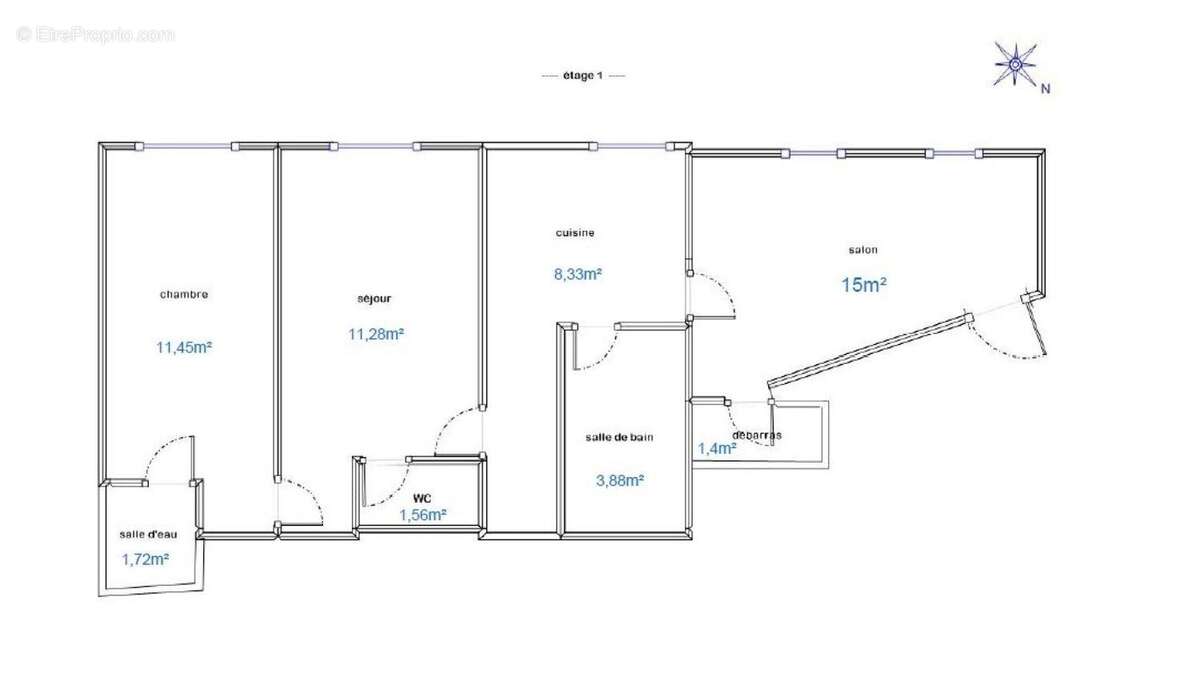
D'une surface de 91 m² au sol et de 69 m² CARREZ. Il est composé : en premier niveau; 1 salon / salle à manger, 1 cuisine, 1 salle de bain avec WC, 1 buanderie, 1 chambre avec salle d'eau, 1 bureau avec placard pouvant servir de chambre d'appoint. À l'étage, 1 grande chambre sous-toiture avec 1 espace chambre ou bureau pouvant être séparé par la pose d'une porte. Velux et chien assis permettent une agréable luminosité. Quelques travaux de rafraichissement à prévoir (décoration, salles d'eau). Il est orienté Sud / S/O et offre une vue dégagée sur la Touques de quelques fenêtres et n'est pas sujet au vis à vis. Aucun bruit de voisinage. Travaux d'isolation réalisés récemment (toiture neuve, isolation sous-toiture fenêtres récentes en double vitrage). L'appartement permettra un réagencement de certaines pièces. Plein centre ville et à 10' à pied de la gare de Deauville, son emplacement est stratégique.

Le bien comprend 2 lots, et il est situé dans une copropriété de 13 lots (les charges courantes annuelles moyennes de copropriété sont de 840 ¤ et le syndicat des copropriétaires ne fait pas l'objet d'une procédure citée à l'article L. 721-1 du code de la construction et de l'habitation).

Les informations sur les risques auxquels ce bien est exposé sont disponibles sur le site Géorisques : www.georisques.gouv.fr
Prix de vente : 318 000 ¤
Honoraires charge vendeur

Contactez votre conseiller SAFTI : Richard RICOUL, Tél. : [Coordonnées masquées], E-mail : [Coordonnées masquées] - EI - Agent commercial immatriculé au RSAC de LISIEUX sous le numéro 387 573 496.Informations LOI ALUR : Soumis au régime de copropriété. Nombre de lots : 13. Quote part annuelle(moyenne) : 840 euros. Honoraires charge vendeur. (gedeon_26118_32697532)
Voir plus

Référence: 1595118
Bien en copropriété. Nombre de lots : 13. Charges de copropriété : 840 €.
Honoraires à la charge du vendeur.
Barème des honoraires
DPE
A
B
C
D
E
F
G
GES
A
B
C
D
E
F
G
Photo 1 - Appartement à TROUVILLE-SUR-MER
Photo 1
Photo 2 - Appartement à TROUVILLE-SUR-MER
Photo 2
Photo 3 - Appartement à TROUVILLE-SUR-MER
Photo 3
Photo 4 - Appartement à TROUVILLE-SUR-MER
Photo 4
Photo 5 - Appartement à TROUVILLE-SUR-MER
Photo 5
Photo 6 - Appartement à TROUVILLE-SUR-MER
Photo 6
Photo 7 - Appartement à TROUVILLE-SUR-MER
Photo 7
Photo 8 - Appartement à TROUVILLE-SUR-MER
Photo 8
Photo 9 - Appartement à TROUVILLE-SUR-MER
Photo 9
Géorisques

Les informations sur les risques auxquels ce bien est exposé sont disponibles sur le site Géorisques : www.georisques.gouv.fr

Ce site est protégé par hCaptcha Politique de confidentialité et Conditions d’utilisation s’appliquent.

En poursuivant votre navigation sans modifier vos paramètres, vous acceptez l'utilisation de cookies susceptibles de réaliser des statistiques de visite. Cliquez ici pour plus d'informations