Bénéficiez des services de nos partenaires locaux soigneusement sélectionnés
pour vous accompagner dans votre parcours d'achat immobilier

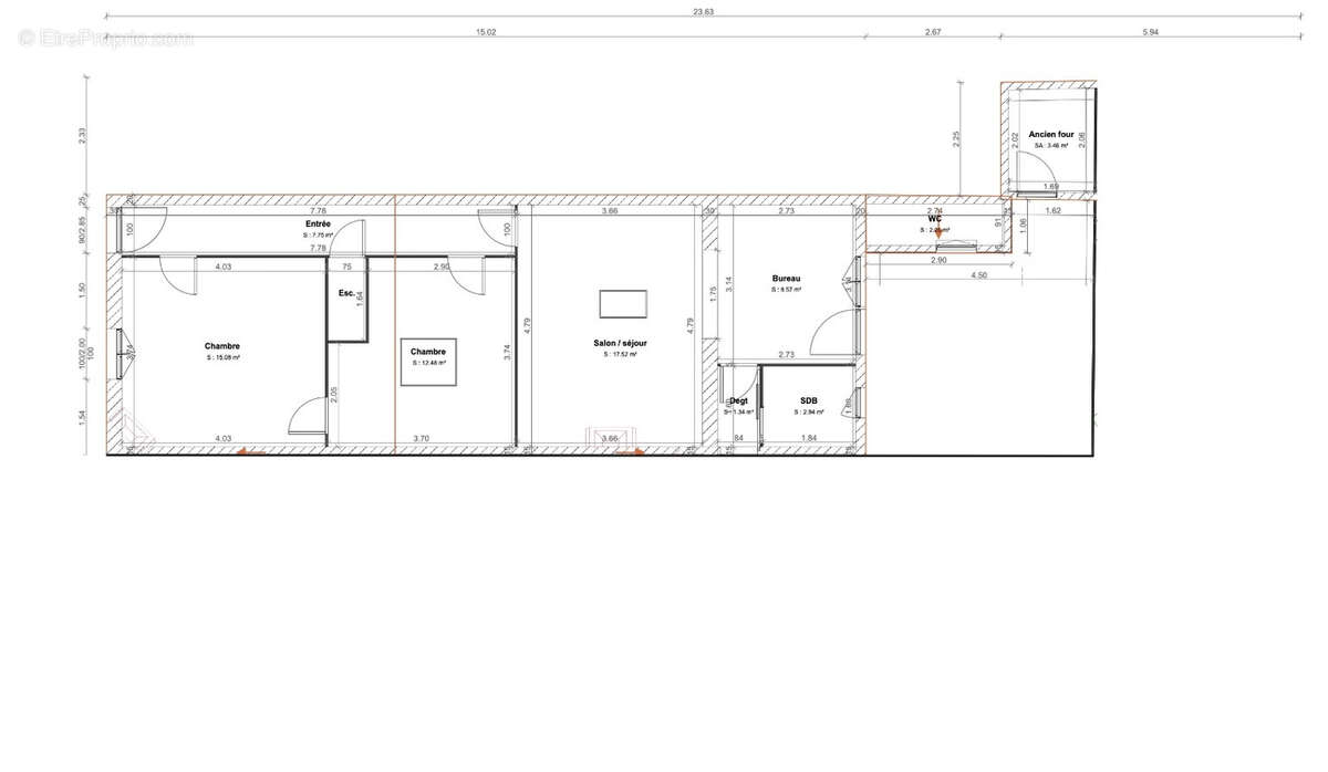
Maison à rénover de 70m2 sur parcelle d'environ 100m2

— Begles 33130 —
189 900 €
70 m² / 100 m²
3 pièces
jardin

Nos partenaires locaux
Pour une réactivité optimale, n’hésitez pas à me contacter directement par téléphone. Vidéo de présentation à disposition. Située dans le secteur de l'hôpital Robert Piqué, venez découvrir cette échoppe de 70m2 à rénover et réaménager entièrement, vendue viabilisée mais non raccordée. Elle se compose de plain-pied d'un salon/séjour avec ancienne cheminée, d'un coin cuisine, de deux chambres, d'un WC indépendant et d'une salle de bain. Une cave complète cet ensemble qui se positionne sur une parcelle de 100m2, vous y trouverez un jardinet de 40m2 à aménager côté cuisine. Les plus : les prestations anciennes conservées, le jardinet à l'arrière et le potentiel des lieux ! Informations complémentaires : couverture refaite en 2017 et 2019, travaux importants à prévoir (électricité, plomberie, plâtrerie, isolation, peinture, revêtement de sol, cuisine, sanitaire, salle de bain, reprise des réseaux, menuiserie, etc.), tout-à-l'égout disponible, fibre optique disponible, menuiserie bois et PVC, etc. Dossier complet sur demande, ce bien est issu d'une division de bâti existant. Taxe foncière : env. 1400€. Prix de vente : 189 900 €. 'Les honoraires d'agence seront intégralement à la charge de l'acquéreur'. Référence : 97156-2. Contacter : Kévin RENAUD - [Coordonnées masquées] - [Coordonnées masquées] - numéro ADC : 84[Coordonnées masquées]00 400 - Les informations sur les risques auxquels ce bien est exposé sont disponibles sur le site Géorisques : www.georisques.gouv.fr
Cette annonce vous est proposée par Kévin RENAUD - EIRL - NoRSAC: 839 040 060, Enregistré à Greffe du tribunal de commerce de LIBOURNE - Annonce rédigée et publiée par un Agent Mandataire -
Voir plus

Honoraires d'agence de 5.5% à la charge de l'acquéreur
Barème des honoraires
Maison à BEGLES
Maison à BEGLES
Géorisques

Les informations sur les risques auxquels ce bien est exposé sont disponibles sur le site Géorisques : www.georisques.gouv.fr

Ce site est protégé par hCaptcha Politique de confidentialité et Conditions d’utilisation s’appliquent.

En poursuivant votre navigation sans modifier vos paramètres, vous acceptez l'utilisation de cookies susceptibles de réaliser des statistiques de visite. Cliquez ici pour plus d'informations