Bénéficiez des services de nos partenaires locaux soigneusement sélectionnés
pour vous accompagner dans votre parcours d'achat immobilier

Paimpol Centre, à seulement 700 mètres de la gare et de toutes les commodités du centre ville.

— Paimpol 22500 —
335 360 €
107 m² / 950 m²
6 pièces
parkingbalcon/terrassejardin

Nos partenaires locaux
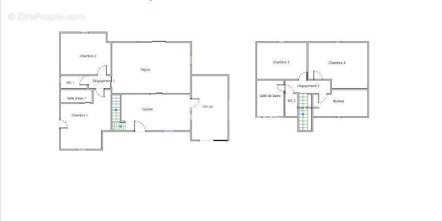
Jolie maison sous ardoises, d'une surface habitable de 107 m2 environ, agréable pour une vie de plain-pied, construite en 2012, se compose d'une cuisine, d'un lumineux salon-séjour ouvert sur une terrasse exposée sud, deux chambres dont une avec une salle d'eau privative et un WC séparé. A l'étage, le palier dessert : trois belles chambres, une salle de bain et un wc séparé. Côté extérieur, vous profiterez du joli jardin, sur une parcelle de 950 m2. Ce bien se complète Un garage et stationnement permettant d'accueillir plusieurs véhicules, complètent ce bien à rafraichir ! Prix FAI : 335 360 euros dont 4.80 % honoraires TTC à la charge de l'acquéreur. Rachel PEREZ (EI) Agent Commercial - Numéro RSAC : 930 727 979 - SAINT BRIEUC.
Voir plus

Référence: 34090
Honoraires d'agence de 4.8% à la charge de l'acquéreur
Barème des honoraires
DPE
A
B
C
D
E
F
G
GES
A
B
C
D
E
F
G
Maison à PAIMPOL
Maison à PAIMPOL
Maison à PAIMPOL
Maison à PAIMPOL
Maison à PAIMPOL
Maison à PAIMPOL
Maison à PAIMPOL
Maison à PAIMPOL
Maison à PAIMPOL
Maison à PAIMPOL
Maison à PAIMPOL
Maison à PAIMPOL
Maison à PAIMPOL
Maison à PAIMPOL
Maison à PAIMPOL
Maison à PAIMPOL
Maison à PAIMPOL
Géorisques

Les informations sur les risques auxquels ce bien est exposé sont disponibles sur le site Géorisques : www.georisques.gouv.fr

Ce site est protégé par hCaptcha Politique de confidentialité et Conditions d’utilisation s’appliquent.

En poursuivant votre navigation sans modifier vos paramètres, vous acceptez l'utilisation de cookies susceptibles de réaliser des statistiques de visite. Cliquez ici pour plus d'informations