Bénéficiez des services de nos partenaires locaux soigneusement sélectionnés
pour vous accompagner dans votre parcours d'achat immobilier

Maison familiale

— Saint-Denis-En-Val 45560 —
369 000 €
96 m² / 1 113 m²
5 pièces
jardin

Nos partenaires locaux
CIMM Immobilier Saint Cyr en Val vous présente en EXCLUSIVITE cette maison idéalement située à proximité du centre de Saint-Denis-en-Val et du collège, cette maison offre un cadre de vie recherché, alliant confort, fonctionnalité et environnement agréable.

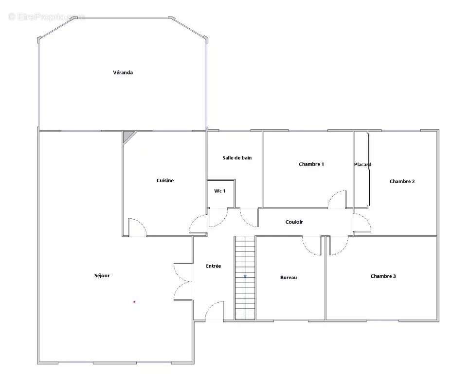
D’une surface habitable d’environ 96 m², elle se compose d'un salon/salle à manger chaleureux avec cheminée, lumière traversante et climatisation.
Une véranda spacieuse de 26 m², véritable pièce de vie baignée de lumière, une cuisine indépendante, trois chambres, un bureau, idéal pour le télétravail et une salle de bain.

Les prestations comprennent :

Fenêtres PVC double vitrage, sous-sol complet entièrement carrelé offrant de nombreuses possibilités (stationnement, rangement, atelier),abri voitures et une cabane de jardin.

Implantée dans un environnement résidentiel, cette maison conviendra parfaitement à une famille recherchant un bien fonctionnel, lumineux et proche de toutes les commodités.

Situation privilégiée : commerces, écoles et collège accessibles rapidement.

À découvrir sans tarder. Contactez-nous pour organiser une visite.
Sonia BOUCHER [Coordonnées masquées] Honoraires à la charge du vendeur - Sonia BOUCHER - Agent commercial - EI - RSAC ORLEANS RSAC 913 115 408 - RCS 4[Coordonnées masquées]382 - Caisse de garantie Medimmoconso 1 Allée du Parc de Mesemena - Bât A CS 25222 - 44505 LA BAULE CEDEX https://recevabilite-mediations.medimmoconso.fr L'immobilier vous intéresse, contactez-moi
Voir plus

Référence: 86723819
Barème des honoraires
DPE
A
B
C
D
E
F
G
GES
A
B
C
D
E
F
G
Maison à SAINT-DENIS-EN-VAL
Maison à SAINT-DENIS-EN-VAL
Maison à SAINT-DENIS-EN-VAL
Maison à SAINT-DENIS-EN-VAL
Maison à SAINT-DENIS-EN-VAL
Maison à SAINT-DENIS-EN-VAL
Maison à SAINT-DENIS-EN-VAL
Maison à SAINT-DENIS-EN-VAL
Maison à SAINT-DENIS-EN-VAL
Maison à SAINT-DENIS-EN-VAL
Géorisques

Les informations sur les risques auxquels ce bien est exposé sont disponibles sur le site Géorisques : www.georisques.gouv.fr

Ce site est protégé par hCaptcha Politique de confidentialité et Conditions d’utilisation s’appliquent.

En poursuivant votre navigation sans modifier vos paramètres, vous acceptez l'utilisation de cookies susceptibles de réaliser des statistiques de visite. Cliquez ici pour plus d'informations