Bénéficiez des services de nos partenaires locaux soigneusement sélectionnés
pour vous accompagner dans votre parcours d'achat immobilier

Appartement 64 m² à Velizy-Villacoublay

— Velizy-Villacoublay 78140 —
239 000 €
64 m²
3 pièces
parkingbalcon/terrasse

Nos partenaires locaux
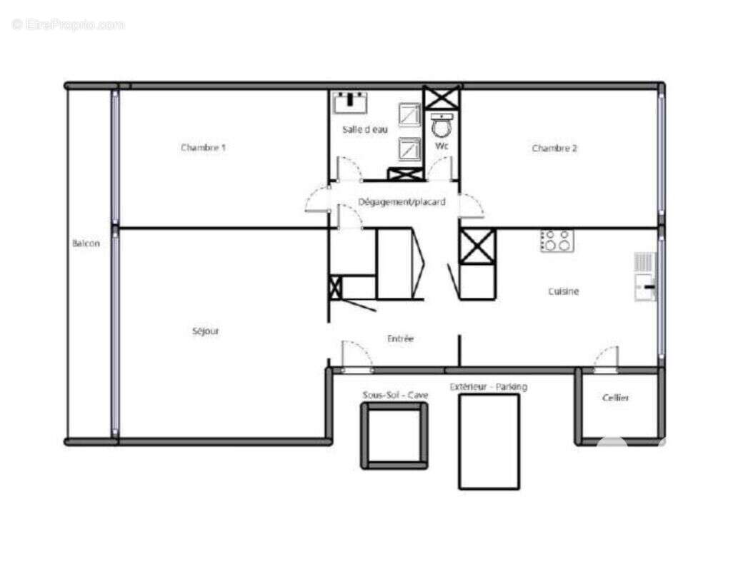
Iad France - Elodie Bruaux vous propose : Situé au 2ème étage d'un immeuble sans ascenseur, ce bel appartement 3 pièces lumineux offre un agencement fonctionnel et un cadre de vie agréable. Il se compose d'une entrée avec espace de rangement, d'un séjour lumineux donnant sur un balcon filant, d'une cuisine aménagée avec son cellier attenant, d'un couloir distribuant deux chambres spacieuses, une salle de douche et un WC séparé. Une cave ainsi qu'une place de parking extérieure viennent compléter ce bien. Situation géographique idéale : Accès direct à l'A86, à la N118 et à la N12. Proximité immédiate de Versailles et des villes alentour. Le Tramway T6, à quelques minutes, relie Viroflay à Châtillon-Montrouge, facilitant l'accès aux transports en commun et à Paris. Les + : balcon filant, luminosité, rangements, quartier bien desservi. À découvrir sans tarder ! Honoraires d'agence à la charge du vendeur. Information d'affichage énergétique sur ce bien : classe ENERGIE D indice 199 et classe CLIMAT C indice 16. Les informations sur les risques auxquels ce bien est exposé, y compris l'obligation légale de débroussaillement, sont disponibles sur le site Géorisques : http://www.georisques.gouv.fr.La présente annonce immobilière a été rédigée sous la responsabilité éditoriale de Mme Elodie Bruaux mandataire indépendant en immobilier (sans détention de fonds), agent commercial de la SAS I@D France immatriculé au RSAC de VERSAILLES sous le numéro 813004363, titulaire de la carte de démarchage immobilier pour le compte de la société I@D France SAS.Informations LOI ALUR : Honoraires charge vendeur. (gedeon_6727_32709923)
Voir plus

Référence: 1739767
Honoraires à la charge du vendeur.
Barème des honoraires
DPE
A
B
C
D
E
F
G
GES
A
B
C
D
E
F
G
Photo 1 - Appartement à VELIZY-VILLACOUBLAY
Photo 1
Photo 2 - Appartement à VELIZY-VILLACOUBLAY
Photo 2
Photo 3 - Appartement à VELIZY-VILLACOUBLAY
Photo 3
Photo 4 - Appartement à VELIZY-VILLACOUBLAY
Photo 4
Photo 5 - Appartement à VELIZY-VILLACOUBLAY
Photo 5
Photo 6 - Appartement à VELIZY-VILLACOUBLAY
Photo 6
Photo 7 - Appartement à VELIZY-VILLACOUBLAY
Photo 7
Photo 8 - Appartement à VELIZY-VILLACOUBLAY
Photo 8
Photo 9 - Appartement à VELIZY-VILLACOUBLAY
Photo 9
Géorisques

Les informations sur les risques auxquels ce bien est exposé sont disponibles sur le site Géorisques : www.georisques.gouv.fr

Ce site est protégé par hCaptcha Politique de confidentialité et Conditions d’utilisation s’appliquent.

En poursuivant votre navigation sans modifier vos paramètres, vous acceptez l'utilisation de cookies susceptibles de réaliser des statistiques de visite. Cliquez ici pour plus d'informations