Bénéficiez des services de nos partenaires locaux soigneusement sélectionnés
pour vous accompagner dans votre parcours d'achat immobilier

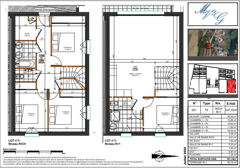
Maison récente 107m² de type 5 avec terrasse, jardin et parking privatif - Communay

— Communay 69360 —
285 000 €
107 m² / 150 m²
5 pièces
parkingbalcon/terrassejardin

Nos partenaires locaux
L'agence Dufossé Immobilier vous propose à 25 minutes de Lyon, 19 min de Vienne, sur la charmante commune de Communay, à proximité de toutes commodités, une belle maison contemporaine construite en 2025/2026, de type 5, moderne et confortable d'une surface de 107m² répartis sur deux niveaux, avec terrasse et jardin clos, bénéficiant d'une belle vue dégagée sur les Alpes et la campagne environnante. Cette maison exposée Est/Ouest offre un cadre de vie agréable avec une spacieuse et lumineuse pièce à vivre de 36.50m² ouverte sur une cuisine donnant accès à une vaste terrasse exposée Ouest et son jardin. L'espace nuit se compose d'une belle suite parentale avec une jolie salle d'eau, 3 chambres confortables supplémentaires avec placards intégrés (10 à 12m²), une salle de bains contemporaine aux finitions soignées (double vasque et sèche serviettes). Pour plus de commodité, un WC suspendu indépendant à chaque niveau, un cellier et de nombreux espaces de rangement complètent ce bien. Pour accueillir vos convives en toute quiétude, ce bien est doté d'une large terrasse de 43m² et dispose d'un jardin privatif clos d'environ 150m² pour profiter du cadre verdoyant et des journées ensoleillées, de 2 places de stationnement (parking couvert) et bénéficie d'équipements de qualité. Prestations soignées et éléments techniques : - Menuiseries double vitrage Alu (large baie vitrée XXL) et DV PVC - Volets roulants électriques avec centralisation - BSO motorisé (pièce de vie) - Porte d'entrée 5 points - Attente électrique pour installation store banne - Pompe à chaleur PAC Air/Eau avec plancher chauffant et ECS - Raccordement climatisation (RDC et R+1) - Carrelage 60x60 (pièce de vie ouverte) - Cuisine à aménager - Carrelage effet parquet dans les chambres - Finitions intérieures avec impression peinture livrée - Prestations modernes, équipements et matériaux de qualité - Garanties décennales - Dommage ouvrages. Les atouts : - Architecture moderne et finitions de qualité - Triple exposition pour une luminosité maximale - Vue dégagée sur les Alpes et la campagne - Terrasse et jardin pour les moments de détente - Stationnement couvert (2 places privatives) - Secteur résidentiel - Emplacement idéal, à proximité de toutes commodités (commerces, écoles, pôle santé...) et proche des principaux axes routiers (A7, A46, A47), gare à 3Kms. IDEAL PROJET FAMILLE Coup de coeur assuré pour cette agréable et lumineuse maison contemporaine qui vous offrira un cadre de vie paisible et pratique pour toute la famille ! Pour de plus amples informations ou organiser une visite, contactez Caroline MOINE au [Coordonnées masquées].
Voir plus

Référence: CM5228
Honoraires à la charge du vendeur.
Barème des honoraires
DPE
A
B
C
D
E
F
G
GES
A
B
C
D
E
F
G
Maison à COMMUNAY
Maison à COMMUNAY
Maison à COMMUNAY
Maison à COMMUNAY
Maison à COMMUNAY
Maison à COMMUNAY
Maison à COMMUNAY
Maison à COMMUNAY
Maison à COMMUNAY
Maison à COMMUNAY
Maison à COMMUNAY
Maison à COMMUNAY
Maison à COMMUNAY
Maison à COMMUNAY
Maison à COMMUNAY
Maison à COMMUNAY
Maison à COMMUNAY
Géorisques

Les informations sur les risques auxquels ce bien est exposé sont disponibles sur le site Géorisques : www.georisques.gouv.fr

Ce site est protégé par hCaptcha Politique de confidentialité et Conditions d’utilisation s’appliquent.

En poursuivant votre navigation sans modifier vos paramètres, vous acceptez l'utilisation de cookies susceptibles de réaliser des statistiques de visite. Cliquez ici pour plus d'informations