Bénéficiez des services de nos partenaires locaux soigneusement sélectionnés
pour vous accompagner dans votre parcours d'achat immobilier

Maison marseillaise a deux pas de la plaine

— Marseille-1e 13001 —
465 000 €
175 m²
5 pièces

Nos partenaires locaux
Le Café de l'immo vous emmène découvir cette maison à deux pas de la place Jean Jaurès, là où Marseille vit, respire et se raconte.
À la croisée des quartiers Thiers, Notre-Dame-du-Mont et Le Camas, cette maison de ville en triplex attend celles et ceux qui ont envie de lui redonner une nouvelle histoire. Derrière sa façade discrète se cache un bien rare, aux volumes généreux, offrant de multiples possibilités, aussi bien pour une grande maison familiale que pour un projet d’investissement.
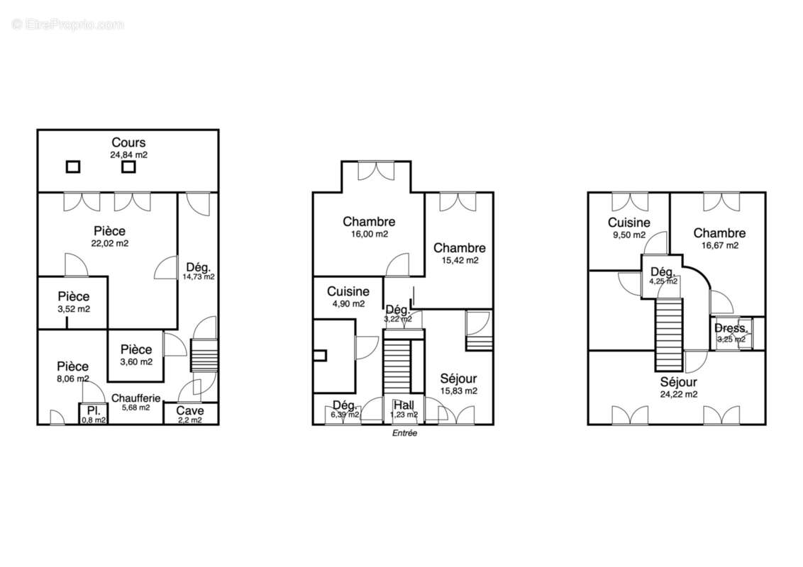
La maison est agencée sur 3 niveaux de la façon suivante:
130 m2 répartis entre le rez-de-chaussée et le 1er étage, puis la partie sous- plex dispose d'une surface habitable d'environ 45 m2 complétée par une surface d'espace cave et rangements.
Au rez-de-chaussée, vous trouverez : un salon, une cuisine, deux chambres, une salle d’eau.
Depuis ce niveau, un accès mène à un sous-plex au charme indéniable, où l’on découvre : un espace voûté accueillant caves et buanderie, une pièce de vie avec sa salle d’eau attenante, ouverte sur une cour-terrasse de 25 m2, au calme absolu, à l’abri de l’agitation marseillaise. Un petit luxe rare en cœur de ville.
À l’étage, les volumes s’expriment pleinement : une cuisine, une grande pièce de vie, facilement reconfigurable en deux chambres selon les besoins, une chambre supplémentaire, et une grande salle de bain.
Cette maison s’adresse à ceux qui aiment les biens avec du caractère, à ceux qui veulent laisser libre cours à leur imagination, repenser les espaces, moderniser, sublimer.
Un lieu à transformer, à façonner, à découvrir...

Taxe fonciére : 2 218 euros/ an
Cette annonce vous est proposée par FALAISE Guillaume - EI - NoRSAC: , Enregistré au Greffe du tribunal de commerce de MARSEILLE
Voir plus

Référence: 1485
Honoraires à la charge du vendeur.
Barème des honoraires
DPE
A
B
C
D
E
F
G
GES
A
B
C
D
E
F
G
Maison à MARSEILLE-1E
Maison à MARSEILLE-1E
Maison à MARSEILLE-1E
Maison à MARSEILLE-1E
Maison à MARSEILLE-1E
Maison à MARSEILLE-1E
Maison à MARSEILLE-1E
Maison à MARSEILLE-1E
Maison à MARSEILLE-1E
Maison à MARSEILLE-1E
Maison à MARSEILLE-1E
Maison à MARSEILLE-1E
Maison à MARSEILLE-1E
Maison à MARSEILLE-1E
Géorisques

Les informations sur les risques auxquels ce bien est exposé sont disponibles sur le site Géorisques : www.georisques.gouv.fr

Ce site est protégé par hCaptcha Politique de confidentialité et Conditions d’utilisation s’appliquent.

En poursuivant votre navigation sans modifier vos paramètres, vous acceptez l'utilisation de cookies susceptibles de réaliser des statistiques de visite. Cliquez ici pour plus d'informations