Bénéficiez des services de nos partenaires locaux soigneusement sélectionnés
pour vous accompagner dans votre parcours d'achat immobilier

Commerce 76 m² à Paris-18e

— Paris-18e 75018 —
385 000 €
76 m²
1 pièce

Nos partenaires locaux
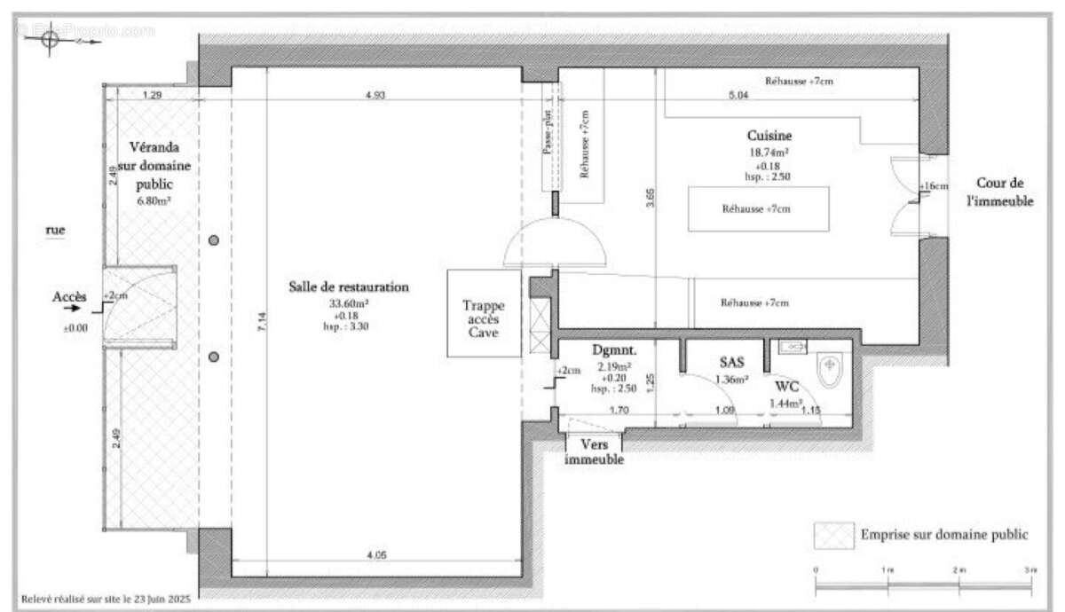
Pour cause de retraite, cède un beau RESTAURANT à la belle clientèle CSP + , au coeur du quartier MONTMARTRE Grandes CarrièresSurface totale : 76 m²Salle de 40 m² et 40 couvertsCuisine de 18 m² toute équipéeEXTRACTION 400 vers le toitRéserve en sous-sol d'environ 30 m²CA 2024 : 624 k¤CA 2025 : 510 k¤Fermeture : deux jours par semaine. Loyer : 2565 ¤ / moisBail renouvelé en 2026Charges : 200 ¤ / moisTaxe foncière : 1200 ¤ / anDroit de terrasse : 1700 ¤ / anLes informations sur les risques auxquels ce bien est exposé sont disponibles sur le site Géorisques : www.georisques.gouv.frPrix de vente honoraires d'agence inclus : 385 000 ¤ HT + 6 160 ¤ TVA, soit 391 160 ¤ TTCPrix de vente hors honoraires d'agence : 354 200 ¤ HT + 0 ¤ TVA, soit 354 200 ¤ TTCHonoraires d'agence : 30 800 ¤ HT + 6 160 ¤ TVA, soit 36 960 ¤ TTC (10.43 % TTC du prix de vente hors honoraires d'agence) Honoraires charge acquéreurContactez votre conseiller SAFTI : Lamiyae EL GHAOUTI, Tél. : [Coordonnées masquées], E-mail : [Coordonnées masquées] - EI - Agent commercial immatriculé au RSAC de Créteil sous le numéro 531188555.Informations LOI ALUR : Honoraires : 8.70 % TTC charge acquéreur. Prix hors honoraires : 354 200 ¤. (gedeon_26118_32717129)
Voir plus

Référence: 783447
Honoraires d'agence de 8.699999999999999% à la charge de l'acquéreur
Barème des honoraires
Photo 1 - Commerce à PARIS-18E
Photo 1
Photo 2 - Commerce à PARIS-18E
Photo 2
Photo 3 - Commerce à PARIS-18E
Photo 3
Photo 4 - Commerce à PARIS-18E
Photo 4
Photo 5 - Commerce à PARIS-18E
Photo 5
Géorisques

Les informations sur les risques auxquels ce bien est exposé sont disponibles sur le site Géorisques : www.georisques.gouv.fr

Ce site est protégé par hCaptcha Politique de confidentialité et Conditions d’utilisation s’appliquent.

En poursuivant votre navigation sans modifier vos paramètres, vous acceptez l'utilisation de cookies susceptibles de réaliser des statistiques de visite. Cliquez ici pour plus d'informations