Bénéficiez des services de nos partenaires locaux soigneusement sélectionnés
pour vous accompagner dans votre parcours d'achat immobilier

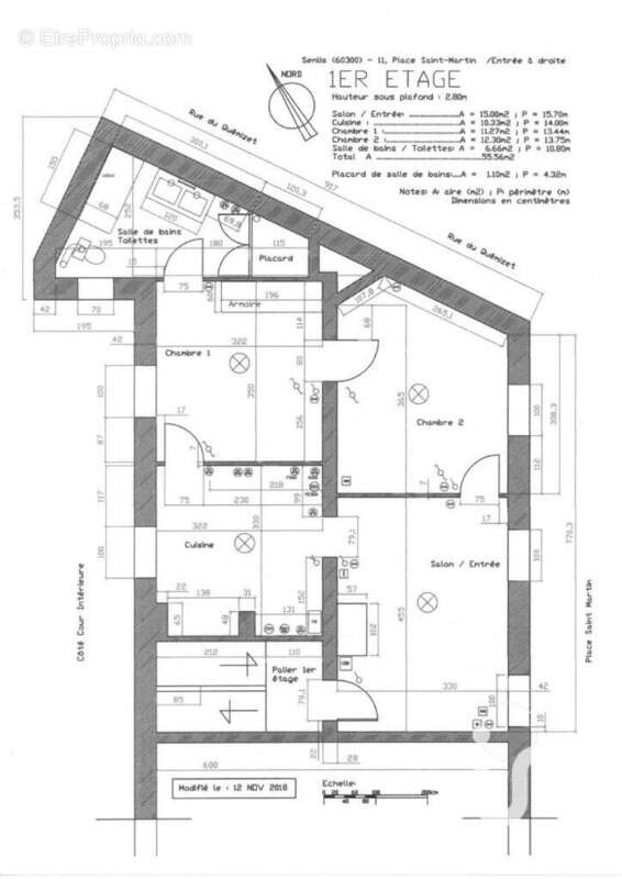
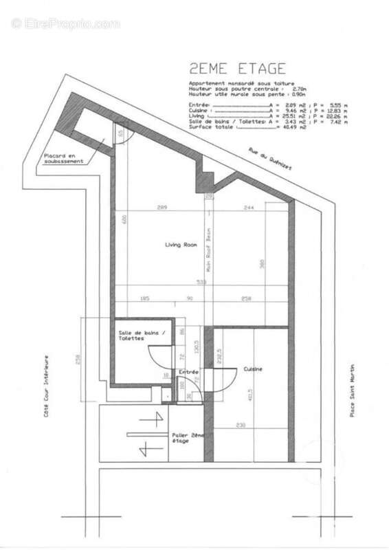
Appartement 147 m² à Senlis

— Senlis 60300 —
290 000 €
147 m²

Nos partenaires locaux
Iad France - Lionel DEBRAS vous propose : Idéal Investisseur !
Ensemble de 3 appartements (2xT3 de 53 m² environs et 1xT1 de 41 m² environ surface au sol ) + caves

Un sur trois sont loués actuellement.
Loyers annuels hors charges : 25740 euros.
Loyers annuels charges comprises : 26460 euros.
Travaux à prévoir.


La presente annonce immobiliere vise 6 lots situés dans une copropriété de 12 lots au total et ne faisant l'objet d'aucune procédure en cours citée à l'article L. 721-1 du code de la construction et de l'habitation. Montant moyen mensuel de charges déclaré par le vendeur : 60¤ par mois (soit 720 ¤ annuel). Honoraires d'agence à la charge du vendeur.
Information d'affichage énergétique sur ce bien : classe ENERGIE F indice 409 et classe CLIMAT F indice 89. Les informations sur les risques auxquels ce bien est exposé, y compris l'obligation légale de débroussaillement, sont disponibles sur le site Géorisques : http://www.georisques.gouv.fr.
La présente annonce immobilière a été rédigée sous la responsabilité éditoriale de M Lionel DEBRAS mandataire indépendant en immobilier (sans détention de fonds), agent commercial de la SAS I@D France immatriculé au RSAC de COMPIEGNE sous le numéro 410516546, titulaire de la carte de démarchage immobilier pour le compte de la société I@D France SAS.Informations LOI ALUR : Soumis au régime de copropriété. Nombre de lots : 12. Quote part annuelle(moyenne) : 720 euros. Honoraires charge vendeur. (gedeon_6727_32717430)
Voir plus

Référence: 1861656
Bien en copropriété. Nombre de lots : 12. Charges de copropriété : 720 €.
Honoraires à la charge du vendeur.
Barème des honoraires
DPE
A
B
C
D
E
F
G
GES
A
B
C
D
E
F
G
Photo 1 - Appartement à SENLIS
Photo 1
Photo 2 - Appartement à SENLIS
Photo 2
Photo 3 - Appartement à SENLIS
Photo 3
Photo 4 - Appartement à SENLIS
Photo 4
Photo 5 - Appartement à SENLIS
Photo 5
Photo 6 - Appartement à SENLIS
Photo 6
Photo 7 - Appartement à SENLIS
Photo 7
Géorisques

Les informations sur les risques auxquels ce bien est exposé sont disponibles sur le site Géorisques : www.georisques.gouv.fr

Ce site est protégé par hCaptcha Politique de confidentialité et Conditions d’utilisation s’appliquent.

En poursuivant votre navigation sans modifier vos paramètres, vous acceptez l'utilisation de cookies susceptibles de réaliser des statistiques de visite. Cliquez ici pour plus d'informations