Bénéficiez des services de nos partenaires locaux soigneusement sélectionnés
pour vous accompagner dans votre parcours d'achat immobilier

Appartement lumineux avec terrasse Parking en sous-sol - Notaire Offert

— Merignac 33700 —
284 000 €
60 m²
3 pièces
parkingbalcon/terrasse

Nos partenaires locaux
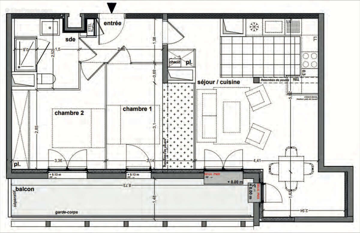
Situé au 3ᵉ étage, à proximité du Parc Mirepin, découvrez ce bel appartement fonctionnel et lumineux, idéal pour une résidence principale ou un premier achat.

Les atouts du bien :
·Terrasse de 13m2 pour profiter des beaux jours
·Pièce de vie de plus de 30m2
·2 Chambres avec placard
·Salle de bain moderne avec douche à l’italienne, WC et emplacement pour machine à laver
·Place de parking en sous-sol sécurisée

Frais de notaire OFFERTS!
Appartement bien agencé, agréable à vivre et baigné de lumière.
Pour plus d’informations ou organiser une visite, contactez-moi ! false
Voir plus

Barème des honoraires
Appartement à MERIGNAC
Appartement à MERIGNAC
Appartement à MERIGNAC
Appartement à MERIGNAC
Appartement à MERIGNAC
Appartement à MERIGNAC
Géorisques

Les informations sur les risques auxquels ce bien est exposé sont disponibles sur le site Géorisques : www.georisques.gouv.fr

Ce site est protégé par hCaptcha Politique de confidentialité et Conditions d’utilisation s’appliquent.

En poursuivant votre navigation sans modifier vos paramètres, vous acceptez l'utilisation de cookies susceptibles de réaliser des statistiques de visite. Cliquez ici pour plus d'informations