Bénéficiez des services de nos partenaires locaux soigneusement sélectionnés
pour vous accompagner dans votre parcours d'achat immobilier

Appartement lumineux avec terrasse Parking en sous-sol - Notaire offert

— Merignac 33700 —
347 000 €
78 m²
4 pièces
parkingbalcon/terrasse

Nos partenaires locaux
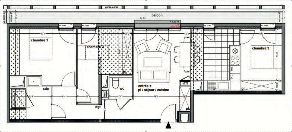
Duplex situé au sein d’une résidence prisée du Parc Mirepin, lumineux, traversant et plein de charme.
Frais de notaire offerts !
2 Parkings en sous-sol

Au 3ème étage :
Vous serez séduit par une superbe pièce de vie de 30 m2, baignée de lumière, ouvrant sur une spacieuse terrasse de 12m2, idéale pour vos moments de détente ou vos repas en extérieur.

L’appartement est composé :
- Belle entrée spacieuse
- 3 chambres avec chacune accès direct à la terrasse + placard
- Salle d’eau avec douche à l’italienne
- Un WC indépendant
- Une belle terrasse de plus de 20m2

Appartement très agréable à vivre, lumineux et fonctionnel — un bien rare à visiter sans tarder !
Contactez-moi pour plus d’informations ou pour organiser une visite. false
Voir plus

Barème des honoraires
Appartement à MERIGNAC
Appartement à MERIGNAC
Appartement à MERIGNAC
Appartement à MERIGNAC
Appartement à MERIGNAC
Appartement à MERIGNAC
Appartement à MERIGNAC
Géorisques

Les informations sur les risques auxquels ce bien est exposé sont disponibles sur le site Géorisques : www.georisques.gouv.fr

Ce site est protégé par hCaptcha Politique de confidentialité et Conditions d’utilisation s’appliquent.

En poursuivant votre navigation sans modifier vos paramètres, vous acceptez l'utilisation de cookies susceptibles de réaliser des statistiques de visite. Cliquez ici pour plus d'informations