Bénéficiez des services de nos partenaires locaux soigneusement sélectionnés
pour vous accompagner dans votre parcours d'achat immobilier

Juan-les-pins - front mer - appartement en dernier etage / toit-terrasse

— Antibes 06600 —
2 415 000 €
168 m²
4 pièces
parkingbalcon/terrasseascenseuraccès handicapé

Nos partenaires locaux
CONSTRUCTION EN COURS

Situé en première ligne face à la Méditerranée, ce programme neuf bénéficie d’un emplacement exceptionnel en front de mer, au cœur de Juan-les-Pins.

Entre les avenues Guy de Maupassant et Louis Gallet, cette réalisation d’envergure conjugue charme historique et architecture contemporaine.

L’ensemble immobilier réinvente l’élégance de la Riviera à travers la réhabilitation de deux anciens hôtels transformés en appartements de prestige, complétée par la construction de résidences modernes composées d’appartements haut de gamme, commerces et bureaux.

Le mythique Hôtel Le Beau Rivage, repère emblématique de Juan-les-Pins, retrouvera son éclat d’antan grâce à une restauration soignée des façades, toitures et ferronneries. Il sera sublimé par des bâtiments contemporains largement ouverts sur la mer, avec de vastes baies vitrées, terrasses privatives et matériaux durables.

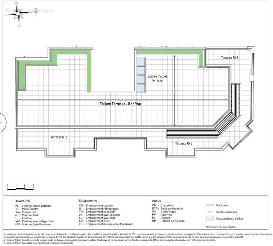
Parmi les biens proposés, nous vous proposons un appartement d’exception en dernier étage qui bénéficie de spacieuses terrasses y compris d'un magnifique toit-terrasse de 150 m² avec espace de jacuzzi, offrant une vue mer panoramique.

Les intérieurs, lumineux et raffinés, sont conçus avec des prestations haut de gamme et des volumes généreux, offrant un cadre de vie unique en front de mer.

Prestations & Confort
Immeuble conforme à la Réglementation Environnementale 2020 (RE 2020)
Finitions haut de gamme
Production de chauffage, eau chaude sanitaire et rafraîchissement par système Aldes T.Flow ou équivalent (installation individuelle par logement)
Place de stationnement privative incluse

Typologies & Prix
T1 : 275 000 €
T2 : 525 000 €
T3 : 1 480 000 €
T4 : 2 415 000 €

Une opportunité rare d’acquérir un bien d’exception en front de mer à Juan-les-Pins.

Livraison prévue : 4ᵉ trimestre 2028.
Voir plus

Référence: 86749169
Barème des honoraires
Appartement à ANTIBES
Appartement à ANTIBES
Appartement à ANTIBES
Appartement à ANTIBES
Appartement à ANTIBES
Appartement à ANTIBES
Appartement à ANTIBES
Appartement à ANTIBES
Géorisques

Les informations sur les risques auxquels ce bien est exposé sont disponibles sur le site Géorisques : www.georisques.gouv.fr

Ce site est protégé par hCaptcha Politique de confidentialité et Conditions d’utilisation s’appliquent.

En poursuivant votre navigation sans modifier vos paramètres, vous acceptez l'utilisation de cookies susceptibles de réaliser des statistiques de visite. Cliquez ici pour plus d'informations