Bénéficiez des services de nos partenaires locaux soigneusement sélectionnés
pour vous accompagner dans votre parcours d'achat immobilier

Villa individuelle 6 chambres - le rouret

— Le Rouret 06650 —
950 000 €
232 m²
8 pièces
parkingpiscine

Nos partenaires locaux
En exclusivité ! À seulement quelques minutes du charmant village du Rouret,proche des commerces et des écoles, découvrez cette maison individuelle d’environ 230 m² avec piscine, implantée sur un terrain arboré de 1 500 m² complanté d’oliviers.Édifiée sur trois niveaux, la maison offre de beaux volumes et des espaces de vie très agréables.
Au rez-de-chaussée, vous trouverez une spacieuse cuisine dinatoire entièrement équipée, ouverte sur le séjour, pour un espace de vie d’environ 60 m². Une chambre de plus de 20 m², en suite avec dressing et salle de douche, complète ce niveau.

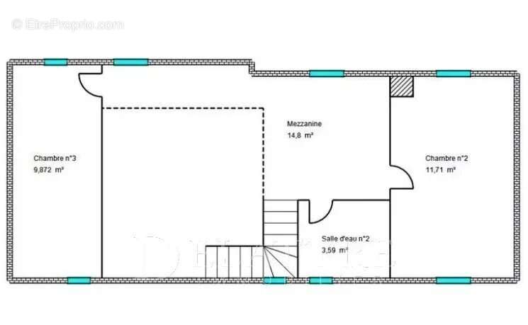
À l’étage, une grande mezzanine surplombe le séjour et dessert deux chambres, une salle de douche.

En rez-de-jardin, la maison propose trois belles chambres, dont une de 20 m², une salle de bains, un bureau ainsi qu’une buanderie.

À l’extérieur, le terrain d’environ 1 500 m² bénéficie d’une piscine
Carport pour 2 voitures.
Idéale pour une famille.

Les informations sur les risques auxquels ce bien est exposé sont disponibles sur le site Géorisques : georisques.gouv.fr
Honoraires à la charge de l’acquéreur
Voir plus

Référence: 86652242
DPE
A
B
C
D
E
F
G
GES
A
B
C
D
E
F
G
Maison à LE ROURET
Maison à LE ROURET
Maison à LE ROURET
Maison à LE ROURET
Maison à LE ROURET
Maison à LE ROURET
Maison à LE ROURET
Maison à LE ROURET
Maison à LE ROURET
Maison à LE ROURET
Maison à LE ROURET
Maison à LE ROURET
Maison à LE ROURET
Maison à LE ROURET
Maison à LE ROURET
Maison à LE ROURET
Maison à LE ROURET
Maison à LE ROURET
Géorisques

Les informations sur les risques auxquels ce bien est exposé sont disponibles sur le site Géorisques : www.georisques.gouv.fr

Ce site est protégé par hCaptcha Politique de confidentialité et Conditions d’utilisation s’appliquent.

En poursuivant votre navigation sans modifier vos paramètres, vous acceptez l'utilisation de cookies susceptibles de réaliser des statistiques de visite. Cliquez ici pour plus d'informations