Terrain 470 m² à Saint-Andre

— Saint-Andre 97440 —
120 000 €
470 m²

L'agence RUN INVEST a le plaisir de vous proposer ce beau terrain de 470 m² à Saint André,
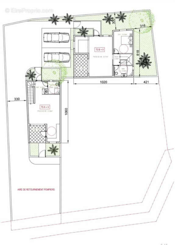
Son agencement est particulier et permettrait d'envisager deux constructions.
Plat, il est partiellement clos de murs.
On vous attend pour visiter,
Tarif 120 000EUR (comprenant nos honoraires à la charge du vendeur)
Opportunité rare sur le secteur.
Contact et infos au [Coordonnées masquées].
Viabilités à proximité - réseau de tout à l'égout sur le terrain.
Précision importante : une étude avec un plan d'implantation avait été réalisé pour deux constructions de type F4 et F3.
Visites et informations sur demande.
.Informations LOI ALUR :
Honoraires charge vendeur. (gedeon_90742_32716884)
Voir plus

Référence: AG650-1666
Honoraires à la charge du vendeur.
GES
A
B
C
D
E
F
G
Photo 1 - Terrain à SAINT-ANDRE
Photo 1
Photo 2 - Terrain à SAINT-ANDRE
Photo 2
Photo 3 - Terrain à SAINT-ANDRE
Photo 3
Photo 4 - Terrain à SAINT-ANDRE
Photo 4
Photo 5 - Terrain à SAINT-ANDRE
Photo 5
Photo 6 - Terrain à SAINT-ANDRE
Photo 6
Géorisques

Les informations sur les risques auxquels ce bien est exposé sont disponibles sur le site Géorisques : www.georisques.gouv.fr

Ce site est protégé par hCaptcha Politique de confidentialité et Conditions d’utilisation s’appliquent.