Bénéficiez des services de nos partenaires locaux soigneusement sélectionnés
pour vous accompagner dans votre parcours d'achat immobilier

Appartement 55 m² – 2 chambres – balcon – cave – parking

— Saint-Raphael 83700 —
149 500 €
54 m²
3 pièces
parkingbalcon/terrasse

Nos partenaires locaux
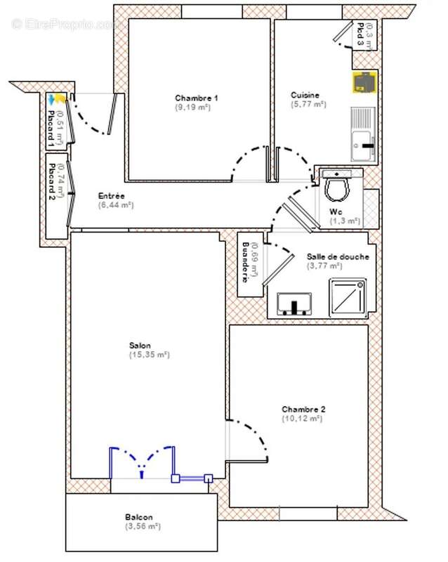
Saint-Raphaël, secteur tout à pied, à 1 km du centre-ville et de la gare TGV et 1,7 km de la plage du Veillat, dans une résidence privée et sécurisée, venez découvrir cet appartement de type F3 de 54 m² avec balcon, cave et stationnement privé.

L'appartement se situe au 3ᵉ et dernier étage. Il se compose d'une entrée avec 2 placards, une cuisine indépendante, un séjour, 2 chambres, une salle d'eau, un WC, le tout complété par un balcon et sa vue sur le jardin.

Une cave et une place de parking privée viennent compléter le bien.

130 € / mois de charges (chauffage compris). Taxe foncière : 914 €.

Idéal pour un 1er achat, rafraîchissement à prévoir. La présente annonce immobilière a été rédigée sous la responsabilité éditoriale de l'agent commercial mandataire en immobilier. Stéphanie VAN DE KADSYE
Voir plus

Référence: 12246
Barème des honoraires
DPE
A
B
C
D
E
F
G
GES
A
B
C
D
E
F
G
Appartement à SAINT-RAPHAEL
Appartement à SAINT-RAPHAEL
Appartement à SAINT-RAPHAEL
Appartement à SAINT-RAPHAEL
Appartement à SAINT-RAPHAEL
Appartement à SAINT-RAPHAEL
Géorisques

Les informations sur les risques auxquels ce bien est exposé sont disponibles sur le site Géorisques : www.georisques.gouv.fr

Ce site est protégé par hCaptcha Politique de confidentialité et Conditions d’utilisation s’appliquent.

En poursuivant votre navigation sans modifier vos paramètres, vous acceptez l'utilisation de cookies susceptibles de réaliser des statistiques de visite. Cliquez ici pour plus d'informations