Bénéficiez des services de nos partenaires locaux soigneusement sélectionnés
pour vous accompagner dans votre parcours d'achat immobilier

Appartement 59 m² à Eze

— Eze 06360 —
519 000 €
59 m²
2 pièces
balcon/terrasseascenseuraccès handicapé

Nos partenaires locaux
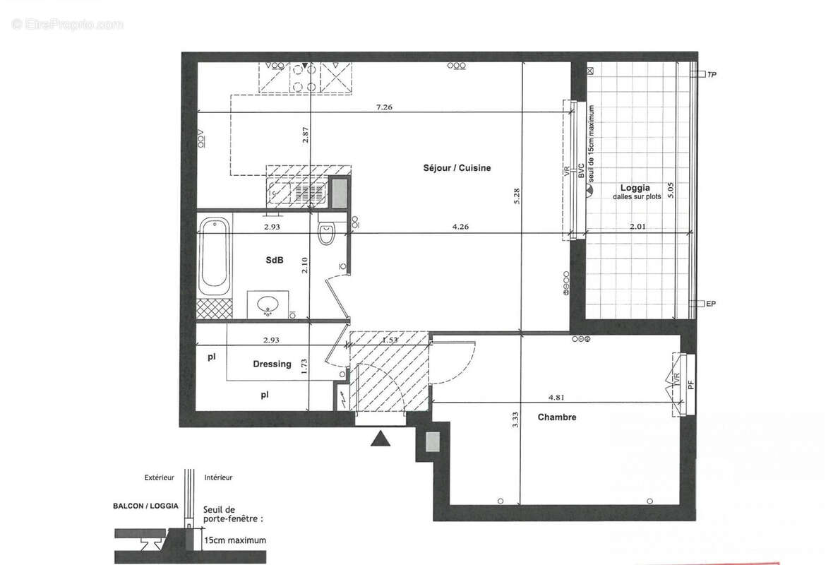
À 3 minutes à pied de la plage et à moins de 10 min de Monaco, dans cette petite résidence de standing à l'architecture moderne s'articulant autour d'un magnifique jardin exotique conçu par le célèbre architecte paysagiste Jean Mus, nous vous proposons ce vaste appartement 2 pièces de presque 60 m² prolongé de sa terrasse qui s'ouvre sur le jardin.
Cet appartement se compose d'une entrée desservant une grande chambre à coucher qui s'ouvre sur le jardin suivi d'un spacieux séjour avec cuisine américaine prolongé de sa terrasse donnant également sur le jardin exotique, d'un dressing et d'une salle de bains avec baignoire et toilettes.
Stationnement en sous-sol à partir de 38.000€.
Les transports en commun sont à proximité et le train rejoint la gare de Monaco en 7 min et celle de Nice-Ville en 14 min.

Les informations sur les risques auxquels ce bien est exposé sont disponibles sur le site Géorisques http://georisques.gouv.fr

Honoraires à la charge du vendeur. Dans une copropriété de 24 lots. Quote-part moyenne du budget prévisionnel 1 €/an. Aucune procédure n'est en cours. Non soumis au DPE. Les informations sur les risques auxquels ce bien est exposé sont disponibles sur le site Géorisques : georisques.gouv.fr.

Votre conseiller By Blue Sophia : Florent RAICHLE
Agent commercial (Entreprise individuelle)
RSAC 52215949000013 NICE
Voir plus

Référence: VA17704-EXPFRANCE
Bien en copropriété. Nombre de lots : 24. Charges de copropriété : 1 €.
Honoraires à la charge du vendeur.
Appartement à EZE
Appartement à EZE
Appartement à EZE
Appartement à EZE
Géorisques

Les informations sur les risques auxquels ce bien est exposé sont disponibles sur le site Géorisques : www.georisques.gouv.fr

Ce site est protégé par hCaptcha Politique de confidentialité et Conditions d’utilisation s’appliquent.

En poursuivant votre navigation sans modifier vos paramètres, vous acceptez l'utilisation de cookies susceptibles de réaliser des statistiques de visite. Cliquez ici pour plus d'informations