Maison 128 m² à Carnac

— Carnac 56340 —
786 700 €
128 m² / 582 m²
5 pièces
parkingbalcon/terrassejardin

CARNAC PLAGE - SECTEUR BEAUMER
Projet de villa contemporaine - terrain 582 m² dans une impasse résidentielle - plage de Beaumer et du Men dû accessibles à pieds

Dans le secteur recherché de Beaumer, ce terrain constructible de 582 m², situé dans une impasse résidentielle calme et confidentielle, offre un cadre privilégié pour la réalisation d'une villa familiale ou d'une élégante résidence secondaire. À distance piétonne des plages de Beaumer et du Men Dû (900 mètres), l'adresse conjugue tranquillité, environnement résidentiel de premier choix et proximité immédiate du littoral.

Le terrain est plat et viabilisé (VRD réalisées) et bénéficie d'une large façade d'environ 30 mètres, permettant une implantation optimale de la maison avec terrasse, jardin et éventuelle piscine, exposés Est-Sud-Ouest. Classé en zone Ubcp du PLU, il autorise une construction harmonieuse dans un environnement mêlant vie de village Breton typique et zone balnéaire préservées.

Un projet de villa contemporaine cohérent et personnalisable :
Le projet présenté a été développé avec MT Crea, maître d'œuvre basé à Pluneret, reconnu pour la qualité de ses réalisations.

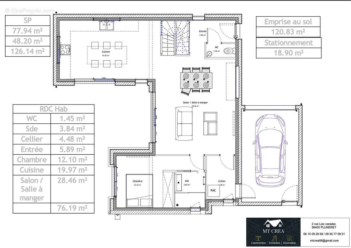
La villa proposée développe 127,75 m² habitables, répartis sur deux niveaux, complétés par un garage attenant. L'architecture privilégie une écriture contemporaine mesurée : volumes équilibrés, toiture ardoise de premier choix et larges ouvertures sur le jardin, parfaitement adaptées à l'esprit balnéaire de Carnac.

Organisation intérieure :
Rez-de-chaussée 76 m²
Un espace de vie lumineux d'environ 50 m² comprenant séjour et cuisine ouverte, tourné vers le jardin et la terrasse exposés Est-Sud-Ouest
Une chambre de plain-pied avec salle d'eau privative permet une vie de plain-pied avec accès terrasse et jardin indépendant.
Un cellier technique complète ce niveau.

Étage 51 m²
L'étage accueille : trois chambres spacieuses, une salle de bains, un palier central. Un niveau idéal pour accueillir famille et invités.

Prestations de construction

Maison conforme RE2025 avec prestations de qualité supérieure :

- planchers chauffants
- chauffage par aérothermie
- menuiseries aluminium thermolaqué haut de gamme certifiées Qualicoat - Qualimarine
- terrassement, maçonnerie, cloisons (brique traditionnelle), isolation, plâtre, peintures, enduit, sols, électricité, plomberie, charpente, couverture et étanchéité, avec les meilleurs matériaux fournis et posés par des entreprises locales chevronnées et reconnues
- matériaux sélectionnés avec exigence.

Le projet reste entièrement personnalisable afin de répondre aux attentes de ses futurs propriétaires.

Budget du projet :

Terrain : 440 000 €
Construction maison clé en main : 346 700 € (honoraires de maîtrise d'oeuvre inclus)

Budget global estimatif :
786 700 €

Ce budget est indiqué hors frais de mutation du terrain (environ 8 %) et hors taxe d'aménagement, ainsi que hors cuisine, aménagements extérieurs et raccordements concessionnaires.

Les points forts

secteur recherché de Carnac plage Beaumer, Men Dû
plage accessible à pieds
environnement résidentiel calme
terrain plat avec façade d'environ 30 m
projet de villa contemporaine personnalisable
cadre idéal pour une résidence secondaire ou familiale

Un dossier complet (plans, notice descriptive, enveloppe budgétaire globale et délais prévisionnels) est disponible sur demande.

Accompagnement de l'acquisition du terrain jusqu'à la réalisation complète du projet, en toute sérénité. Ce bien vous est présenté par Gwendal Calloch, votre conseiller indépendant Dr House Immo.
Voir plus

Référence: 112758DHI3358
Honoraires à la charge du vendeur.
Barème des honoraires
DPE
A
B
C
D
E
F
G
GES
A
B
C
D
E
F
G
Maison à CARNAC
Maison à CARNAC
Maison à CARNAC
Maison à CARNAC
Maison à CARNAC
Maison à CARNAC
Maison à CARNAC
Maison à CARNAC
Maison à CARNAC
Maison à CARNAC
Maison à CARNAC
Maison à CARNAC
Maison à CARNAC
Maison à CARNAC
Maison à CARNAC
Maison à CARNAC
Maison à CARNAC
Maison à CARNAC
Maison à CARNAC
Maison à CARNAC
Maison à CARNAC
Maison à CARNAC
Maison à CARNAC
Maison à CARNAC
Maison à CARNAC
Maison à CARNAC
Maison à CARNAC
Maison à CARNAC
Maison à CARNAC
Maison à CARNAC
Maison à CARNAC
Maison à CARNAC
Maison à CARNAC
Maison à CARNAC
Maison à CARNAC
Maison à CARNAC
Maison à CARNAC
Maison à CARNAC
Maison à CARNAC
Maison à CARNAC
Maison à CARNAC
Maison à CARNAC
Maison à CARNAC
Maison à CARNAC
Maison à CARNAC
Maison à CARNAC
Maison à CARNAC
Maison à CARNAC
Maison à CARNAC
Maison à CARNAC
Maison à CARNAC
Maison à CARNAC
Maison à CARNAC
Maison à CARNAC
Maison à CARNAC
Maison à CARNAC
Maison à CARNAC
Maison à CARNAC
Maison à CARNAC
Maison à CARNAC
Maison à CARNAC
Maison à CARNAC
Maison à CARNAC
Maison à CARNAC
Maison à CARNAC
Maison à CARNAC
Maison à CARNAC
Maison à CARNAC
Maison à CARNAC
Maison à CARNAC
Maison à CARNAC
Maison à CARNAC
Maison à CARNAC
Maison à CARNAC
Maison à CARNAC
Maison à CARNAC
Maison à CARNAC
Maison à CARNAC
Maison à CARNAC
Maison à CARNAC
Maison à CARNAC
Maison à CARNAC
Maison à CARNAC
Maison à CARNAC
Maison à CARNAC
Maison à CARNAC
Maison à CARNAC
Maison à CARNAC
Maison à CARNAC
Maison à CARNAC
Maison à CARNAC
Maison à CARNAC
Maison à CARNAC
Maison à CARNAC
Maison à CARNAC
Maison à CARNAC
Maison à CARNAC
Maison à CARNAC
Maison à CARNAC
Maison à CARNAC
Maison à CARNAC
Maison à CARNAC
Maison à CARNAC
Maison à CARNAC
Maison à CARNAC
Maison à CARNAC
Maison à CARNAC
Maison à CARNAC
Maison à CARNAC
Maison à CARNAC
Maison à CARNAC
Maison à CARNAC
Maison à CARNAC
Maison à CARNAC
Maison à CARNAC
Maison à CARNAC
Maison à CARNAC
Maison à CARNAC
Maison à CARNAC
Maison à CARNAC
Maison à CARNAC
Maison à CARNAC
Maison à CARNAC
Maison à CARNAC
Maison à CARNAC
Maison à CARNAC
Maison à CARNAC
Maison à CARNAC
Maison à CARNAC
Maison à CARNAC
Maison à CARNAC
Maison à CARNAC
Géorisques

Les informations sur les risques auxquels ce bien est exposé sont disponibles sur le site Géorisques : www.georisques.gouv.fr

Ce site est protégé par hCaptcha Politique de confidentialité et Conditions d’utilisation s’appliquent.

En poursuivant votre navigation sans modifier vos paramètres, vous acceptez l'utilisation de cookies susceptibles de réaliser des statistiques de visite. Cliquez ici pour plus d'informations