Bénéficiez des services de nos partenaires locaux soigneusement sélectionnés
pour vous accompagner dans votre parcours d'achat immobilier

Notre dame limite - maison contemporaine avec piscine

— Marseille-15e 13015 —
549 000 €
240 m²
6 pièces
parkingbalcon/terrassepiscine

Nos partenaires locaux
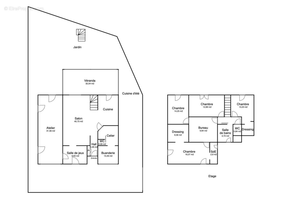
C'est entre les secteurs du Mont d'Or et de Notre Dame Limite que le Café de l'immo a le plaisir de vous faire découvrir cette magnifique maison entièrement rénovée. Située dans un lotissement calme, vous serez charmé par tous les atouts qu'elle propose.
D'une surface de 240 m2 habitable ( 170m2 loi carrez ), la maison est agencée de la manière suivante:
- Au Rez de chaussé, vous trouverez un grand salon avec une cuisine ouverte entièrement équipée,
- Un cellier et une buanderie donnant sur l'extérieur,
- Une salle de jeux,
- Une véranda de 32 m2, idéal pour les repas en famille ou entre amis,
- Un atelier de 30 m2, qui peut aisément se transformer en surface habitable.
 
Coté nuit, à l'étage, vous trouverez:
- Une grande chambre parentale avec dressing et salle d'eau,
- 3 chambres de plus de 12 m2, chacune avec rangements,
- Un bureau, un toilette et une salle de bain complètent l'étage.
Coté extérieur, véritable coup de coeur de la maison, vous serez conquis par son jardin, sa cuisine d'été et sa piscine. Exposé Sud, vous bénéficierez du soleil toute la journee.
Bien d'autres surprises vous attendent, alors si vous rêvez d'une maison familiale, proche de l'Estaque et proche de toutes commodités, ne cherchez plus, le Café de l'immo l'a trouvée pour vous.
Charges de copropriété : 33 € par mois
Taxe foncière: 3 369 €
Cette annonce vous est proposée par Martinez Olivier - - NoRSAC: 517 784 658, Enregistré au Greffe du tribunal de commerce de MARSEILLE
Voir plus

Bien en copropriété.
Honoraires à la charge du vendeur.
Barème des honoraires
DPE
A
B
C
D
E
F
G
GES
A
B
C
D
E
F
G
Maison à MARSEILLE-15E
Maison à MARSEILLE-15E
Maison à MARSEILLE-15E
Maison à MARSEILLE-15E
Maison à MARSEILLE-15E
Maison à MARSEILLE-15E
Maison à MARSEILLE-15E
Maison à MARSEILLE-15E
Maison à MARSEILLE-15E
Maison à MARSEILLE-15E
Maison à MARSEILLE-15E
Maison à MARSEILLE-15E
Maison à MARSEILLE-15E
Maison à MARSEILLE-15E
Maison à MARSEILLE-15E
Maison à MARSEILLE-15E
Maison à MARSEILLE-15E
Maison à MARSEILLE-15E
Maison à MARSEILLE-15E
Maison à MARSEILLE-15E
Géorisques

Les informations sur les risques auxquels ce bien est exposé sont disponibles sur le site Géorisques : www.georisques.gouv.fr

Ce site est protégé par hCaptcha Politique de confidentialité et Conditions d’utilisation s’appliquent.

En poursuivant votre navigation sans modifier vos paramètres, vous acceptez l'utilisation de cookies susceptibles de réaliser des statistiques de visite. Cliquez ici pour plus d'informations