Bénéficiez des services de nos partenaires locaux soigneusement sélectionnés
pour vous accompagner dans votre parcours d'achat immobilier

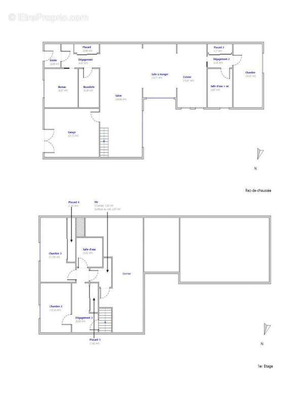
Maison Cugnaux - 5 pièces 138 m2

— Cugnaux 31270 —
334 000 €
138 m² / 394 m²
5 pièces
balcon/terrassejardin

Nos partenaires locaux
L'ADRESSE IMMOBILIER MURET - COUP DE COEUR ASSURÉ - BEAUX VOLUMES - CENTRE VILLE - Maison de ville de type T5 avec garage et jardin, alliant modernité et charme de l'ancien composée comme suit : Laissez vous séduire par ses volumes généreux et ses matériaux de qualité. Au rez-de-chaussée : Entrée donnant accès à une grande pièce de vie lumineuse avec poêle mixte granulés/bois, salle à manger, cuisine aménagée et équipée, le tout cumulant un espace de vie de plus de 60 m². Une belle chambre, un bureau idéal pour le télétravail, une buanderie, une salle d'eau avec W.C. A l'étage : Palier desservant 2 belles chambres, une salle d'eau, W.C séparés et accès au grenier isolé offrant des possibilités d'aménagement ou de rangement supplémentaire. Les plus et ses points forts : Garage avec arrivée et sortie d'eau pouvant être réaménagé à sa guise. Terrasses pour profiter des beaux jours en famille ou entre amis. Climatisation réversible et chauffage au sol. Bonne étiquette énergétique. Le tout édifié sur un terrain clos et arboré d'une superficie d'environ 394 m². A deux pas de l'école Jean-Jaures et des transports en commun. Prêt à avoir le coup de coeur ?! Contactez nous au O5.32.O9.66.5O pour organiser une visite !
Voir plus

Référence: 1972
Honoraires à la charge du vendeur.
Barème des honoraires
DPE
A
B
C
D
E
F
G
GES
A
B
C
D
E
F
G
Maison à CUGNAUX
Maison à CUGNAUX
Maison à CUGNAUX
Maison à CUGNAUX
Maison à CUGNAUX
Maison à CUGNAUX
Maison à CUGNAUX
Maison à CUGNAUX
Maison à CUGNAUX
Maison à CUGNAUX
Maison à CUGNAUX
Maison à CUGNAUX
Maison à CUGNAUX
Maison à CUGNAUX
Maison à CUGNAUX
Maison à CUGNAUX
Maison à CUGNAUX
Maison à CUGNAUX
Géorisques

Les informations sur les risques auxquels ce bien est exposé sont disponibles sur le site Géorisques : www.georisques.gouv.fr

Ce site est protégé par hCaptcha Politique de confidentialité et Conditions d’utilisation s’appliquent.

En poursuivant votre navigation sans modifier vos paramètres, vous acceptez l'utilisation de cookies susceptibles de réaliser des statistiques de visite. Cliquez ici pour plus d'informations