À vendre : Récent appartement de type 2 à Pleurtuit comprenant loggia, cave et stationnement

— Pleurtuit 35730 —
154 660 €
41 m²
2 pièces
parkingbalcon/terrasseascenseur

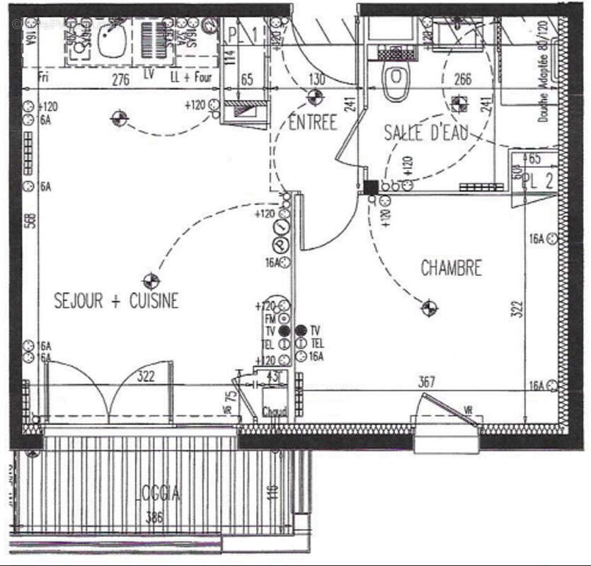
Situé au premier étage d'une résidence construite en 2018, cet appartement d'une surface de 41.50 m² se compose d'une entrée avec placard, d'une cuisine aménagée équipée, d'un salon séjour lumineux ouvert sur une loggia exposée Sud-Est , d'une chambre ainsi que d'une salle d'eau avec wc. L'appartement dispose également d'une cave et d'une place de parking extérieur. Vendu avec locataire en place, bail vide de meuble de 3 ans, débuté le 30/09/2019, Le loyer actuel est de 484.57 euros+ 83 euros de provision sur charges. Pour toute demande d'informations ou pour organiser une visite, contactez l'agence Emeraude 48 rue Levavasseur, 35800 DINARD. Référence : 7724 - [Coordonnées masquées] - [Coordonnées masquées]. (4.50 % honoraires TTC à la charge de l'acquéreur.) Copropriété de 182 lots - dont 60 lots habitation. Charges annuelles : 1267 euros.
Voir plus

Référence: 7724
Bien en copropriété. Nombre de lots : 182. Charges de copropriété : 1267 €.
Honoraires d'agence de 4.5% à la charge de l'acquéreur
Barème des honoraires
DPE
A
B
C
D
E
F
G
GES
A
B
C
D
E
F
G
Appartement à PLEURTUIT
Appartement à PLEURTUIT
Appartement à PLEURTUIT
Appartement à PLEURTUIT
Appartement à PLEURTUIT
Appartement à PLEURTUIT
Géorisques

Les informations sur les risques auxquels ce bien est exposé sont disponibles sur le site Géorisques : www.georisques.gouv.fr

Ce site est protégé par hCaptcha Politique de confidentialité et Conditions d’utilisation s’appliquent.

En poursuivant votre navigation sans modifier vos paramètres, vous acceptez l'utilisation de cookies susceptibles de réaliser des statistiques de visite. Cliquez ici pour plus d'informations