Bénéficiez des services de nos partenaires locaux soigneusement sélectionnés
pour vous accompagner dans votre parcours d'achat immobilier

Clichy - maison de ville jardin - 1 249 000 fai

— Clichy 92110 —
1 249 000 €
160 m²
6 pièces

Nos partenaires locaux
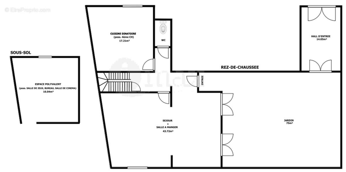
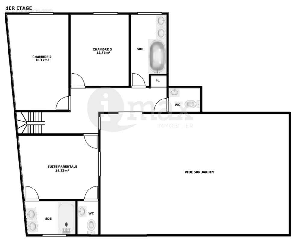
Au coeur de Clichy, à quelques pas du métro Mairie de Clichy et des commerces, découvrez cette maison familiale d'exception, entièrement rénovée par un architecte. Avec ses 160 m² habitables et son jardin de 75m², elle se compose comme suit : un porche d'entrée aménagé vous conduit vers un jardin exposé sud. L'intérieur s'ouvre sur un vaste espace de réception comprenant un séjour et une salle à manger. Vous y trouverez également une cuisine dînatoire, ainsi qu'un WC séparé. Au premier niveau : une suite parentale avec salle d'eau et WC privé, deux chambres spacieuses, une salle de bain, un espace buanderie et un WC séparé. Un espace polyvalent à aménager selon vos besoins complète ce bien en sous-sol. Mandat de vente simple : V610 (4.08 % honoraires TTC à la charge de l'acquéreur.) Copropriété de 23 lots ().
Voir plus

Référence: V610
Bien en copropriété. Nombre de lots : 23. Procédure en cours.
Honoraires d'agence de 4.08% à la charge de l'acquéreur
Barème des honoraires
DPE
A
B
C
D
E
F
G
GES
A
B
C
D
E
F
G
Appartement à CLICHY
Appartement à CLICHY
Appartement à CLICHY
Appartement à CLICHY
Appartement à CLICHY
Appartement à CLICHY
Appartement à CLICHY
Appartement à CLICHY
Appartement à CLICHY
Appartement à CLICHY
Appartement à CLICHY
Appartement à CLICHY
Appartement à CLICHY
Appartement à CLICHY
Géorisques

Les informations sur les risques auxquels ce bien est exposé sont disponibles sur le site Géorisques : www.georisques.gouv.fr

Ce site est protégé par hCaptcha Politique de confidentialité et Conditions d’utilisation s’appliquent.

En poursuivant votre navigation sans modifier vos paramètres, vous acceptez l'utilisation de cookies susceptibles de réaliser des statistiques de visite. Cliquez ici pour plus d'informations