Bénéficiez des services de nos partenaires locaux soigneusement sélectionnés
pour vous accompagner dans votre parcours d'achat immobilier

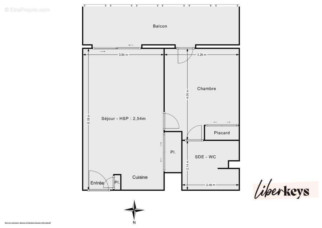
Port-la-Nouvelle : Sublime appartement T2 avec une terrasse de 12,33 m²

— Port-La-Nouvelle 11210 —
106 500 €
40 m²
2 pièces
parkingbalcon/terrasseascenseur

Nos partenaires locaux
Liberkeys vous propose, en exclusivité à Port-la-Nouvelle, ce charmant appartement de 38,80m² (loi Carrez), idéalement conçu pour un style de vie entre mer et commodités. Parfaitement adapté à un couple, un primo-accédant ou un investisseur à la recherche d'une rentabilité en bord de Méditerranée, ce bien combine emplacement stratégique et fonctionnalité.

Situé à quelques minutes à pied des plages prisées , vous bénéficierez d'un cadre de vie balnéaire recherché, à proximité immédiate des commerces, restaurants et écoles. L'espace de vie lumineux s'ouvre sur une agréable terrasse exposée sud, idéale pour profiter du soleil languedocien du matin au soir. La cuisine américaine optimise la convivialité, tandis que la chambre indépendante et la salle de bains offrent confort et intimité au quotidien. Agencement optimisé, nombreux rangements : tout a été pensé pour un cadre de vie agréable.

Vous profiterez également d'un stationnement privatif, un atout majeur qui ajoute une réelle valeur au bien. Les transports (bus à moins de 200m) facilitent vos déplacements vers Narbonne et les environs. La résidence bien entretenue assure sérénité et faibles charges de copropriété (75 €/mois eau comprise). Taxe foncière : 734 €/an.

Un investissement attractif, à quelques encablures du littoral, où la demande locative saisonnière comme annuelle reste forte.

Ce bien vous plaît ? Visitez-le virtuellement en 3D sur le site de Liberkeys ou contactez directement votre conseiller. Corentin FENAI, agent commercial immatriculé au RSAC de Narbonne sous le numéro 981 827 223. Référence annonce : DOM28943. Date de réalisation du diagnostic : 11/02/2026. Les honoraires sont à la charge du vendeur.
Voir plus

Référence: DOM28943
Honoraires à la charge du vendeur.
DPE
A
B
C
D
E
F
G
GES
A
B
C
D
E
F
G
Appartement à PORT-LA-NOUVELLE
Appartement à PORT-LA-NOUVELLE
Appartement à PORT-LA-NOUVELLE
Appartement à PORT-LA-NOUVELLE
Appartement à PORT-LA-NOUVELLE
Appartement à PORT-LA-NOUVELLE
Appartement à PORT-LA-NOUVELLE
Appartement à PORT-LA-NOUVELLE
Appartement à PORT-LA-NOUVELLE
Appartement à PORT-LA-NOUVELLE
Appartement à PORT-LA-NOUVELLE
Appartement à PORT-LA-NOUVELLE
Appartement à PORT-LA-NOUVELLE
Géorisques

Les informations sur les risques auxquels ce bien est exposé sont disponibles sur le site Géorisques : www.georisques.gouv.fr

Ce site est protégé par hCaptcha Politique de confidentialité et Conditions d’utilisation s’appliquent.

En poursuivant votre navigation sans modifier vos paramètres, vous acceptez l'utilisation de cookies susceptibles de réaliser des statistiques de visite. Cliquez ici pour plus d'informations