Bénéficiez des services de nos partenaires locaux soigneusement sélectionnés
pour vous accompagner dans votre parcours d'achat immobilier

Chantonnay maison en pierres de 80m² environ dans un village

— Chantonnay 85110 —
165 000 €
80 m² / 4 030 m²
5 pièces
parking

Nos partenaires locaux
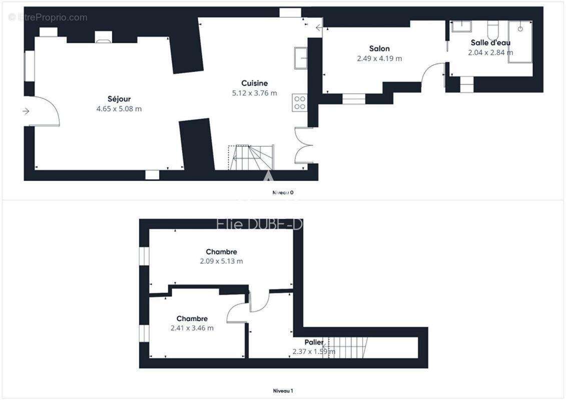
MegAgence Chantonnay M. Elie Dubé-Delthé vous propose de découvrir cette charmante maison de 80M² environ, située dans un village au calme, à quelques minutes du centre de Chantonnay, 45 minutes des plages , de la Rochelle, 35 minutes de la Roche-sur-Yon et du Puy du Fou.
Cette charmante maison se compose , d'une entrée, pièces de vie avec une cuisine ouverte aménagée équipée un poêle à bois, une pièce pouvant servir d'arrière cuisine ou lingerie, une salle d'eau avec sanitaire.
à l'étage un dégagement coin bureau, deux chambres.
le tout sur une parcelle de 4030 m² environ arboré avec une terrasse en bois Ipé de 150 M² avec piscine de 3X6 profondeur 150 cm avec vue dégagée sur la campagne.
les plus du bien :
façade faite en 2023
ouverture bois-alu 2023
Isolation des murs 2023
installation électrique et plomberie refait à neuf 2023.
idéal primo-accédants, résidence secondaire, investisseur Airbnb
.
pour toute visite et information me contacter au [Coordonnées masquées] M. Elie Dubé-Delthé

Les informations sur les risques auxquels ce bien est exposé sont disponibles sur le site Géorisques : www.georisques.gouv.fr
Prix de vente : 165 000 €
Honoraires charge vendeur

Contactez votre consultant megAgence : Elie DUBÉ-DELTHÉ, Tél. : [Coordonnées masquées], E-mail : [Coordonnées masquées] - EI - Agent commercial immatriculé au RSAC de LA ROCHE-SUR-YON sous le numéro 480 708 353
Voir plus

Référence: 199249
Honoraires à la charge du vendeur.
DPE
A
B
C
D
E
F
G
GES
A
B
C
D
E
F
G
Maison à CHANTONNAY
Maison à CHANTONNAY
Maison à CHANTONNAY
Maison à CHANTONNAY
Maison à CHANTONNAY
Maison à CHANTONNAY
Maison à CHANTONNAY
Maison à CHANTONNAY
Maison à CHANTONNAY
Maison à CHANTONNAY
Géorisques

Les informations sur les risques auxquels ce bien est exposé sont disponibles sur le site Géorisques : www.georisques.gouv.fr

Ce site est protégé par hCaptcha Politique de confidentialité et Conditions d’utilisation s’appliquent.

En poursuivant votre navigation sans modifier vos paramètres, vous acceptez l'utilisation de cookies susceptibles de réaliser des statistiques de visite. Cliquez ici pour plus d'informations