Bénéficiez des services de nos partenaires locaux soigneusement sélectionnés
pour vous accompagner dans votre parcours d'achat immobilier

ROSNY-SOUS-BOIS – Maison familiale 219 m² avec jardin et terrasse plein sud - proche du centre-ville et en limite de Neuilly Pla

— Rosny-Sous-Bois 93110 —
540 000 €
219 m²
8 pièces
parkingbalcon/terrasse

Nos partenaires locaux
EXCLUSIF – MAISON FAMILIALE 219 m² – 4 CHAMBRES – JARDIN – TERRASSE PLEIN SUD – ESPACE INDÉPENDANT – GARAGE

À seulement 10 minutes à pied du RER E Rosny-sous-Bois, à proximité du centre-ville et à quelques minutes de Neuilly Plaisance, découvrez cette belle maison familiale de 219 m² habitables (dont 60m² en rez-de-jardin aménagé), aux volumes généreux, édifiée sur une parcelle avec jardin, balcon, terrasse exposée plein sud et garage fermé.

Situé dans un environnement calme et pavillonnaire, proche des écoles et des commodités, ce joli bien se compose :

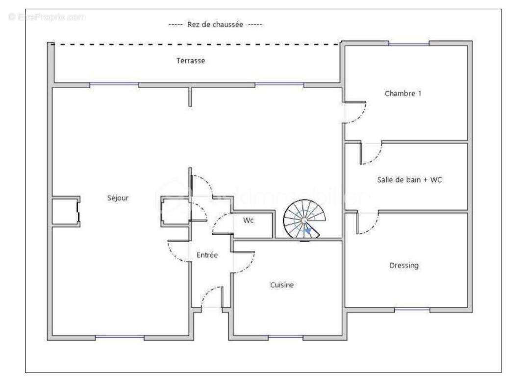
- REZ-DE-CHAUSSEE : entrée avec rangements - triple séjour traversant de + de 45 m² avec cheminée, lumineux et ouvrant sur une agréable terrasse plein sud - cuisine indépendante aménagée et équipée - suite parentale avec salle de bains et dressing - WC séparés

- ETAGE : palier qui dessert 3 grandes chambres avec rangements aux volumes confortables (17,54, 17,63 et 25, 55m²) et une salle de bains avec WC.

- REZ-DE-JARDIN : espace aménagé de 60m² environ comprenant une cuisine équipée, un séjour, une pièce de près de 9 m² (bureau ou chambre d'appoint), WC indépendant, chaufferie.

LE PLUS : un espace totalement indépendant offrant de multiples possibilités : télétravail, profession libérale, logement d'un proche. Possibilité de créer un appartement 2 pièces avec potentiel locatif.

Un garage fermé permet le stationnement de 2 véhicules. Possibilité de stationnement supplémentaire devant la maison.

Quelques travaux de rafraichissements permettront de libérer tout le potentiel de cette maison. Des suggestions 3D vous sont proposées dans cette annonce pour permettre une meilleure projection.

TRANSPORTS ET COMMODITES :
- RER E Gare Rosny sous Bois à 10 min à pied - Accès rapide RER A Neuilly Plaisance
- Bus 1, 114, 145
- Accès rapide A86
- Mairie de Rosny et Parc de Decesari à 500 m

Le quartier environnant est particulièrement apprécié des familles. Vous bénéficierez de la proximité immédiate du centre-ville de Rosny-sous-Bois et de ses commerces, parcs, écoles et animations, tout en profitant d'un cadre résidentiel agréable.

À quelques minutes seulement, Neuilly-Plaisance offre également un environnement agréable plus calme et verdoyant, idéal pour les promenades et la vie de quartier.

Laissez-vous charmer et accordez- vous le plaisir d'une visite ! Contactez-moi, je suis disponible 7J/7.

Cette annonce référence 322019 vous est présentée par votre agent commercial BSK Immobilier OIHIDA EL BAZ (EI) immatriculé au RSAC de BOBIGNY (93000) sous le numéro 9[Coordonnées masquées]011.

Prix du bien : 540 000,00 €
Les honoraires d'agence sont à la charge du vendeur.

A propos des performances énergétiques :
Date de réalisation du diagnostic énergétique : 29/03/2025
Score DPE : 232 kWhEP/m²/an
Score GES : 72 kgepCO2/m²/an
Montant estimé des dépenses annuelles d'énergie pour un usage standard : entre 6170.00 € et 8400.00 € par an. Prix moyens des énergies indexés sur l'année 2023 (abonnements compris).

Les informations sur les risques auxquels ce bien est exposé sont disponibles sur le site Géorisques : www.georisques.gouv.fr
Voir plus

Référence: 322019
Honoraires à la charge du vendeur.
DPE
A
B
C
D
E
F
G
GES
A
B
C
D
E
F
G
Maison à ROSNY-SOUS-BOIS
Maison à ROSNY-SOUS-BOIS
Maison à ROSNY-SOUS-BOIS
Maison à ROSNY-SOUS-BOIS
Maison à ROSNY-SOUS-BOIS
Maison à ROSNY-SOUS-BOIS
Maison à ROSNY-SOUS-BOIS
Maison à ROSNY-SOUS-BOIS
Maison à ROSNY-SOUS-BOIS
Maison à ROSNY-SOUS-BOIS
Maison à ROSNY-SOUS-BOIS
Maison à ROSNY-SOUS-BOIS
Maison à ROSNY-SOUS-BOIS
Maison à ROSNY-SOUS-BOIS
Maison à ROSNY-SOUS-BOIS
Maison à ROSNY-SOUS-BOIS
Maison à ROSNY-SOUS-BOIS
Maison à ROSNY-SOUS-BOIS
Maison à ROSNY-SOUS-BOIS
Géorisques

Les informations sur les risques auxquels ce bien est exposé sont disponibles sur le site Géorisques : www.georisques.gouv.fr

Ce site est protégé par hCaptcha Politique de confidentialité et Conditions d’utilisation s’appliquent.

En poursuivant votre navigation sans modifier vos paramètres, vous acceptez l'utilisation de cookies susceptibles de réaliser des statistiques de visite. Cliquez ici pour plus d'informations