Bénéficiez des services de nos partenaires locaux soigneusement sélectionnés
pour vous accompagner dans votre parcours d'achat immobilier

Maison 150 m² à Vaulx-En-Velin

— Vaulx-En-Velin 69120 —
445 000 €
150 m² / 440 m²
6 pièces

Nos partenaires locaux
- VAULX EN VELIN - IDEAL PROJET FAMILIAL OU INVESTISSEURS - 151 m2-
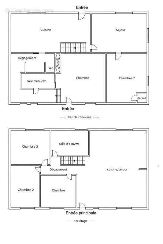
Julie Amar et Efficity, l'agence qui estime votre bien en ligne en collaboration avec ZEFIR, vous présentent cette maison individuelle de 7 pièces d'environ 151 m2, répartie sur deux niveaux, se situe à Vaulx-en-Velin et bénéficie d'un terrain d'environ 400 m2. Entièrement rénovée il y a deux ans, elle offre un intérieur soigné et fonctionnel, ainsi qu'un jardin agréable, sans vis-à-vis direct. Le sous-sol entièrement aménagé, organisé en première partie en T2 et une entrée indépendante en studio. Ce niveau constitue un atout supplémentaire aussi bien pour un projet familial que pour un investissement locatif. De plus , une parcelle mitoyenne accompagne le bien. Bien que non constructible pour de l'habitation, elle offre un potentiel intéressant pour un usage professionnel (bureaux ou activités), selon les indications communiquées oralement par la mairie, et sous réserve des autorisations en vigueur. À proximité, plusieurs établissements scolaires facilitent le quotidien : l'école maternelle Wallon à environ 400 m, l'école primaire Youri Gagarine à 500 m, l'établissement Manu à 500 m également, et l'école élémentaire Angélina Courcelles à environ 700 m. Les espaces verts sont aussi facilement accessibles avec le parc Street Workout à un peu plus de 500 m et le parc Théâtre de Verdure à environ 800 m.
A visiter sans tarder! Contacter julie au [Coordonnées masquées] ou par mail à ; [Coordonnées masquées]
Les informations sur les risques auxquels ce bien est exposé sont disponibles sur le site Georisque : georisques. gouv. fr
Julie Amar - EI - est Agent Commercial mandataire en immobilier, immatriculé au Registre Spécial des Agents Commerciaux du Tribunal de Commerce de Lyon sous le n°512970807.
Siège social du mandant : effiCity, 48 avenue de Villiers - 75017 PARIS - Société par Actions Simplifiée, société au capital de 132 373,05 euros, immatriculée au RCS Paris 497 617 746 et titulaire de la Carte professionnelle CPI 75[Coordonnées masquées]02 025 - CCI Paris IDF - Caisse de Garantie : GALIAN Assurances 89 rue de la Boétie 75008 Paris
Voir plus

Référence: 204968
Honoraires à la charge du vendeur.
Barème des honoraires
DPE
A
B
C
D
E
F
G
GES
A
B
C
D
E
F
G
Maison à VAULX-EN-VELIN
Maison à VAULX-EN-VELIN
Maison à VAULX-EN-VELIN
Maison à VAULX-EN-VELIN
Maison à VAULX-EN-VELIN
Maison à VAULX-EN-VELIN
Maison à VAULX-EN-VELIN
Maison à VAULX-EN-VELIN
Maison à VAULX-EN-VELIN
Maison à VAULX-EN-VELIN
Maison à VAULX-EN-VELIN
Maison à VAULX-EN-VELIN
Maison à VAULX-EN-VELIN
Maison à VAULX-EN-VELIN
Maison à VAULX-EN-VELIN
Maison à VAULX-EN-VELIN
Maison à VAULX-EN-VELIN
Géorisques

Les informations sur les risques auxquels ce bien est exposé sont disponibles sur le site Géorisques : www.georisques.gouv.fr

Ce site est protégé par hCaptcha Politique de confidentialité et Conditions d’utilisation s’appliquent.

En poursuivant votre navigation sans modifier vos paramètres, vous acceptez l'utilisation de cookies susceptibles de réaliser des statistiques de visite. Cliquez ici pour plus d'informations