Bénéficiez des services de nos partenaires locaux soigneusement sélectionnés
pour vous accompagner dans votre parcours d'achat immobilier

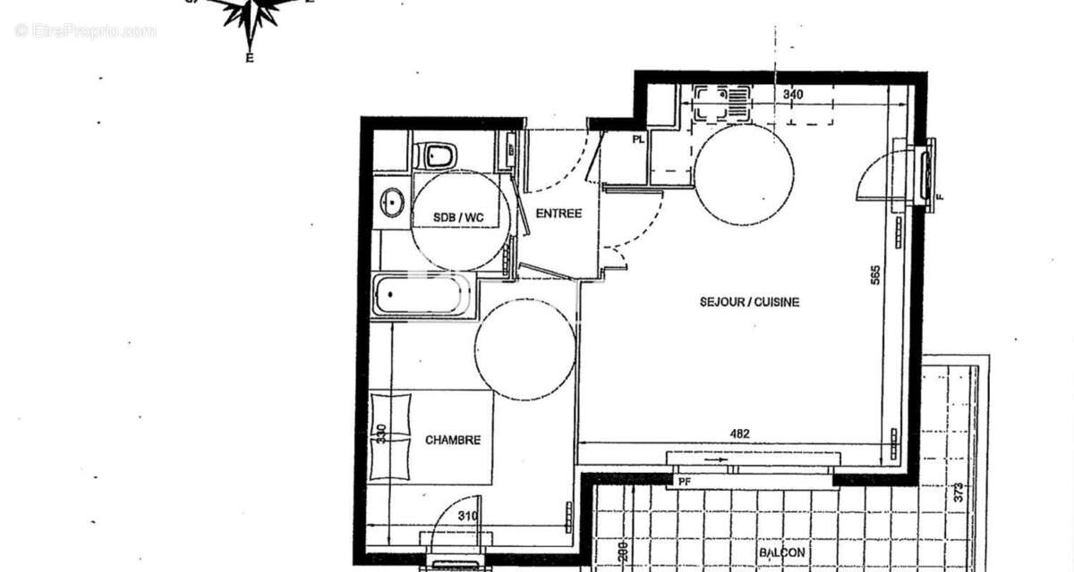
COUP DE COEUR pour ce 2 pièces dans une petite résidence avec piscine à l'Ouest de la Croix des gardes

— Cannes 06150 —
249 900 €
44 m²
2 pièces
ascenseurpiscine

Nos partenaires locaux
Nous vous proposons à la vente ce charmant 2 pièces orienté vers l'Est, au calme, situé dans une résidence confidentielle récente, sécurisée, avec une belle piscine.
Le séjour avec sa cuisine ouverte donnent sur une grande baie vitrée puis une belle terrasse profonde de 13m2 qui donne sur la piscine comme la chambre à coucher.
Un box fermé de 13,50m2 vient compléter cet appartement.

Les informations sur les risques auxquels ce bien est exposé sont disponibles sur le site Géorisques : georisques.gouv.fr
Les frais d'agence sont inclus dans le prix affiché à la charge du vendeur

Ce bien est à vendre en vente interactive sur le site de SQUARIMO.

Le prix affiché est un prix de présentation minimum qui n'engage pas le vendeur.
La Participation à la vente interactive de SQUARIMO n'entraîne aucun frais supplémentaire pour l'acquéreur, ou pour le vendeur.
La participation à la vente interactive est soumise à agrément préalable de SQUARIMO.
Les offres seront transmises au vendeur qui reste libre de choisir parmi les offres formulées.
Une offre formulée sur le site SQUARIMO n'est pas un engagement d'acquérir, ni une offre ferme d'achat, mais seulement une intention de négocier de bonne foi sur la base des conditions de l'offre.
Voir plus

Référence: 00742499
Bien en copropriété. Nombre de lots : 110. Charges de copropriété : 188 €.
Honoraires à la charge du vendeur.
Barème des honoraires
DPE
A
B
C
D
E
F
G
GES
A
B
C
D
E
F
G
Appartement à CANNES
Appartement à CANNES
Appartement à CANNES
Appartement à CANNES
Appartement à CANNES
Appartement à CANNES
Appartement à CANNES
Appartement à CANNES
Appartement à CANNES
Appartement à CANNES
Géorisques

Les informations sur les risques auxquels ce bien est exposé sont disponibles sur le site Géorisques : www.georisques.gouv.fr

Ce site est protégé par hCaptcha Politique de confidentialité et Conditions d’utilisation s’appliquent.