Bénéficiez des services de nos partenaires locaux soigneusement sélectionnés
pour vous accompagner dans votre parcours d'achat immobilier

Appartement t4 serris centre-ville 86m², sans vis-à-vis, dpe c

— Serris 77700 —
420 000 €
86 m²
4 pièces
parkingascenseur

Nos partenaires locaux
Situé au cœur de Serris, à deux pas de la mairie et de l'effervescence de Val d'Europe, cet appartement T4 de 86 m² constitue une opportunité financière rare sur un marché local en constante valorisation. Sa localisation stratégique permet de rejoindre Paris. Offrant un cadre de vie privilégié à proximité immédiate des pôles économiques majeurs. Doté d'une excellente performance énergétique DPE C, ce bien garantit un confort thermique optimal et des charges maîtrisées, répondant ainsi aux exigences des acheteurs les plus rigoureux en quête de rentabilité et de pérennité.

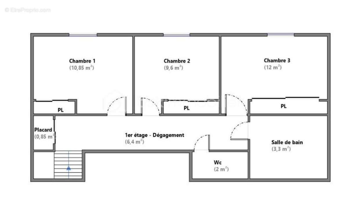
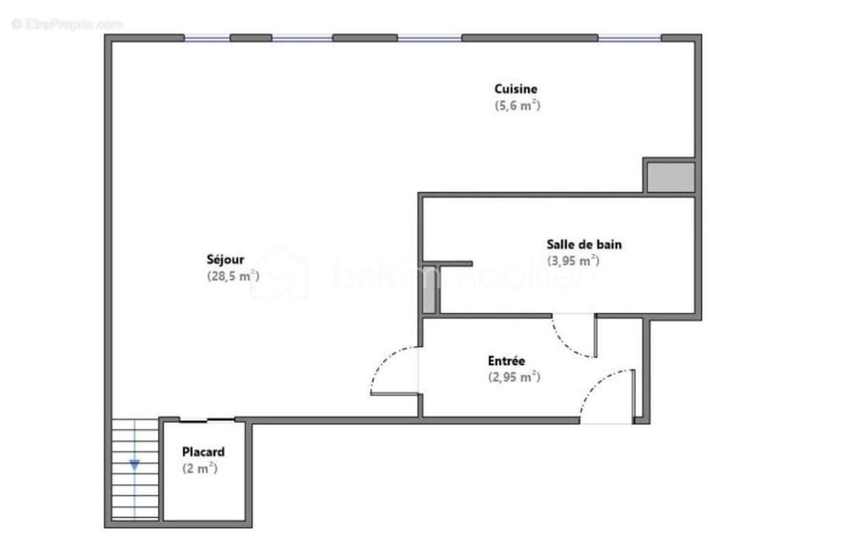
L'agencement intérieur mise sur la clarté et l'amplitude des volumes, avec une distribution des pièces fluide et sans aucune perte d'espace. Le séjour spacieux s'ouvre sur un environnement calme, une partie nuit se distingue par 3 chambre une salle de bain et wc-separe, offrant une modularité rare pour le secteur. L'absence totale de vis-à-vis, critère extrêmement recherché à Serris, confère à chaque pièce une luminosité naturelle abondante et une intimité totale, idéales pour concilier confort de vie de famille et calme absolu.

L'état général du bien est irréprochable, ne nécessitant aucun travaux, ce qui permet une installation immédiate dans un environnement sain et moderne. La prestation est complétée par deux places de parking privatives, un atout logistique indispensable en centre-ville. Pour découvrir ce bien d'exception ou organiser une visite, contactez Mme Oliveira - BSK Immobilier au [Coordonnées masquées]

Cette annonce référence 322152 vous est présentée par votre agent commercial BSK Immobilier FABIANA NUNES OLIVEIRA (EI) immatriculé au RSAC de NANTEUIL-LES-MEAUX (77100) sous le numéro 9[Coordonnées masquées]015.

Prix du bien : 420 000,00 €
Les honoraires d'agence sont à la charge du vendeur.

A propos de la copropriété :
Pas de procédure en cours.
Nombre de lots : 1 070
Charges prévisionnelles annuelles : 3 000,00 €

A propos des performances énergétiques :
Date de réalisation du diagnostic énergétique : 04/03/2025
Score DPE : 134 kWhEP/m²/an
Score GES : 5 kgepCO2/m²/an
Montant estimé des dépenses annuelles d'énergie pour un usage standard : entre 1140.00 € et 1570.00 € par an. Prix moyens des énergies indexés sur l'année 2023 (abonnements compris).

Les informations sur les risques auxquels ce bien est exposé sont disponibles sur le site Géorisques : www.georisques.gouv.fr
Voir plus

Référence: 322152
Bien en copropriété. Nombre de lots : 1070. Charges de copropriété : 250 €.
Honoraires à la charge du vendeur.
DPE
A
B
C
D
E
F
G
GES
A
B
C
D
E
F
G
Appartement à SERRIS
Appartement à SERRIS
Appartement à SERRIS
Appartement à SERRIS
Appartement à SERRIS
Appartement à SERRIS
Appartement à SERRIS
Appartement à SERRIS
Appartement à SERRIS
Appartement à SERRIS
Appartement à SERRIS
Géorisques

Les informations sur les risques auxquels ce bien est exposé sont disponibles sur le site Géorisques : www.georisques.gouv.fr

Ce site est protégé par hCaptcha Politique de confidentialité et Conditions d’utilisation s’appliquent.

En poursuivant votre navigation sans modifier vos paramètres, vous acceptez l'utilisation de cookies susceptibles de réaliser des statistiques de visite. Cliquez ici pour plus d'informations