Bénéficiez des services de nos partenaires locaux soigneusement sélectionnés
pour vous accompagner dans votre parcours d'achat immobilier

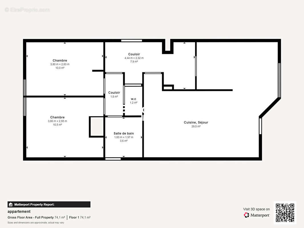
A vendre lorient- nouvelle ville- appartement t3 de 64 m² avec garage.

— Lorient 56100 —
176 100 €
64 m²
3 pièces

Nos partenaires locaux
A VENDRE - Appartement T3 de 64 m² avec garage - Secteur Nouvelle Ville Situé dans le secteur recherché de Nouvelle Ville, découvrez ce charmant appartement T3 de 64 m², au sein d'un immeuble bien entretenu des années 80. L'appartement se compose :d'une entrée fonctionnelle, d 'un séjour lumineux offrant un bel espace de vie,d 'une cuisine aménagée, de deux chambres confortable, d'une salle de bains,de WC séparés Un garage privatif complète ce bien, un véritable atout dans le secteur. Idéalement situé, cet appartement se trouve à moins d'un kilomètre des commerces et à seulement 5 minutes des écoles, notamment l'École maternelle publique Nouvelle Ville et l'École élémentaire publique Nouvelle Ville. Les transports en commun sont facilement accessibles, avec un arrêt de bus à 5 minutes. La mer est à 5 km, offrant ainsi un cadre de vie agréable. Il est à vendre pour la somme de 176 100 euros frais d'agence inclus. Honoraires à la charge de l'acquéreur : 6,75% du prix du bien. Pour plus d'informations ou pour organiser une visite, contactez Barraine IMMO à Lorient. (6.73 % honoraires TTC à la charge de l'acquéreur.) Copropriété de 15 lots - dont 15 lots habitation. Charges annuelles : 1264 euros.
Voir plus

Référence: LT00402-MF
Bien en copropriété. Nombre de lots : 15. Charges de copropriété : 1264 €.
Honoraires d'agence de 6.73% à la charge de l'acquéreur
Barème des honoraires
DPE
A
B
C
D
E
F
G
GES
A
B
C
D
E
F
G
Appartement à LORIENT
Appartement à LORIENT
Appartement à LORIENT
Appartement à LORIENT
Appartement à LORIENT
Appartement à LORIENT
Appartement à LORIENT
Appartement à LORIENT
Appartement à LORIENT
Appartement à LORIENT
Appartement à LORIENT
Appartement à LORIENT
Appartement à LORIENT
Appartement à LORIENT
Appartement à LORIENT
Appartement à LORIENT
Appartement à LORIENT
Appartement à LORIENT
Appartement à LORIENT
Appartement à LORIENT
Géorisques

Les informations sur les risques auxquels ce bien est exposé sont disponibles sur le site Géorisques : www.georisques.gouv.fr

Ce site est protégé par hCaptcha Politique de confidentialité et Conditions d’utilisation s’appliquent.

En poursuivant votre navigation sans modifier vos paramètres, vous acceptez l'utilisation de cookies susceptibles de réaliser des statistiques de visite. Cliquez ici pour plus d'informations