Bénéficiez des services de nos partenaires locaux soigneusement sélectionnés
pour vous accompagner dans votre parcours d'achat immobilier

Biarritz - Parc d'Hiver - A vendre Maison avec garage et piscine

— Biarritz 64200 —
1 290 000 €
187 m² / 696 m²
7 pièces
balcon/terrassejardinpiscine

Nos partenaires locaux
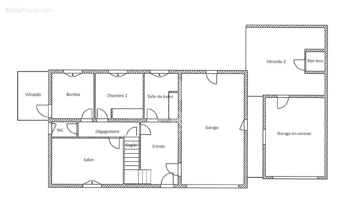
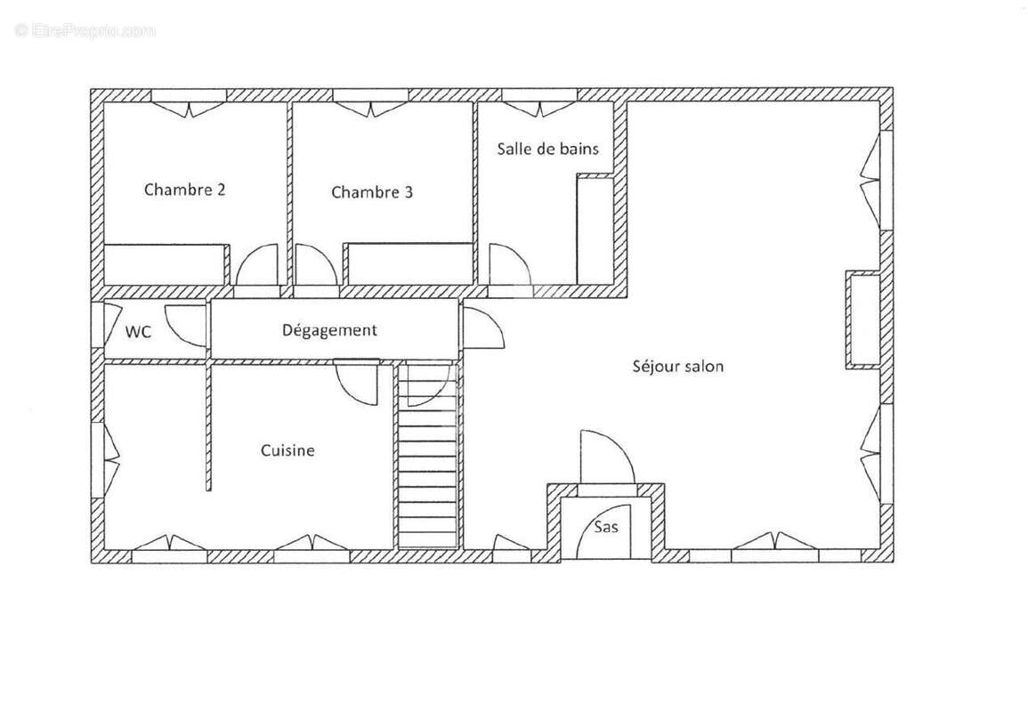
Biarritz - Parc D'Hiver - Vente belle villa d'environ 190m², auxquels s'ajoutent une véranda, un garage et une piscine le tout sur une parcelle arborée de 700m² au sein de ce quartier convoité offrant commerces, écoles et transports en communs. Au rez-de-chaussée, vous trouverez un hall d'accueil donnant accès à l'étage ainsi qu'à deux chambres, une salle de bain, des toilettes séparées ainsi que deux pièces à aménager selon vos besoins. L'étage offre près de 45m² de pièce de vie lumineuse et sans vis-à-vis ouvrant sur balcon, une cuisine, une salle à manger, deux chambres, une grande salle de bain et des WC séparées. La distribution intérieure et l'escalier extérieur permettent la création de deux appartements distincts. Une pompe à chaleur a récemment installée. Après un rafraichissement elle promet une vie des plus agréables. ERA CAP OCEAN - 98 avenue de Biarritz - 64600 Anglet Téléphone : [Coordonnées masquées] Toutes nos annonces sur www.era-immobilier-anglet.fr Céline FRESCHI (EI) Agent Commercial - Numéro RSAC : 829198696 - Bayonne.
Voir plus

Référence: 3434
Honoraires à la charge du vendeur.
Barème des honoraires
DPE
A
B
C
D
E
F
G
GES
A
B
C
D
E
F
G
Maison à BIARRITZ
Maison à BIARRITZ
Maison à BIARRITZ
Maison à BIARRITZ
Maison à BIARRITZ
Maison à BIARRITZ
Maison à BIARRITZ
Géorisques

Les informations sur les risques auxquels ce bien est exposé sont disponibles sur le site Géorisques : www.georisques.gouv.fr

Ce site est protégé par hCaptcha Politique de confidentialité et Conditions d’utilisation s’appliquent.

En poursuivant votre navigation sans modifier vos paramètres, vous acceptez l'utilisation de cookies susceptibles de réaliser des statistiques de visite. Cliquez ici pour plus d'informations