Bénéficiez des services de nos partenaires locaux soigneusement sélectionnés
pour vous accompagner dans votre parcours d'achat immobilier

Vente appartement t2 _ coulommiers

— Coulommiers 77120 —
96 302 €
52 m²
2 pièces

Nos partenaires locaux
FRAIS DE NOTAIRE REDUITS A 3 % DU PRIX DE VENTE AU LIEU DE 8 % !!!

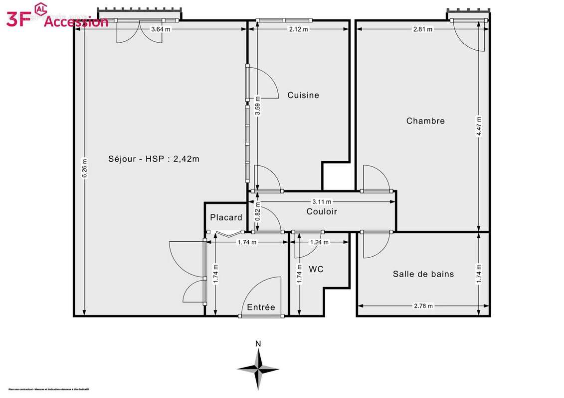
Découvrez ce grand appartement de type T2 d'une superficie de 52 m² parfaitement agencé, situé au 1er étage d’une résidence sécurisée sans ascenseur. Alliant confort et praticité, ce bien bénéficie d'une localisation stratégique au cœur d'une ville dynamique.

Les points clés du bien :
Espace de vie : Un séjour spacieux et lumineux, idéal pour vos moments de partage.

Côté nuit : Une chambre confortable au calme.

Fonctionnalité : Une cuisine séparée, une salle de bain et un WC indépendant.

Les "Indispensables" inclus : Un emplacement de stationnement en sous-sol.

Pourquoi choisir cet appartement ?

Localisation & Commodités :
À Coulommiers, bénéficiez d'un cadre de vie agréable avec un accès rapide aux axes routiers (D934, D402) et aux transports en commun reliant Paris par la ligne P.

VISITE VIRTUELLE DISPONIBLE : https://my.matterport.com/show/?m=CvUnB9Bbsnw

Nombre de lots dans la copropriété : 150
Pas de procédure en cours
DPE : C
Chauffage et production d'eau chaude : Collectif Gaz
Taxe Foncière en 2023 : 900 €
Quote-part annuelle des charges courantes du budget prévisionnel 2024 : 1 500 €

Pour plus d’information, n’hésitez pas à appeler le [Coordonnées masquées].

Honoraires à la charge du vendeur et Frais de notaire à la charge de l'acquéreur

Conformément à l'article l.561-5 du code monétaire et financier, la copie de la pièce d'identité de tous les visiteurs sera demandée avant la visite. Nous vous remercions de faciliter cette démarche à votre conseiller.

Conformément à l’article R123-237 du code de commerce :

Trans’Actif Immobilier SAS

24 rue de Paradis-75 010 PARIS

N°SIRET 514 367 978 00046 - RCS Paris

Conformément à l’article 94 du décret n°72-678 du 20 juillet 1972 « l’agence ne doit recevoir ni détenir d’autres fonds, effets ou valeurs que ceux représentatifs de sa rémunération ou de ses honoraires ».

Prix et conditions soumis à ressources selon l'article L443-11 et suivants du CCH.

Délais de remise des offres : Au plus tard 1 mois à compter de la date de parution de la dernière
publicité légale

Modalités de remise des offres : Par mail, remise en mains propres ou par tout autre moyen

Les informations sur les risques auxquels ce bien est exposé sont disponibles sur le site Géorisques : www.georisques.gouv.fr
Voir plus

Référence: 8174L-0113 - JAS
DPE
A
B
C
D
E
F
G
GES
A
B
C
D
E
F
G
Appartement à COULOMMIERS
Appartement à COULOMMIERS
Appartement à COULOMMIERS
Appartement à COULOMMIERS
Appartement à COULOMMIERS
Appartement à COULOMMIERS
Appartement à COULOMMIERS
Appartement à COULOMMIERS
Appartement à COULOMMIERS
Appartement à COULOMMIERS
Appartement à COULOMMIERS
Appartement à COULOMMIERS
Appartement à COULOMMIERS
Géorisques

Les informations sur les risques auxquels ce bien est exposé sont disponibles sur le site Géorisques : www.georisques.gouv.fr

Ce site est protégé par hCaptcha Politique de confidentialité et Conditions d’utilisation s’appliquent.

En poursuivant votre navigation sans modifier vos paramètres, vous acceptez l'utilisation de cookies susceptibles de réaliser des statistiques de visite. Cliquez ici pour plus d'informations