Bénéficiez des services de nos partenaires locaux soigneusement sélectionnés
pour vous accompagner dans votre parcours d'achat immobilier

Maison T5 Terrasse 124m2

— Castelnaudary 11400 —
169 000 €
124 m² / 30 m²
5 pièces
balcon/terrasse

Nos partenaires locaux
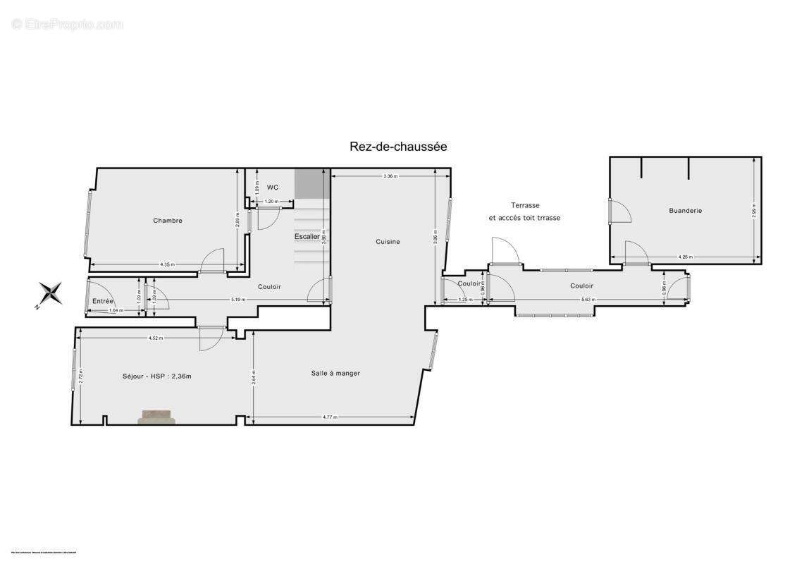
Liberkeys vous propose, en exclusivité à Pexiora, cette spacieuse maison familiale de 124 m², pensée pour conjuguer confort, fonctionnalité et qualité de vie. Idéalement située à quelques mètres des commerces, des écoles et de la mairie, vous bénéficiez ici d'une vie paisible, tout en restant proche de Castelnaudary, axe clé du Lauragais, et à seulement 20 minutes de Carcassonne.
Sur ce bien:
- Une entrée
- Une belle pièce de vie
- Une cuisine équipée ouverte sur le séjour 39m2
_ Une buanderie
- Une chambre
- Un wc
- Une terrasse
Au Premier
- 3 chambres
- Un dressing
- Une salle de bain avec baignoire
- Une salle d'eau avec douche et wc
- Une grande terrasse sud
Au deuxième
- Un grenier pouvant être aménagée
Les plus:
- Fenêtres double vitrage avec volet roulant électrique
- Chauffage par pompe à chaleur air/air
- Cheminée avec insert
- Fibre
- Parking gratuit à proximité
. Taxe foncière de seulement 1 184 €/an.

Montant estimé des dépenses annuelles d'énergie pour un usage standard : entre 1390 € et 1940 € par an. Prix moyens des énergies indexés sur l'année 2021 (abonnements compris).

Ce bien vous plaît ? Visitez-le virtuellement en 3D sur le site de Liberkeys ou contactez directement votre conseiller. Odiau Sabine, agent commercial immatriculé au RSAC de Foix sous le numéro 880 203 930. Référence annonce : DOM26619. Date de réalisation du diagnostic : 22/08/2025. Les honoraires sont à la charge du vendeur.
Voir plus

Référence: DOM26619
Honoraires à la charge du vendeur.
DPE
A
B
C
D
E
F
G
GES
A
B
C
D
E
F
G
Maison à CASTELNAUDARY
Maison à CASTELNAUDARY
Maison à CASTELNAUDARY
Maison à CASTELNAUDARY
Maison à CASTELNAUDARY
Maison à CASTELNAUDARY
Maison à CASTELNAUDARY
Maison à CASTELNAUDARY
Maison à CASTELNAUDARY
Maison à CASTELNAUDARY
Maison à CASTELNAUDARY
Maison à CASTELNAUDARY
Maison à CASTELNAUDARY
Maison à CASTELNAUDARY
Géorisques

Les informations sur les risques auxquels ce bien est exposé sont disponibles sur le site Géorisques : www.georisques.gouv.fr

Ce site est protégé par hCaptcha Politique de confidentialité et Conditions d’utilisation s’appliquent.

En poursuivant votre navigation sans modifier vos paramètres, vous acceptez l'utilisation de cookies susceptibles de réaliser des statistiques de visite. Cliquez ici pour plus d'informations