Bénéficiez des services de nos partenaires locaux soigneusement sélectionnés
pour vous accompagner dans votre parcours d'achat immobilier

Maison 73 m² à Montpon-Menesterol

— Montpon-Menesterol 24700 —
118 250 €
73 m² / 680 m²
3 pièces
parking

Nos partenaires locaux
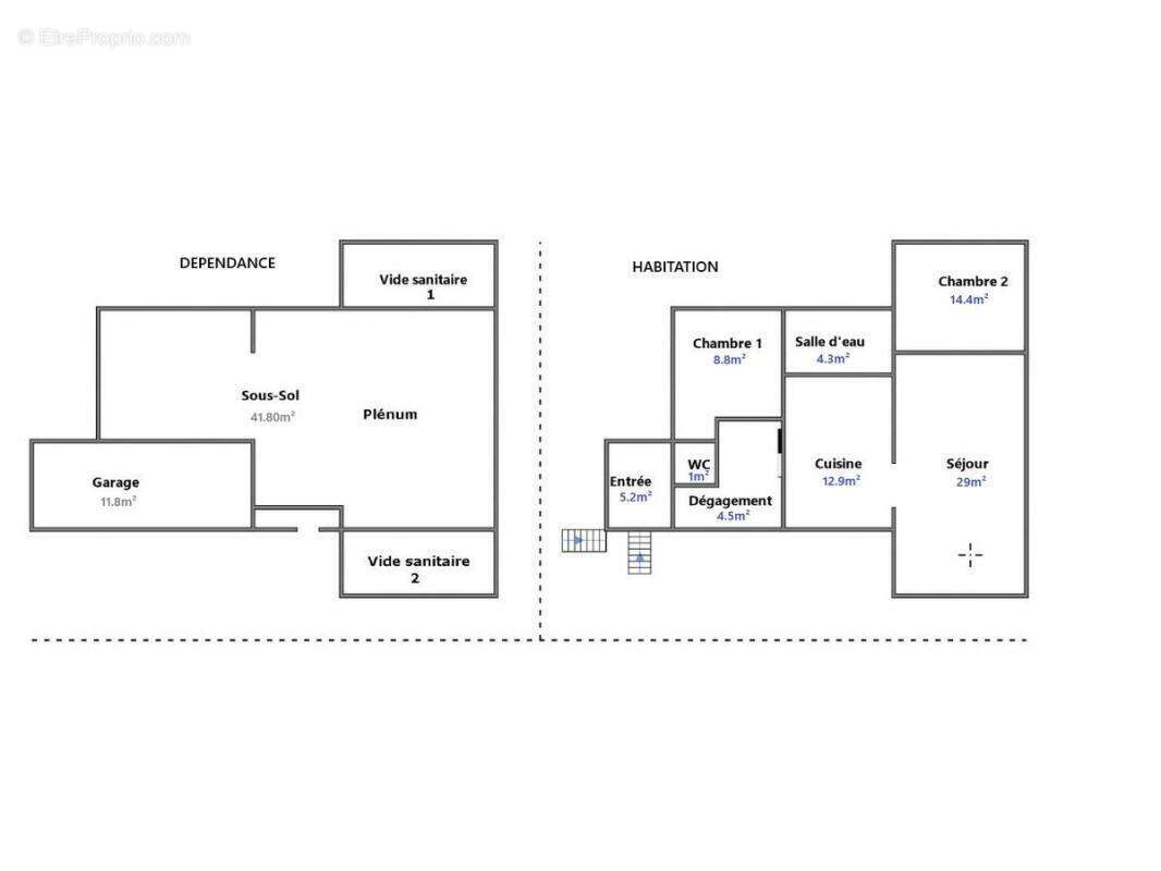
Maison de ville 73 m² avec Jardin, Garage et Sous-sol au Centre Montpon-Ménestérol 24700. Idéalement située au centre de Montpon-Ménestérol, à proximité de toutes les commodités, cette charmante maison de ville de 73 m² offre un cadre de vie pratique et agréable. Elle se compose d'une entrée, de deux chambres, d'un beau séjour lumineux de 30 m² avec poêle à pellets, d'une cuisine indépendante aménagée et équipée, d'une salle d'eau et d'un WC séparé. Côté dépendances et extérieurs, vous disposez d'un garage simple de 12 m² et d'un Sous-sol / atelier de 40 m² avec accès indépendant depuis la route, idéal pour moto ou petit véhicule. Édifiée sur un terrain plat et arboré de 600 m², elle bénéficie d'un emplacement stratégique à seulement 1 km de la gare SNCF et à 4 km de l'entrée de l'A89, facilitant ainsi vos déplacements. Fonctionnelle et bien située, cette maison conviendra aussi bien pour une résidence principale que pour un investissement locatif. Ce bien est raccordé à la fibre et au tout à l'égout. Si ce bien est fait pour vous, prenez vite rendez-vous ! Infos et visites 7j/7. Maquette interactive 360° disponible sur demande. Le prix indiqué comprend les honoraires de négociation qui se montent à 7.5% TTC du prix affiché, ces honoraires sont à la charge exclusive de l'acquéreur. DPE: 387, soit F, GES: 14, soit C. Guillaume BERTRAND, Agent Commercial immatriculé au RSAC de PERIGUEUX sous le numéro 75397841000029 - A la lucarne de l'immobilier - Ref. 84949
Voir plus

Référence: 84949
Honoraires d'agence de 7.5% à la charge de l'acquéreur
DPE
A
B
C
D
E
F
G
GES
A
B
C
D
E
F
G
Maison à MONTPON-MENESTEROL
Maison à MONTPON-MENESTEROL
Maison à MONTPON-MENESTEROL
Maison à MONTPON-MENESTEROL
Maison à MONTPON-MENESTEROL
Maison à MONTPON-MENESTEROL
Maison à MONTPON-MENESTEROL
Maison à MONTPON-MENESTEROL
Maison à MONTPON-MENESTEROL
Maison à MONTPON-MENESTEROL
Maison à MONTPON-MENESTEROL
Maison à MONTPON-MENESTEROL
Maison à MONTPON-MENESTEROL
Maison à MONTPON-MENESTEROL
Maison à MONTPON-MENESTEROL
Maison à MONTPON-MENESTEROL
Maison à MONTPON-MENESTEROL
Maison à MONTPON-MENESTEROL
Maison à MONTPON-MENESTEROL
Maison à MONTPON-MENESTEROL
Maison à MONTPON-MENESTEROL
Géorisques

Les informations sur les risques auxquels ce bien est exposé sont disponibles sur le site Géorisques : www.georisques.gouv.fr

Ce site est protégé par hCaptcha Politique de confidentialité et Conditions d’utilisation s’appliquent.

En poursuivant votre navigation sans modifier vos paramètres, vous acceptez l'utilisation de cookies susceptibles de réaliser des statistiques de visite. Cliquez ici pour plus d'informations