Bénéficiez des services de nos partenaires locaux soigneusement sélectionnés
pour vous accompagner dans votre parcours d'achat immobilier

Maison 95 m² à Kertzfeld

— Kertzfeld 67230 —
312 000 €
95 m² / 347 m²
4 pièces
parkingjardin

Nos partenaires locaux
Situé à Kertzfeld, dans un environnement calme et résidentiel, découvrez ce projet de construction sur un terrain de 3,47 ares, idéal pour une résidence principale moderne et fonctionnelle.

? Terrain : 3,47 ares
? Maison individuelle de 95 m² habitables
? Projet projette de manière optimisée
? Environnement agréable et peu passant

? Descriptif du projet

Ce projet propose une maison contemporaine avec chauffage au sol, pensée pour offrir confort, luminosité et fonctionnalité au quotidien.

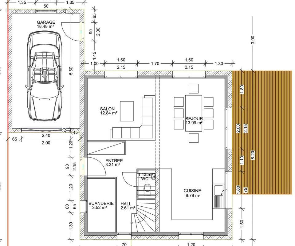
Au rez-de-chaussée :
Entrée
Espace de vie lumineux comprenant salon / séjour / cuisine ouverte
WC indépendants
Buanderie
Garage attenant
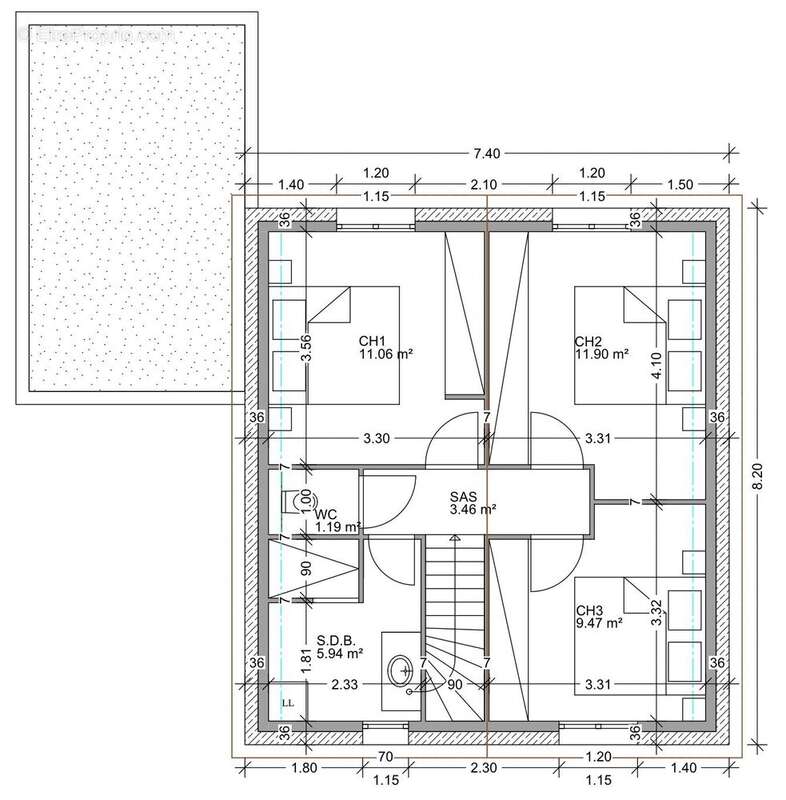
À l'étage :
3 chambres confortables
Salle de bain familiale
toilettes

Prestations :
Pompe à chaleur air/eau
Chauffage au sol au rez-de-chaussée
Carrelage au sol au rez-de-chaussée
Sols stratifiés à l'étage
Construction conforme aux normes énergétiques en vigueur

Ce projet est idéal pour une famille souhaitant s'installer dans un cadre de vie agréable, tout en restant proche des commodités et des axes principaux.


? Kertzfeld séduit par son cadre de vie, son esprit village et sa situation géographique recherchée.



? Contactez-nous pour plus d'informations, découvrez les possibilités d'aménagement ou étudiez votre projet personnalisé.




DPE vierge. Les informations sur les risques auxquels ce bien est exposé sont disponibles sur le site Géorisques : georisques.gouv.fr.
Voir plus

Référence: VM945-MYAGENCE
Honoraires à la charge de l'acquéreur.
Barème des honoraires
Maison à KERTZFELD
Maison à KERTZFELD
Maison à KERTZFELD
Maison à KERTZFELD
Géorisques

Les informations sur les risques auxquels ce bien est exposé sont disponibles sur le site Géorisques : www.georisques.gouv.fr

Ce site est protégé par hCaptcha Politique de confidentialité et Conditions d’utilisation s’appliquent.

En poursuivant votre navigation sans modifier vos paramètres, vous acceptez l'utilisation de cookies susceptibles de réaliser des statistiques de visite. Cliquez ici pour plus d'informations