Bénéficiez des services de nos partenaires locaux soigneusement sélectionnés
pour vous accompagner dans votre parcours d'achat immobilier

Appartement 35 m² à Montignac

— Montignac 24290 —
61 000 €
35 m²
2 pièces

Nos partenaires locaux
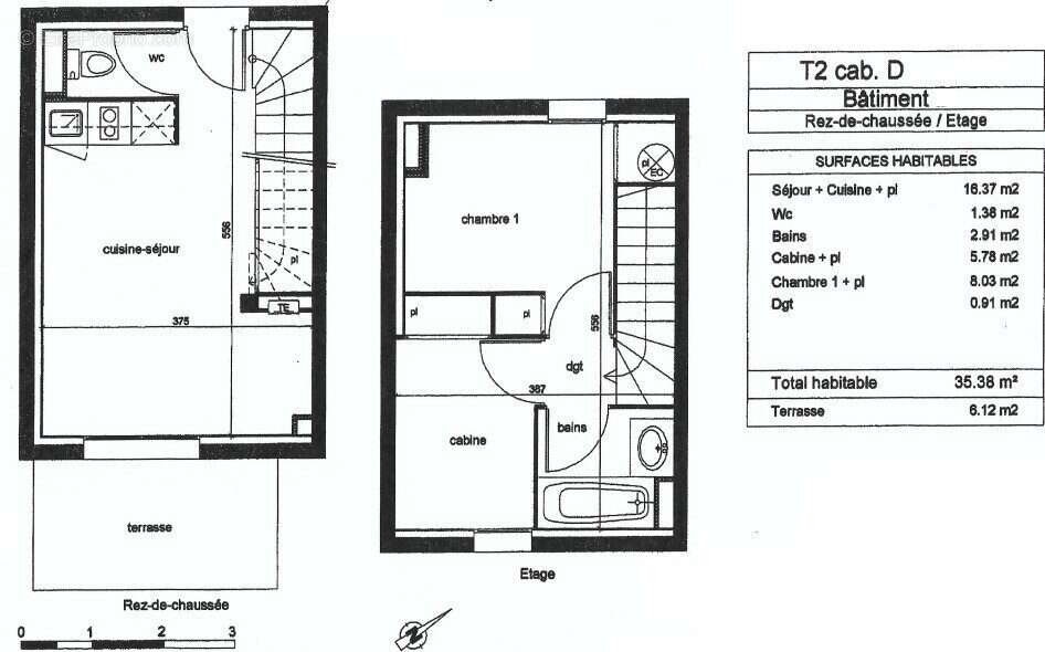
Forom Immobilier vous propose en exclusivité cet appartement T2 DUPLEX d'environ 35 m² dans une résidence de tourisme à Montignac Lascaux.

Il se compose au rdc d'un séjour avec cuisine ouverte équipée, un WC séparé et une terrasse.

A l'étage, chambres, une cabine (ou petite chambre) et une salle de bains.

Libre de tout bail à partir du 30/09/2026 !

Photos non contractuelles.

• Charges : 134,15€ / mois (dont eau et électricité inclus)
• Taxe foncière : 282€ / an
• DPE : D
• Nombre de lots : 122

La Résidence Le Hameau du Moulin est en plein coeur du Périgord Noir. Idéalement située pour visiter Sarlat la Canéda, les grottes de Lascaux, le village du Bournat, l'Abri du Cap Blanc et La Roque Saint Christophe (2 sites classés patrimoine de l'humanité par l'UNESCO).

Honoraires à la charge du vendeur. Dans une copropriété de 122 lots. Aucune procédure n'est en cours. Classe énergie D, Classe climat B. Les informations sur les risques auxquels ce bien est exposé sont disponibles sur le site Géorisques : georisques.gouv.fr.
Voir plus

Référence: 4015-FOROM
Bien en copropriété. Nombre de lots : 122.
Honoraires à la charge du vendeur.
Barème des honoraires
DPE
A
B
C
D
E
F
G
GES
A
B
C
D
E
F
G
Appartement à MONTIGNAC
Appartement à MONTIGNAC
Appartement à MONTIGNAC
Appartement à MONTIGNAC
Appartement à MONTIGNAC
Appartement à MONTIGNAC
Appartement à MONTIGNAC
Appartement à MONTIGNAC
Appartement à MONTIGNAC
Géorisques

Les informations sur les risques auxquels ce bien est exposé sont disponibles sur le site Géorisques : www.georisques.gouv.fr

Ce site est protégé par hCaptcha Politique de confidentialité et Conditions d’utilisation s’appliquent.

En poursuivant votre navigation sans modifier vos paramètres, vous acceptez l'utilisation de cookies susceptibles de réaliser des statistiques de visite. Cliquez ici pour plus d'informations