Bénéficiez des services de nos partenaires locaux soigneusement sélectionnés
pour vous accompagner dans votre parcours d'achat immobilier

Maison t4 neuve avec garage et jardin

— Manosque 04100 —
279 000 €
92 m² / 200 m²
4 pièces
parking

Nos partenaires locaux
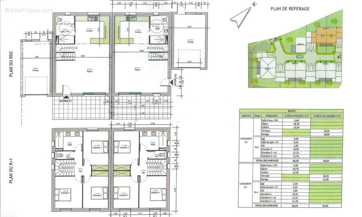
Terres et Toits immobilier pour propose de découvrir ce nouveau programme immobilier neuf de 9 maisons en copropriété horizontale à Manosque : les jardins d'ANTOINE! Alliant confort, modernité et espace extérieur.  Livraison mars 2027 – Frais de notaire réduits – VEFA
Chaque maison R+1 comprend :

92 m² habitables + garage 21 m² + place de stationnement

RDC : séjour lumineux, cuisine ouverte, WC, buanderie

Étage : 3 chambres avec placard, salle de bains, WC séparé

Jardin privatif

Architecture fonctionnelle

Caractéristiques principales :

Nombre de lots : 9

Petit programme intimiste

Copropriété horizontale sans charges 

 Confort moderne :

Construites selon les dernières normes RT2020 / RE2020

Idéal pour résidence principale 

Prix : 279 000 € à 294 000 € (honoraires à charge promoteur)

FRAIS DE NOTAIRE REDUITS - seulement 3%

Bien non soumis au DPE
Pour plus d'informations et réserver votre maison, contactez-nous dès maintenant ! Seulement 9 lots! 
Les informations sur les risques auxquels ce bien est exposé sont disponibles sur le site Géorisques : www.georisques.gouv.fr
Agence indépendante Terres et Toits immobilier située 1 rue des plantiers 04100 Manosque inscrite au RCS 844689944 de Manosque - carte professionnelle T numéro CPI [Coordonnées masquées]0039 409
Voir plus

Référence: 487
Maison à MANOSQUE
Maison à MANOSQUE
Maison à MANOSQUE
Géorisques

Les informations sur les risques auxquels ce bien est exposé sont disponibles sur le site Géorisques : www.georisques.gouv.fr

Ce site est protégé par hCaptcha Politique de confidentialité et Conditions d’utilisation s’appliquent.

En poursuivant votre navigation sans modifier vos paramètres, vous acceptez l'utilisation de cookies susceptibles de réaliser des statistiques de visite. Cliquez ici pour plus d'informations