Bénéficiez des services de nos partenaires locaux soigneusement sélectionnés
pour vous accompagner dans votre parcours d'achat immobilier

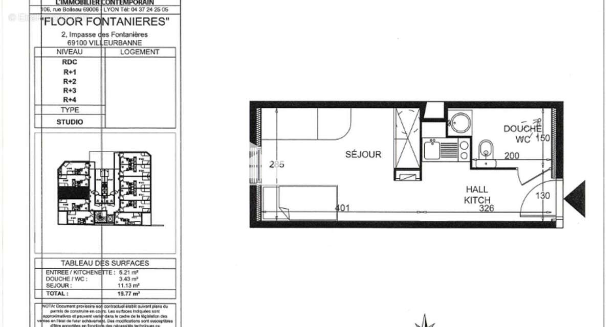
Appartement 19.77m² à vendre 74000€ - Villeurbanne 69100

— Villeurbanne 69100 —
70 000 €
19 m²
1 pièce

Nos partenaires locaux
Conseil en vente : Laetitia Harhour O6 2I 93 I6 8I- [Coordonnées masquées]- Annonce avec les Aspects financiers : https://lmnp.foncia.com/bien-76550 - Informations Générales : lmnp.foncia.com

Investissement Location Meublée LMNP – Résidence étudiante à Villeurbanne (69100) - IDÉAL INVESTISSEUR
Résidence étudiante Arts Campus Villeurbanne - Nomad Campus
Adresse : 6 Rue Benjamin Constant, 69100 Villeurbanne

Proche IUT Lyon 1 – Gratte-Ciel et campus de La Doua, quartier calme avec commerces et transports à proximité. Services : internet, laverie, local vélo. Idéal pour étudiants.

LOGEMENT
Studio meublé de 19,77 m², au 4ᵉ étage d'un immeuble de 5 étages
Logement entièrement équipé : entrée, séjour avec kitchenette, salle d'eau avec WC
Exposition : Sud - Les photos correspondent au bien - Il est prévu une remise à niveau en peinture du logement.

REVENUS LOCATIFS
Loyer actuel : 4111€ Hors Taxes et Hors Charges
Loyers versés que le logement soit occupé ou non grâce au bail commercial
Indexation annuelle : INSEE ILC, indexation plafonnée à 1,5% / an
Option Service Sérénité : 24 € HT/an (gestion des factures)

EMPLACEMENT
Proximité immédiate de l'IUT Lyon 1 – Gratte-Ciel et du campus de La Doua
Quartier résidentiel calme, commerces, restaurants, bars et transports en commun à proximité
Environnement étudiant dynamique
Résidence Arts Campus, 69 logements meublés et modernes
Équipements : kitchenette, salle d'eau privative avec douche à l'italienne
Services : ascenseur, accès PMR, parking sous-sol, laverie, local vélo, internet, ouverture par badge

GESTIONNAIRE : CARDINAL CAMPUS
Gestion complète et professionnelle pour sérénité, rentabilité et taux d'occupation élevés
Filiale du Groupe Cardinal : 30 résidences étudiantes en France, près de 3 000 logements, plus de 70 collaborateurs
Services adaptés à la vie étudiante : laverie, local vélo, internet, accès sécurisé

Fiscalité LMNP
Le statut Loueur Meublé Non Professionnel (LMNP) permet de générer des revenus peu ou pas fiscalisés grâce à l'amortissement du bien et à la déduction des charges.

- Rentabilité attractive, avec revenus réguliers
- Gestion intégrale assurée par le gestionnaire (aucune intervention du propriétaire)
- Bail commercial et versement des loyers
- Revenus dès la signature de l'acte authentique
- Fiscalité optimisée via le régime réel (amortissements + déductions)
- Revenus déclarés au régime des BIC, échappant aux revenus fonciers
- Exploitation existante, fiable et éprouvée
- Charges et taxe foncière connues

Bien exclusivement destiné à un investissement locatif.
Aucune possibilité d'occupation personnelle ni de location en direct.
La gestion est entièrement assurée par le gestionnaire dans le cadre du bail commercial en cours.
Voir plus

Référence: 00748251
Honoraires à la charge du vendeur.
Barème des honoraires
DPE
A
B
C
D
E
F
G
GES
A
B
C
D
E
F
G
Appartement à VILLEURBANNE
Appartement à VILLEURBANNE
Appartement à VILLEURBANNE
Appartement à VILLEURBANNE
Appartement à VILLEURBANNE
Appartement à VILLEURBANNE
Appartement à VILLEURBANNE
Appartement à VILLEURBANNE
Appartement à VILLEURBANNE
Appartement à VILLEURBANNE
Géorisques

Les informations sur les risques auxquels ce bien est exposé sont disponibles sur le site Géorisques : www.georisques.gouv.fr

Ce site est protégé par hCaptcha Politique de confidentialité et Conditions d’utilisation s’appliquent.

En poursuivant votre navigation sans modifier vos paramètres, vous acceptez l'utilisation de cookies susceptibles de réaliser des statistiques de visite. Cliquez ici pour plus d'informations