Bénéficiez des services de nos partenaires locaux soigneusement sélectionnés
pour vous accompagner dans votre parcours d'achat immobilier

L'arbresle vente appartement t3 balcon parking

— L'arbresle 69210 —
310 000 €
80 m²
3 pièces
parkingbalcon/terrasse

Nos partenaires locaux
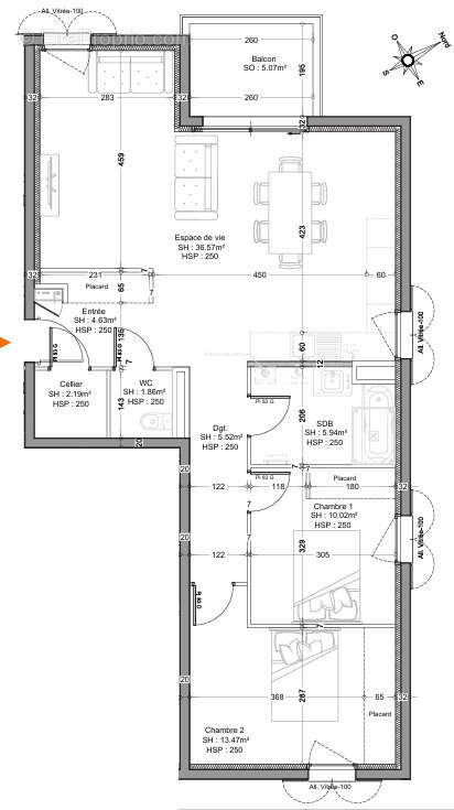
Lyon Extramuros vous propose de venir découvrir, à deux minutes à pied de la gare de L'ARBRESLE, des écoles et des commerces, un appartement situé au 3ème étage d'une résidence récente et sécurisée de 13 logements avec son architecture simple et épurée.
Vous profiterez d'une pièce de vie ouverte sur la cuisine orientée Nord-Ouest d'une superficie totale de 36.57 m2 donnant directement sur le balcon de 5.07 m2, de deux chambres avec placard exposée au Nord pour l'une et à l'Est pour l'autre, d'une salle de bains, d'un WC, d'un cellier et d'une entrée avec placard.
L'appartement bénéficie d'une place de parking sécurisée. Chauffage individuel au gaz.
Pour plus d'informations et organiser une visite, n'hésitez pas à nous contacter au [Coordonnées masquées], LYON EXTRAMUROS votre agence au centre de l'Arbresle. Bien proposé par Julien MOINE - O6 95 84 74 33 Statut d'agent commercial - no RSAC: 929 029 650. Visites possibles du lundi au samedi. Retrouvez l'ensemble de nos annonces sur notre site.
Voir plus

Référence: 2275
Barème des honoraires
Appartement à L'ARBRESLE
Appartement à L'ARBRESLE
Appartement à L'ARBRESLE
Appartement à L'ARBRESLE
Appartement à L'ARBRESLE
Appartement à L'ARBRESLE
Appartement à L'ARBRESLE
Géorisques

Les informations sur les risques auxquels ce bien est exposé sont disponibles sur le site Géorisques : www.georisques.gouv.fr

Ce site est protégé par hCaptcha Politique de confidentialité et Conditions d’utilisation s’appliquent.

En poursuivant votre navigation sans modifier vos paramètres, vous acceptez l'utilisation de cookies susceptibles de réaliser des statistiques de visite. Cliquez ici pour plus d'informations