Grange en cours de rénovation sur 1.4ha de terrain

— Salles-Courbaties 12260 —
50 000 €
60 m² / 14 401 m²
3 pièces
balcon/terrassejardin

En pleine campagne, dans un hameau sans issue, cette ensemble immobilier en pierre en cours de rénovation est implanté sur un terrain de 1.4ha dont 7000 m2 de bois avec puits.
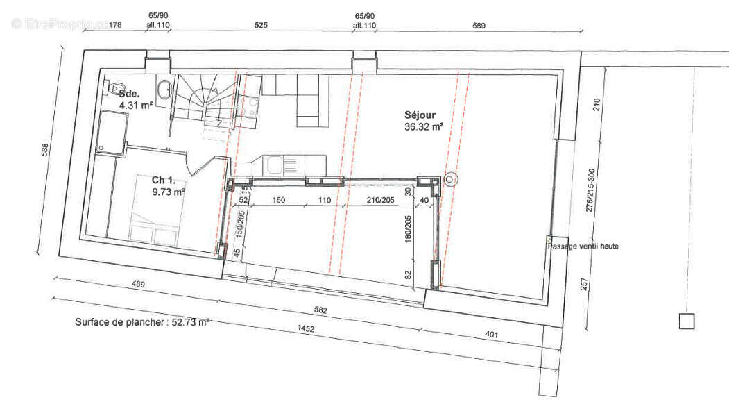
Le projet comprend la transformation de la partie grange en habitation de 60 m2 (+ 11 m2 de buanderie). Permis de construire accordé, plans réalisés par un architecte et devis d'artisans à l'appui.
Certains travaux ont déjà été réalisé comme le raccordement électrique, le plancher hourdis, la première couche d'enduit à la chaux à l'intérieur... Egalement, les menuiseries alu ont été commandée.
En prévision : charpente en EPICEA et couverture en ardoises + toiture en bac acier. Bardage bois. Chauffage au sol par pompe à chaleur. Fosse toutes eaux avec filtre à sable.
Sur le terrain, un mobil-home et toilettes sèches ainsi qu'une ancienne ruine avec cave voûtée (possibilité d'en récupérer les pierres).
Voir plus

Référence: 1801
Honoraires d'agence de 11.11% à la charge de l'acquéreur
Barème des honoraires
Maison à SALLES-COURBATIES
Maison à SALLES-COURBATIES
Maison à SALLES-COURBATIES
Maison à SALLES-COURBATIES
Maison à SALLES-COURBATIES
Maison à SALLES-COURBATIES
Maison à SALLES-COURBATIES
Maison à SALLES-COURBATIES
Maison à SALLES-COURBATIES
Géorisques

Les informations sur les risques auxquels ce bien est exposé sont disponibles sur le site Géorisques : www.georisques.gouv.fr

Ce site est protégé par hCaptcha Politique de confidentialité et Conditions d’utilisation s’appliquent.