Bénéficiez des services de nos partenaires locaux soigneusement sélectionnés
pour vous accompagner dans votre parcours d'achat immobilier

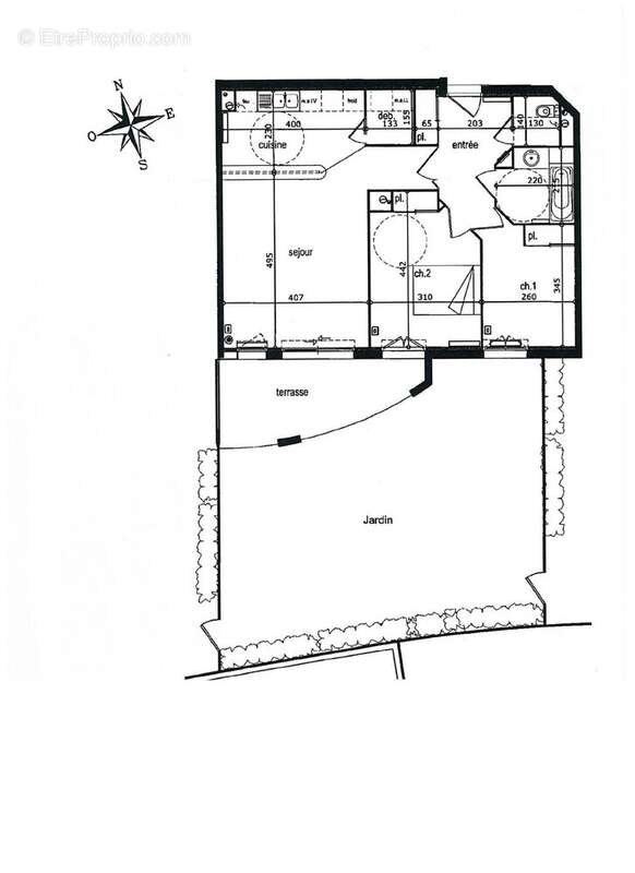
Appartement 68 m² à Lons

— Lons 64140 —
156 000 €
68 m²
3 pièces
parkingbalcon/terrasse

Nos partenaires locaux
INVESTISSEMENT LOCATIF – T3 Loué – Rentabilité 6,10% – 2 Parkings

Appartement T3 d'environ 68,40 m² situé en rez-de-jardin dans une résidence sécurisée sur la commune de Lons.

Loué actuellement – Loyer CC : 793,30€ / mois (676,30€ HC + 117€ charges)
Bail jusqu'au 02/04/2027Rentabilité brute : 6,10%

Composition :
Séjour
Cuisine
2 chambres
Salle de bains
WC
Terrasse avec jardin
2 places de parking incluses
Informations financières :
Loyer CC : 793,30€ / mois (676,30€ HC + 117€ charges)
Charges de copropriété : 159,11€ / mois
Taxe foncière : 1 074€ / an (dont 202€ de TEOM récupérable)
DPE : C
Points forts :
Locataire en place ? revenus immédiats
Deux places de parking incluses
Proximité commerces, écoles, transports et services
Idéal pour investisseur ou constitution de patrimoine locatif


Honoraires à la charge du vendeur. Dans une copropriété de 48 lots. Aucune procédure n'est en cours. Classe énergie C, Classe climat C Montant estimé des dépenses annuelles d'énergie pour un usage standard : entre 520.00 € et 760.00 € sur les années 2021, 2022 et 2023 (abonnements compris). Les informations sur les risques auxquels ce bien est exposé sont disponibles sur le site Géorisques : georisques.gouv.fr.
Voir plus

Référence: 3980-FOROM
Bien en copropriété. Nombre de lots : 48.
Honoraires à la charge du vendeur.
Barème des honoraires
DPE
A
B
C
D
E
F
G
GES
A
B
C
D
E
F
G
Appartement à LONS
Appartement à LONS
Appartement à LONS
Appartement à LONS
Appartement à LONS
Appartement à LONS
Appartement à LONS
Appartement à LONS
Appartement à LONS
Géorisques

Les informations sur les risques auxquels ce bien est exposé sont disponibles sur le site Géorisques : www.georisques.gouv.fr

Ce site est protégé par hCaptcha Politique de confidentialité et Conditions d’utilisation s’appliquent.

En poursuivant votre navigation sans modifier vos paramètres, vous acceptez l'utilisation de cookies susceptibles de réaliser des statistiques de visite. Cliquez ici pour plus d'informations