Bénéficiez des services de nos partenaires locaux soigneusement sélectionnés
pour vous accompagner dans votre parcours d'achat immobilier

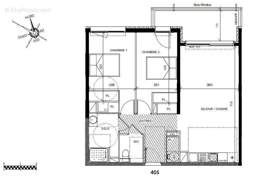
Appartement T3 - 67 m2 - Loggia - Garage & Cellier

— Canet-En-Roussillon 66140 —
315 000 €
67 m²
3 pièces
parkingbalcon/terrasse

Nos partenaires locaux
À proximité immédiate des commerces et de la mer, découvrez cet appartement de type T3 de 67 m2, situé dans une résidence neuve, fermée et sécurisée, au cœur d’un quartier en plein essor de Canet-en-Roussillon.
L’appartement se compose d’une entrée avec placard, d’un séjour avec cuisine ouverte, de deux chambres avec placards, d’une salle d’eau et d’un wc indépendant + un cellier.
Côté extérieur : Une loggia de 8m2 avec vue sur le port.
Côté stationnement : Un garage en rez-de-chaussée.
Côté prestations : Domotique, normes PMR, double vitrage, volets roulants électriques,...
Plus d'information en contactant votre agence Athaner Immobilier, 77 Promenade de la Côte Vermeille à Canet en Roussillon ...[Coordonnées masquées].
Les informations sur les risques auxquels ce bien est exposé sont disponibles sur le site Géorisques http://www.georisques.gouv.fr.
Voir plus

Bien en copropriété. Nombre de lots : 88. Charges de copropriété : 1200 €.
Barème des honoraires
DPE
A
B
C
D
E
F
G
GES
A
B
C
D
E
F
G
Appartement à CANET-EN-ROUSSILLON
Appartement à CANET-EN-ROUSSILLON
Appartement à CANET-EN-ROUSSILLON
Appartement à CANET-EN-ROUSSILLON
Appartement à CANET-EN-ROUSSILLON
Appartement à CANET-EN-ROUSSILLON
Appartement à CANET-EN-ROUSSILLON
Appartement à CANET-EN-ROUSSILLON
Appartement à CANET-EN-ROUSSILLON
Appartement à CANET-EN-ROUSSILLON
Appartement à CANET-EN-ROUSSILLON
Appartement à CANET-EN-ROUSSILLON
Appartement à CANET-EN-ROUSSILLON
Géorisques

Les informations sur les risques auxquels ce bien est exposé sont disponibles sur le site Géorisques : www.georisques.gouv.fr

Ce site est protégé par hCaptcha Politique de confidentialité et Conditions d’utilisation s’appliquent.