Appartement Paris 5 pièce(s) 108 m2 - BOURSE / RUE MONTMARTRE

— Paris-2e 75002 —
1 390 000 €
108 m²
5 pièces

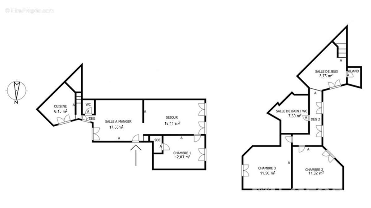
L'agence LAFORÊT PARIS 1et2 a le plaisir de vous proposer, au 3ème étage d'une copropriété de standing à proximité de la Bourse et des Grands Boulevards ce magnifique appartement familial rénové avec modernité et charme de l'ancien, d'une surface de 107,33 m² loi Carrez et 109,73 m² au sol, offrant un véritable esprit de maison. Il se compose, au premier niveau : d'une salle à manger / séjour traversant de 36m² exposé EST/ Ouest, une suite parentale avec sa salle d'eau attenante, un W.C. séparé, une cuisine indépendante entièrement aménagée/équipée. (2.70 hauteur sous plafond) Au second niveau : Un espace jeux/bureau, une buanderie avec son SAUNA, une grande salle de bain avec DOUCHE / BAIGNOIRE / W.C., et deux belles chambres spacieuses sur cour intérieure avec de nombreux rangements. La CLIMATISATION réversible est présente dans tout l'appartement ainsi que des volets électriques - aucun travaux à prévoir, habitable de suite. L'appartement bénéficie d'une très belle luminosité ainsi que d'une remarquable hauteur sous plafond, offrant des volumes élégants et une atmosphère particulièrement agréable. Une cave complète le bien. Un local vélo est également à disposition au sein de la copropriété. A proximité des nombreux transports (MÉTRO L3 ; L4 ; L8 ; L9 / BUS...), écoles, restaurants et commodités du Centre de Paris. Ce bien est parfaitement adapté à une famille en quête d'un cadre de vie privilégié ou à l'acquisition d'un élégant pied-à-terre familial. Appartement très RARE dans le quartier, venez VITE le découvrir ! Copropriété de 23 lots. Charges annuelles : 4100 euros. Antonin SERAFINO (EI) Agent Commercial - Numéro RSAC : 929740017 - BOBIGNY.
Voir plus

Référence: 2136
Bien en copropriété. Nombre de lots : 23. Charges de copropriété : 4100 €.
Honoraires à la charge du vendeur.
Barème des honoraires
DPE
A
B
C
D
E
F
G
GES
A
B
C
D
E
F
G
Appartement à PARIS-2E
Appartement à PARIS-2E
Appartement à PARIS-2E
Appartement à PARIS-2E
Appartement à PARIS-2E
Appartement à PARIS-2E
Appartement à PARIS-2E
Appartement à PARIS-2E
Appartement à PARIS-2E
Appartement à PARIS-2E
Appartement à PARIS-2E
Appartement à PARIS-2E
Appartement à PARIS-2E
Appartement à PARIS-2E
Appartement à PARIS-2E
Géorisques

Les informations sur les risques auxquels ce bien est exposé sont disponibles sur le site Géorisques : www.georisques.gouv.fr

Ce site est protégé par hCaptcha Politique de confidentialité et Conditions d’utilisation s’appliquent.

En poursuivant votre navigation sans modifier vos paramètres, vous acceptez l'utilisation de cookies susceptibles de réaliser des statistiques de visite. Cliquez ici pour plus d'informations