Bénéficiez des services de nos partenaires locaux soigneusement sélectionnés
pour vous accompagner dans votre parcours d'achat immobilier

Immeuble à rénover avec piscine intérieure – Centre de Thouars

— Thouars 79100 —
143 100 €
piscine

Nos partenaires locaux
Situé dans le centre de Thouars, cet immeuble à fort potentiel offre une belle opportunité d’investissement, que ce soit pour du locatif, une activité professionnelle ou un projet mixte.
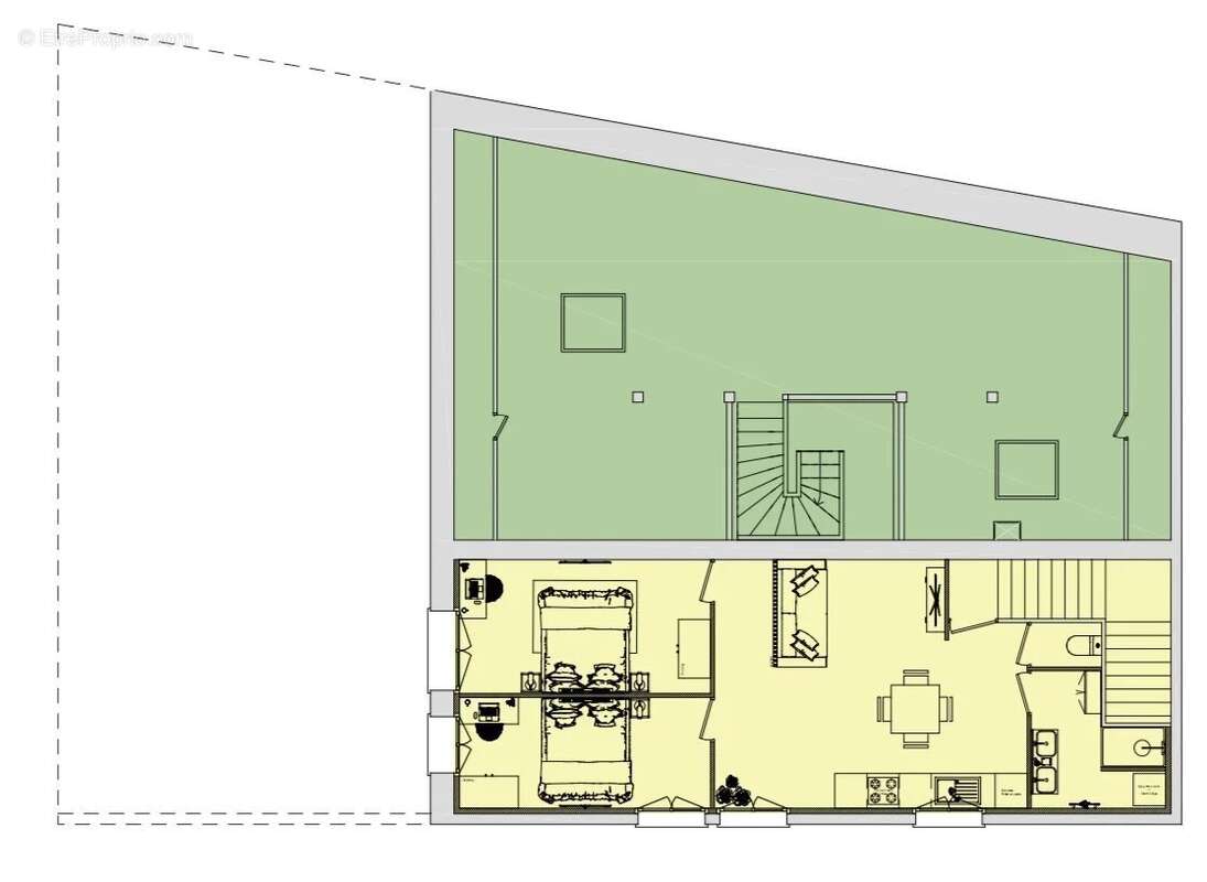
Ce bien comprend, deux cuisines existantes, deux salles d’eau, une piscine intérieure, de nombreux bureaux, une mezzanine d’environ 55 m² à l’étage.
Un sous-sol avec plusieurs box, idéal pour du stockage ou des annexes privatifs
Une configuration propice à la division en plusieurs logements
La division volumétrique est possible, facilitant une répartition des surfaces. Les plans fournis donnent un aperçu d’un aménagement envisageable, à adapter selon vos besoins.
Les atouts de ce bien : emplacement central, proche des commodités, écoles et transports. Conjugue volume et modularité.
À visiter sans tarder pour concrétiser votre projet immobilier à Thouars.
Voir plus

Référence: 224011
DPE
A
B
C
D
E
F
G
GES
A
B
C
D
E
F
G
Appartement à THOUARS
Appartement à THOUARS
Appartement à THOUARS
Appartement à THOUARS
Appartement à THOUARS
Appartement à THOUARS
Appartement à THOUARS
Appartement à THOUARS
Appartement à THOUARS
Appartement à THOUARS
Appartement à THOUARS
Appartement à THOUARS
Appartement à THOUARS
Appartement à THOUARS
Appartement à THOUARS
Appartement à THOUARS
Appartement à THOUARS
Appartement à THOUARS
Appartement à THOUARS
Appartement à THOUARS
Géorisques

Les informations sur les risques auxquels ce bien est exposé sont disponibles sur le site Géorisques : www.georisques.gouv.fr

Ce site est protégé par hCaptcha Politique de confidentialité et Conditions d’utilisation s’appliquent.

En poursuivant votre navigation sans modifier vos paramètres, vous acceptez l'utilisation de cookies susceptibles de réaliser des statistiques de visite. Cliquez ici pour plus d'informations