Bénéficiez des services de nos partenaires locaux soigneusement sélectionnés
pour vous accompagner dans votre parcours d'achat immobilier

Appartement 2 pièces de 42,5 m² - Rue Héloïse-Isabelle Michaud, Gennevilliers

— Gennevilliers 92230 —
212 000 €
43 m²
2 pièces

Nos partenaires locaux
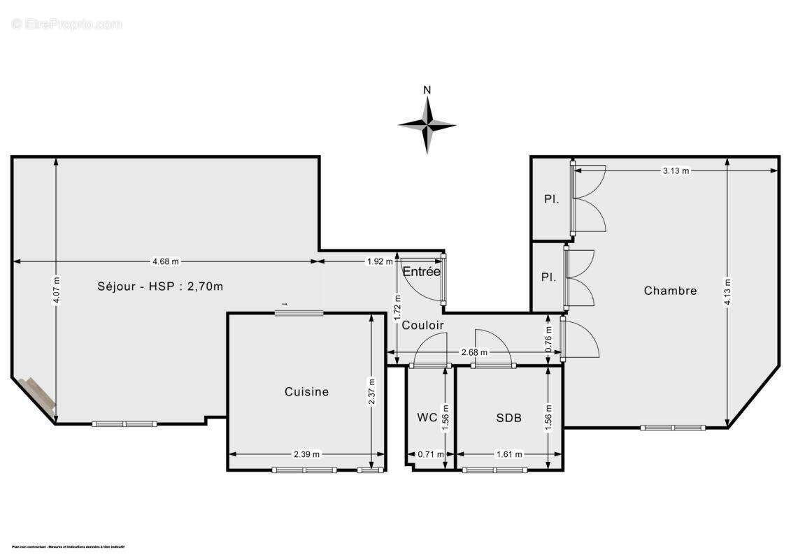
Cet appartement de type T2 est situé au premier et dernier étage de l'immeuble, rue Héloïse-Isabelle Michaud à Gennevilliers. Orienté sud, il bénéficie d'une belle luminosité. La surface de cet appartement est de 42,47 m² selon la loi Carrez.

L'appartement donne entièrement sur cour, plein sud

Il se compose :
D'une pièce de vie équipée d'une cheminée de 15,6m2 ;
D'une cuisine séparée et équipée en bon état ;
D'une grande chambre de 14m2, actuellement aménagée en deux espaces ;
Et d'une salle de bains avec baignoire et toilettes.
Ainsi qu'un cabanon dans la cour.
Possibilité d'agrandir grâce à l'acquisition des combles.

Le logement est équipé de double vitrage. Le chauffage et l'eau chaude sont fournis par un système électrique.
Les charges de copropriété sont de 41€ par mois. La taxe foncière est de 101€.

Situé à la frontière immédiate d'Asnières-sur-Seine, et à 4 min à pied du métro Gabriel Péri, ce bien profite pleinement du dynamisme et de l'attractivité de ce secteur recherché des Hauts-de-Seine.

À quelques minutes, le centre-ville d'Asnières-sur-Seine séduit par son ambiance de quartier conviviale, ses commerces de qualité, ses marchés et ses nombreuses adresses prisées.
L'environnement offre un cadre de vie agréable, à proximité des quais de Seine et d'espaces verts appréciés tels que le Parc Robinson, idéal pour les moments de détente en plein air.
Côté transports, le secteur bénéficie d'une excellente accessibilité grâce à la Ligne 13 depuis Gabriel Péri, à une station de la future ligne 15. Enfin les nombreuses lignes de bus qui desservent le nord des Hauts de Seine.
Un emplacement stratégique qui combine le calme résidentiel de Gennevilliers avec le dynamisme et la qualité de vie d'Asnières-sur-Seine.

Vous pouvez planifier facilement votre visite en choisissant le créneau qui vous convient depuis le site d'Hosman.

Hosman s'efforce de réinventer l'agence immobilière en offrant un service innovant et transparent aux acheteurs et aux vendeurs. Nos frais d'agence sont de 8900 euros fixes à la charge du vendeur.

Si vous êtes un professionnel de l'immobilier (agent, mandataire ou chasseur immobilier), sachez que toutes les annonces Hosman sont ouvertes à la collaboration. N'hésitez pas à nous contacter pour en discuter.
Voir plus

Référence: 14ae49
Bien en copropriété. Charges de copropriété : 41 €.
Honoraires à la charge du vendeur.
DPE
A
B
C
D
E
F
G
GES
A
B
C
D
E
F
G
Appartement à GENNEVILLIERS
Appartement à GENNEVILLIERS
Appartement à GENNEVILLIERS
Appartement à GENNEVILLIERS
Appartement à GENNEVILLIERS
Appartement à GENNEVILLIERS
Appartement à GENNEVILLIERS
Appartement à GENNEVILLIERS
Appartement à GENNEVILLIERS
Appartement à GENNEVILLIERS
Appartement à GENNEVILLIERS
Géorisques

Les informations sur les risques auxquels ce bien est exposé sont disponibles sur le site Géorisques : www.georisques.gouv.fr

Ce site est protégé par hCaptcha Politique de confidentialité et Conditions d’utilisation s’appliquent.

En poursuivant votre navigation sans modifier vos paramètres, vous acceptez l'utilisation de cookies susceptibles de réaliser des statistiques de visite. Cliquez ici pour plus d'informations