Bénéficiez des services de nos partenaires locaux soigneusement sélectionnés
pour vous accompagner dans votre parcours d'achat immobilier

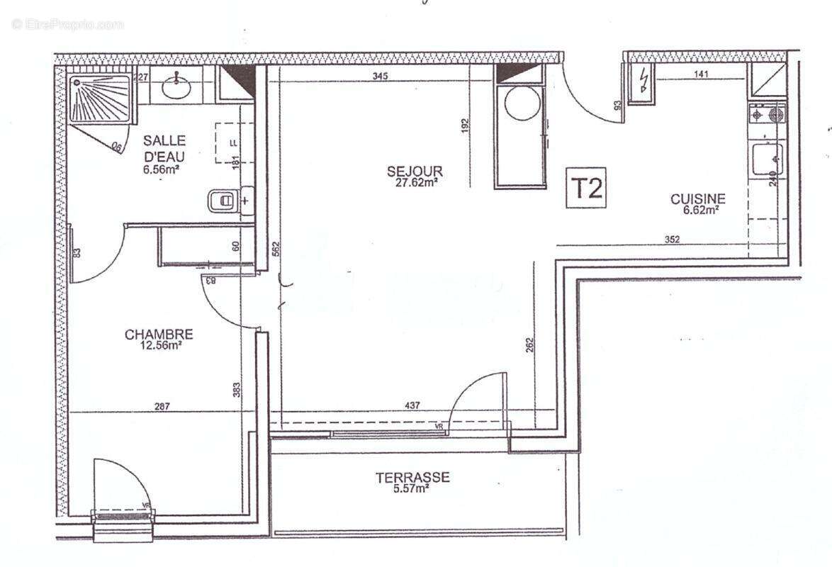
Appartement T2 Amboise

— Amboise 37400 —
148 400 €
53 m²
2 pièces

Nos partenaires locaux
Amboise Résidence services seniors, Appartement T2 de 53 m²

Dans la résidence seniors, découvrez ce bel appartement T2 de 53 m², offrant un cadre de vie serein et sécurisé.

L'appartement se compose d'un séjour lumineux, d'une chambre confortable, d'une cuisine fonctionnelle et d'une salle d'eau adaptée. Les volumes sont agréables et l'agencement pensé pour un quotidien simple et confortable.

La résidence propose un environnement rassurant ainsi que des services adaptés : accueil, espaces communs conviviaux, restauration et animations à la carte.

Idéal pour une résidence principale sécurisée ou un investissement dans un secteur stable et recherché. Loyer 675 euros

Pour plus d'informations ou organiser une visite, contactez moi.

Prix : 148 400 euros
Le prix indiqué comprend les honoraires à la charge de l'acheteur : 6 % TTC du prix du bien hors honoraires 8 400 euros
Prix hors honoraires : 140 000 euros

Date de réalisation du diagnostic énergétique : 31/03/2025
DPE D - GES B
Montant estimé des dépenses annuelles d'énergie pour un usage standard entre 840 et 1 200 euros. Prix moyens des énergies indexés sur les années 2021, 2022, 2023 (abonnements compris) conformément à l'arrêté du 31 mars 2021 en vigueur lors de l'établissement du DPE.
Pour visiter et vous accompagner dans votre projet, contactez Nicolas PRIOUX, au [Coordonnées masquées] ou, par courriel à [Coordonnées masquées].
Selon l'article L.561.5 du Code Monétaire et Financier, pour l'organisation de la visite, la présentation d'une pièce d'identité vous sera demandée.
Cette présente annonce a été rédigée sous la responsabilité éditoriale de Nicolas PRIOUX agissant sous le statut d'agent commercial immatriculé au RSAC 848725289 auprès de SAS PROPRIETES PRIVEES, au capital de 44 920 euros, ZAC LE CHÊNE FERRÉ - 44 ALLÉE DES CINQ CONTINENTS 44120 VERTOU ; SIRET 487 624 777 00040, RCS Nantes. Carte Professionnelle Transactions sur immeubles et fonds de commerce (T) et Gestion immobilière (G) n°CPI 44[Coordonnées masquées]10 388 délivrée par la CCI Nantes - Saint Nazaire. Compte séquestre n°3[Coordonnées masquées] BPA SAINT-SEBASTIEN-SUR-LOIRE (44230). Garantie GALIAN-SMABTP - 89 rue de la Boétie, 75008 Paris - n°28137 J pour 2 000 000 euros pour T et 120 000 euros pour G. Assurance responsabilité civile professionnelle par GALIAN-SMABTP n° de police 28137.J

Mandat réf : 438708. - Le professionnel garantit et sécurise votre projet immobilier. (6.00 % honoraires TTC à la charge de l'acquéreur.)

Nicolas PRIOUX (EI) Agent Commercial - Numéro RSAC : 848725289 - .
Voir plus

Référence: 438708NPRI
Honoraires d'agence de 6% à la charge de l'acquéreur
DPE
A
B
C
D
E
F
G
GES
A
B
C
D
E
F
G
Appartement à AMBOISE
Appartement à AMBOISE
Appartement à AMBOISE
Appartement à AMBOISE
Appartement à AMBOISE
Appartement à AMBOISE
Appartement à AMBOISE
Géorisques

Les informations sur les risques auxquels ce bien est exposé sont disponibles sur le site Géorisques : www.georisques.gouv.fr

Ce site est protégé par hCaptcha Politique de confidentialité et Conditions d’utilisation s’appliquent.

En poursuivant votre navigation sans modifier vos paramètres, vous acceptez l'utilisation de cookies susceptibles de réaliser des statistiques de visite. Cliquez ici pour plus d'informations