Bénéficiez des services de nos partenaires locaux soigneusement sélectionnés
pour vous accompagner dans votre parcours d'achat immobilier

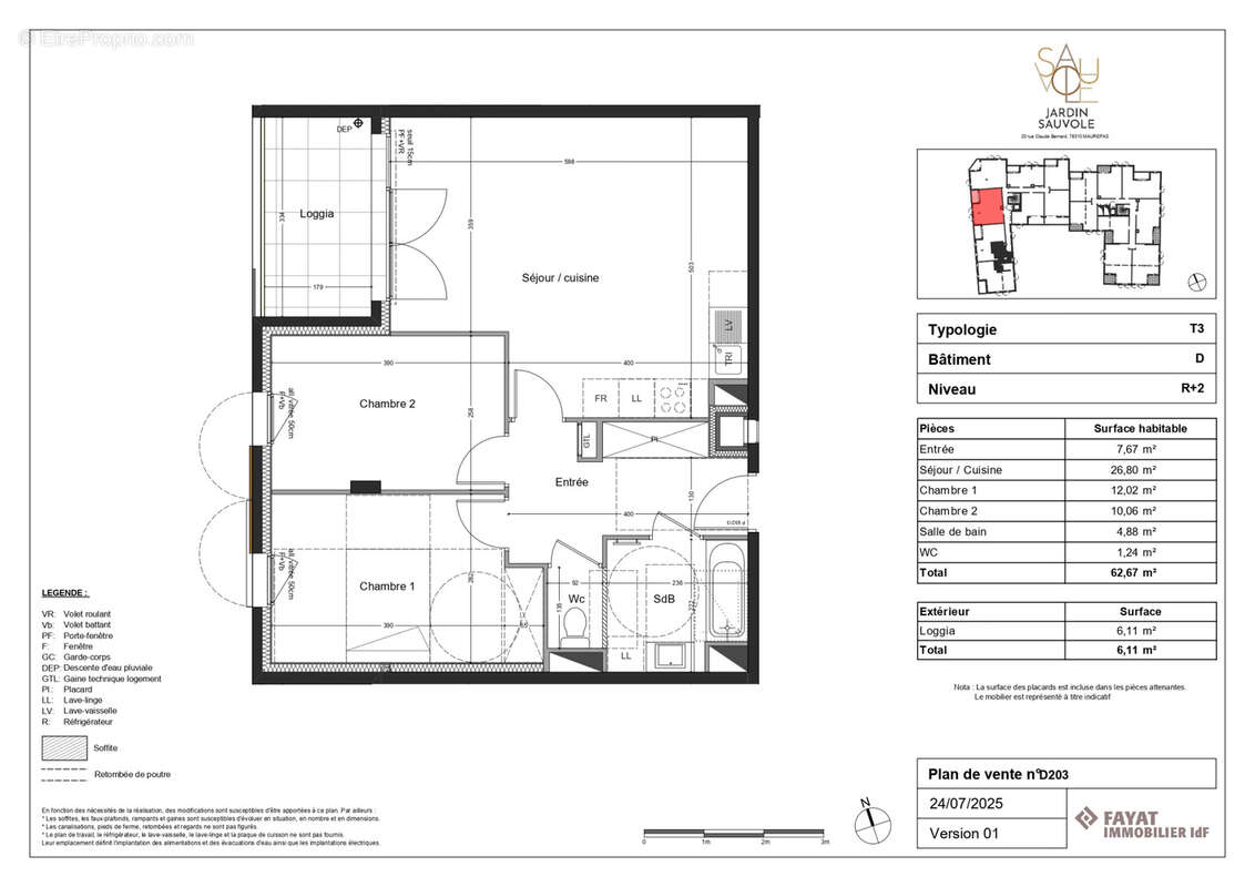
F3 - maurepas - mars 2027 - jardin de sauvole - loggia

— Maurepas 78310 —
275 335 €
62 m²
3 pièces
parking

Nos partenaires locaux
Christine de BLB Immobilier propose un appartement de type F3, situé au 20 Rue Claude Bernard à Maurepas, au 2ᵉ étage sur 5, avec une entrée dans les lieux prévue fin mars 2027. Caractéristiques du bien : - surface de 62,67 m2, - exposition Nord/Est, - loggia attenante au séjour, - salle de bains, - ascenseur, - place de parking en sous-sol, - volets roulants manuels dans le séjour et battants dans les chambres, - appartement conforme aux normes RE2020 avec certification HQE en vigueur au moment de la livraison. Environnement : - résidence à venir « Jardin Sauvole », - proximité des commodités de Maurepas (commerces, transports, services).
Informations complémentaires : - entrée dans les lieux prévue le 30 mars 2027. Informations financières : - frais de notaire réduits. Cet appartement à venit est une opportunité rare à ne pas manquer ! Contactez Christine LAMY BLB Immobilier [Coordonnées masquées] Disponible 7J/7 Agence de Maurepas.
Voir plus

Référence: B1433
Bien en copropriété. Nombre de lots : 240.
Honoraires d'agence de 3.9% à la charge de l'acquéreur
Barème des honoraires
Appartement à MAUREPAS
Appartement à MAUREPAS
Appartement à MAUREPAS
Appartement à MAUREPAS
Géorisques

Les informations sur les risques auxquels ce bien est exposé sont disponibles sur le site Géorisques : www.georisques.gouv.fr

Ce site est protégé par hCaptcha Politique de confidentialité et Conditions d’utilisation s’appliquent.

En poursuivant votre navigation sans modifier vos paramètres, vous acceptez l'utilisation de cookies susceptibles de réaliser des statistiques de visite. Cliquez ici pour plus d'informations