Bénéficiez des services de nos partenaires locaux soigneusement sélectionnés
pour vous accompagner dans votre parcours d'achat immobilier

Paris 13 - place d'italie

— Paris-13e 75013 —
490 000 €
52 m²
2 pièces
parkingbalcon/terrasseascenseur

Nos partenaires locaux
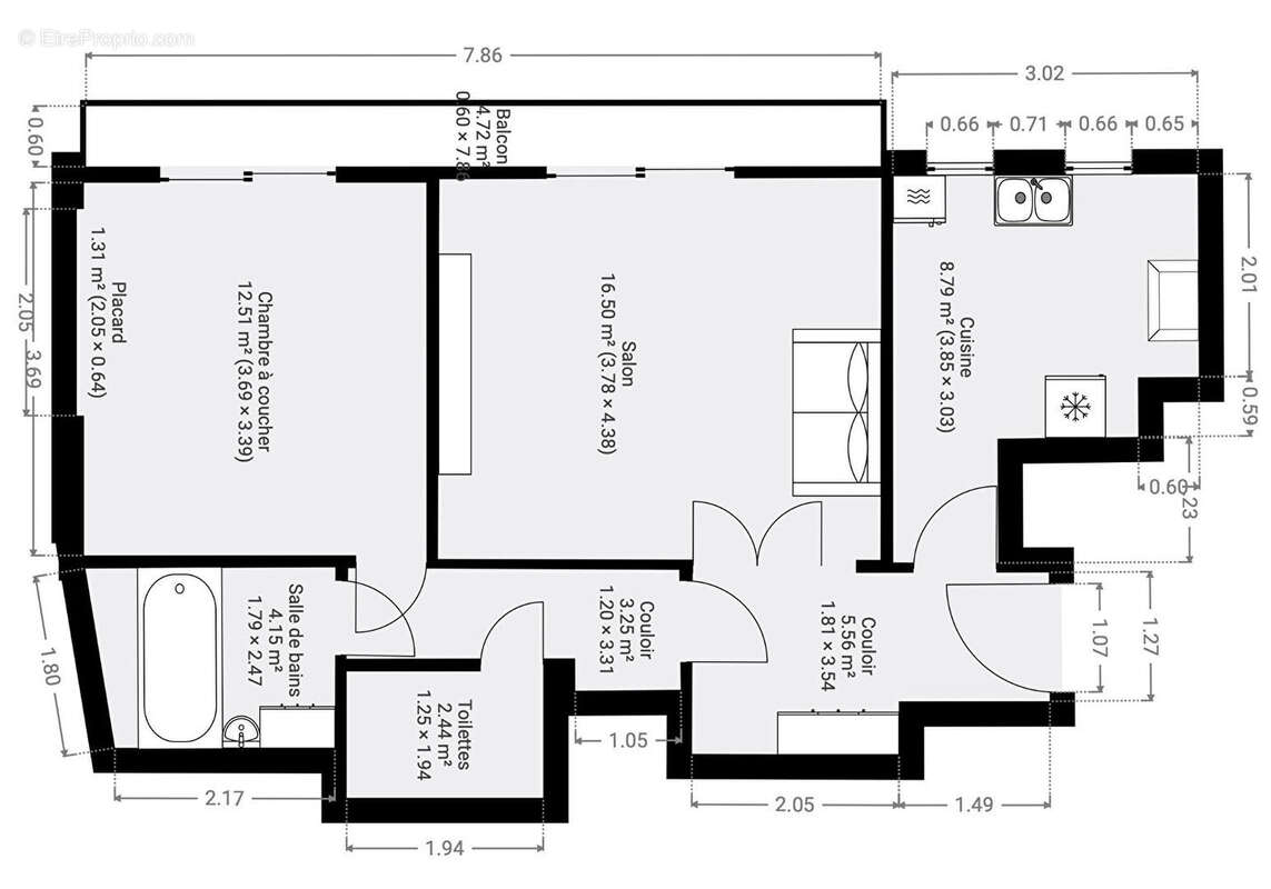
Votre agence Fredelion Place d'Italie vous propose en exclusivité ce superbe appartement de deux pièces offrant une surface généreuse de 52,55 m². Situé au troisième étage d'une résidence des années 1980 parfaitement entretenue et sécurisée, cet immeuble de standing bénéficie des services d'un gardien et de deux ascenseurs. Idéalement implanté sur l'avenue d'Italie, ce bien profite d'une situation géographique stratégique au coeur d'un quartier dynamique, tout en offrant une sérénité inattendue pour un emplacement aussi central. L'espace de vie se distingue par sa luminosité remarquable et son calme absolu. Le séjour, vaste et accueillant, s'ouvre directement sur un balcon privatif qui surplombe les jardins intérieurs de la copropriété. Cette exposition protégée de l'agitation urbaine permet de profiter d'un extérieur paisible en plein Paris. La cuisine, séparée et entièrement aménagée, offre une belle fonctionnalité et peut être adaptée selon vos besoins de modularité, garantissant un confort de vie quotidien optimal. La partie nuit a été pensée pour allier repos et praticité. Elle se compose d'une chambre spacieuse, dotée de grands placards de rangement, qui bénéficie elle aussi d'un accès direct au balcon et d'une vue dégagée sur le jardin. Une salle de bains indépendante ainsi que des toilettes séparées complètent cet ensemble parfaitement agencé. En complément de ces prestations, l'appartement est vendu avec deux annexes indispensables : une cave saine et une place de parking sécurisée en sous-sol, un véritable luxe dans ce secteur prisé. Choisir cet appartement, c'est s'offrir un cadre de vie équilibré entre l'effervescence de la Place d'Italie, avec ses commerces et ses cinémas, et le calme d'une résidence arborée. La proximité immédiate des transports et des services fait de ce bien une opportunité rare, que ce soit pour une résidence principale confortable ou un investissement patrimonial de premier ordre. Ce deux-pièces spacieux saura séduire les citadins exigeants en quête de lumière et de tranquillité. (4.26 % honoraires TTC à la charge de l'acquéreur.) Copropriété de 792 lots - dont 276 lots habitation. Charges annuelles : 2867 euros.
Voir plus

Référence: 315
Bien en copropriété. Nombre de lots : 792. Charges de copropriété : 2867 €.
Honoraires d'agence de 4.26% à la charge de l'acquéreur
Barème des honoraires
DPE
A
B
C
D
E
F
G
GES
A
B
C
D
E
F
G
Appartement à PARIS-13E
Appartement à PARIS-13E
Appartement à PARIS-13E
Appartement à PARIS-13E
Appartement à PARIS-13E
Appartement à PARIS-13E
Appartement à PARIS-13E
Appartement à PARIS-13E
Appartement à PARIS-13E
Appartement à PARIS-13E
Appartement à PARIS-13E
Appartement à PARIS-13E
Appartement à PARIS-13E
Appartement à PARIS-13E
Géorisques

Les informations sur les risques auxquels ce bien est exposé sont disponibles sur le site Géorisques : www.georisques.gouv.fr

Ce site est protégé par hCaptcha Politique de confidentialité et Conditions d’utilisation s’appliquent.

En poursuivant votre navigation sans modifier vos paramètres, vous acceptez l'utilisation de cookies susceptibles de réaliser des statistiques de visite. Cliquez ici pour plus d'informations